查看完整案例


收藏

下载
花漾美作 I MR COCO的梦想
【项目概况】
【项目地址】南京·金尧华府
【设计风格】时尚北欧
【建筑面积】80平方米
【项目摄影】ingallery-丛林
【设计理念】
此次案例,户型来自经典的都市两房结构,原结构进门客餐厅在一个空间,整体光线较暗。次卧室的房门开在过道上,进门有个直角对冲到餐厅,故而次卧入户门特意改成斜切角度,门再跳个亮暖黄色,故意使这个门作为独特的背景存在,利用半高隔断很好的将客厅与餐厅进行了区域性的划分,整体选用了时尚北欧流行的美得很有深度的浅灰色。
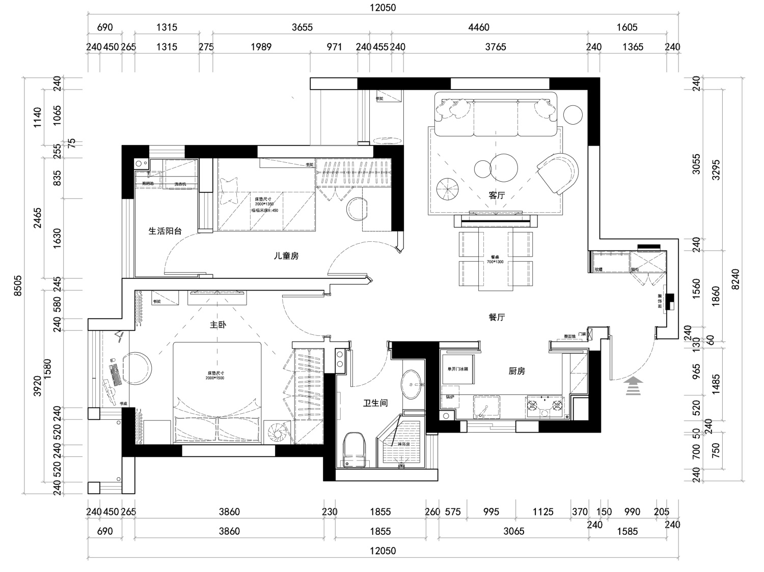
【原始平面】
【设计平面】
【玄关】
【客厅】
搭配精致的金属、线条、棱角、黑框,把每个画面都框了出来,本案硬装很简洁,几乎是软装在绘声绘色的叙述业主小两口梦想的幸福家居生活,此次案例中,我们很用心的选了几幅原创设计品牌饰画,将品牌精神融入到我们的作品当中“在疯狂的季节里,你不知道会看到怎样的气象,我们只愿,跟别人不一样”,这也是我们公司一直追求和推崇的。
【餐厅】
【主卧】
【次卧】
【厨卫】
客服
消息
收藏
下载
最近




















