查看完整案例


收藏

下载
【项目名称】:
“鮨然”怀石料理餐厅
【项目地址】:中国·北京
【设计公司】:odd设计事务所
【项目面积】:126㎡
【项目摄影】:odd
【项目主材】:艺术肌理漆、柚木、黑板岩、木饰面、和纸亚克力
【空间简述】
此次odd设计了位于北京的一家寿司怀石料理餐厅。餐厅选址于一栋聚集了众多外媒及广告代理商的办公楼一层,与对面的宝格丽酒店共享入口处的静谧花园。夜晚来临时,极少夺目的灯光与酒店庄严的氛围相呼应,使得寿司店的入口看起来如日本茶室一般温润。通过实木格栅造出“二道门”,压低了大厦原有大门的高度感,更遵从了日本建筑的入户尺度。首先映入眼帘的是正面剁斧面石材,作为深色背景,突出了两个包间通顶和纸格栅门的存在感。
置身幽静的长廊,倾斜而上的巨大格栅把人的视线自然而然往上引。
竖向的线条又给空间带来了向上的延伸感,通过大胆使用木格栅的精细度,使它成为极富动态的空间。
吧台是幽暗空间里的一个巨大的“和纸灯笼”,柔和的材料和暖光带来的明亮色让整体空间不至于沉闷。
吧台背景是素雅的浅金色壁纸,绿色和白色的和纸“推拉窗”让整体背景不落单调。
垂下的竹帘代替日本传统数寄屋中“小壁”的位置,给背景增加了层次感。
悬空挑出的吧台吊顶投影在客位,体量和高度上能给客人带来仿佛被包裹的安全感。
上层吊顶是外部格栅带出的虚空间,作为一个大体量的顶部存在。
整体空间挑高最高的部分向上的延伸感非常强。设计斜切造型的格栅,一方面是因为走廊过窄,可以避免压抑。另一方面也巧妙地和窗外的景观做呼应。四人包间内部空间遵从了传统“数寄屋”的建制,墙面上的小景观,增添了空间的趣味感。八人包间是一个区别于传统的空间造型。吊顶和背景墙都采用了弧面的造型。小壁用透光的和纸亚克力代替,融入了现代的材料,也不显得突兀。整体空间氛围由此衬托得干净素雅。
遵从了传统的建制,又通过现代的手法做出新的诠释。从镜中映照出的木格栅门又是另一幅镜中画,当客人望向镜子时能带来意外的惊喜。巨大的落地镜和不规则的实木板,和石材一起营造了和外部走廊统一的氛围。外观看去,整体和入口的景观形成了和谐的统一。
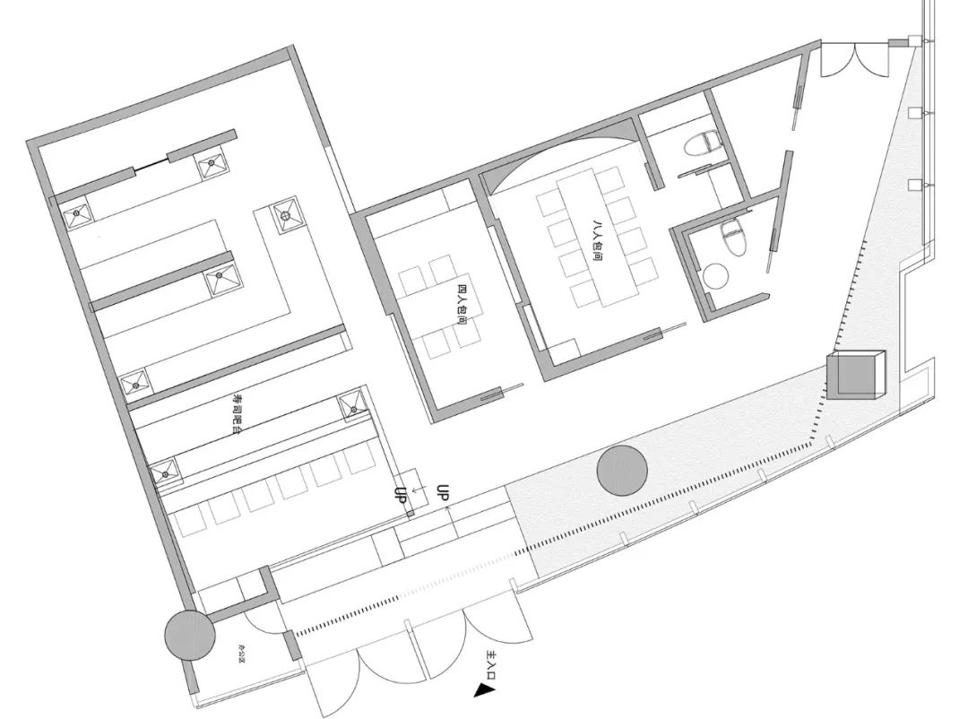
【项目图纸】
时
系删除
:
---------------------------------
在变好看
客服
消息
收藏
下载
最近










