查看完整案例


收藏

下载
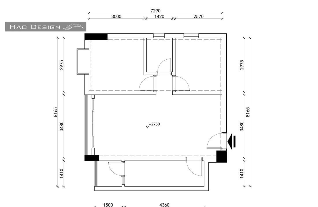
原始结构图,原户型结构为标准的两居室结构
受限于原来的梁体结构,大的格局几乎没有改动,只是将墙体打通,根据各个挑好的家具电器优化布局和尺寸关系
原房间被作为微商的临时办公场地在使用
开工第一件事就是打拆,将户型拆至接近毛坯的状态
期间,水电,铺砖,各种繁杂的施工顺序一步步进行
施工完后,处理繁杂的家居用品,一件件快递拆箱安装并调试
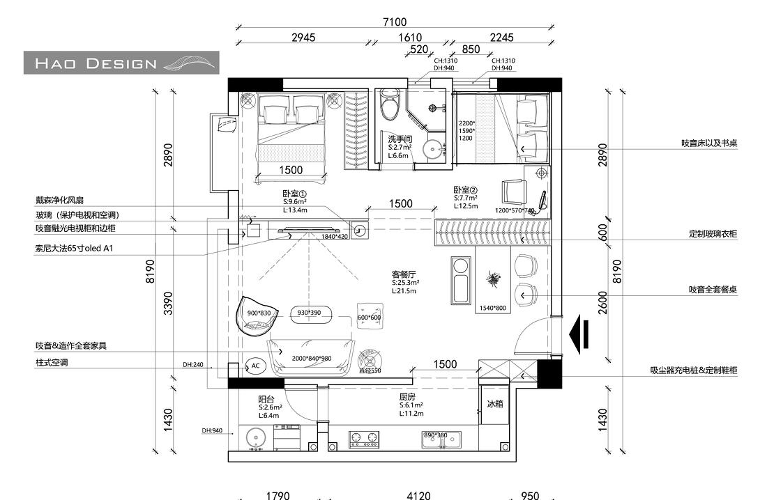
完工后的客厅实景,地面选用稍微深一些白橡色木纹砖整个人字型铺贴,其中夹杂一些小花砖进行点缀。
大面积的木色奠定了整个暖色的色彩基调
电视柜整齐的收纳各种设备,旁边正好放下扫地机器人和净化风扇。有人认识部落的希女王么^_^?
沙发茶几等一套选用了两个不同品牌的家具进行组合搭配
为避免顶部视觉过于单调,选用萤火虫的吊灯使得天花更耐看
整个客厅和餐厅连成一起
餐厅旁边背靠衣柜背板,一体性很好
由于面积关系,餐桌平时也充当临时办公桌的用途
餐厅背面墙上留下挂件装饰,同时也可以挂一些手提袋围巾之类的小物件,出门照照镜子?
厨房与柜子一样,全屋采用同一种白橡木色来做柜体,保证视觉整体统一
卧室选择及简的床,尽可能腾出活动空间,透明的玻璃门衣柜也让视觉有更好的延伸性
墙上留下小支架用于放音箱和灭蚊液这些常用小物品
洗手间的设计则中规中矩,在极限的尺寸下完成使用性的布局
另一件卧室由于贴墙放床,则可以多出一张书桌的位置
从卧室门口忘向客厅,视觉的延展性,相比改造前的户型,看起来更开阔
柠檬黄的软装搭配也使得房间更加活泼
得益于使用玻璃隔断,整个空间变得明亮又开阔
墙上的卷帘为休息提供了临时的解决方案
客厅背景墙选用了包豪斯工业风的艺术涂料整面涂刷,实际纹理相当耐看,配合抽象风格的油画,混搭一种别样的感觉
电视柜安装好后由工人进行二次开孔,才能把所有的线路和设备整整齐齐的安置进去
为客厅特意挑选b&o a9的音箱坐镇,480W的输出功率足以让音乐充满整个房间,同时接入sonos的全屋音乐系统,尽情party!O(∩_∩)O~
sony的oled电视作为电视设计中最为极简的风格,自然也被挑选使用。宛如一幅画框的底座设计,即使是黑屏状态下也不由的让人多看几眼。
鹿铃灯本为美式风格中的常用落地灯,也被混搭了进来
避免日后的使用麻烦,地毯选用的防水耐污的材质
虽然是一个小小的户型,但整个施工下来,作为设计师,我与客户都在这上面投入了相当多的时间和精力,同时也感谢辛勤施工的工人师傅和项目监理。
直到业主住进去之后脸上露出欣喜的笑容,我想起方晓风老师在筑巢奖颁奖典礼上的的一段话“我现在见到越来越多的设计师与业主对小户型予以很深的重视,也正是这份热忱让我们的生活变得更美好”
如果你在广州,如果你又有一套需要设计的房子,再恰好你又对高品质生活有着追求,无论面积大小,call me maybe
客服
消息
收藏
下载
最近








































