查看完整案例


收藏

下载
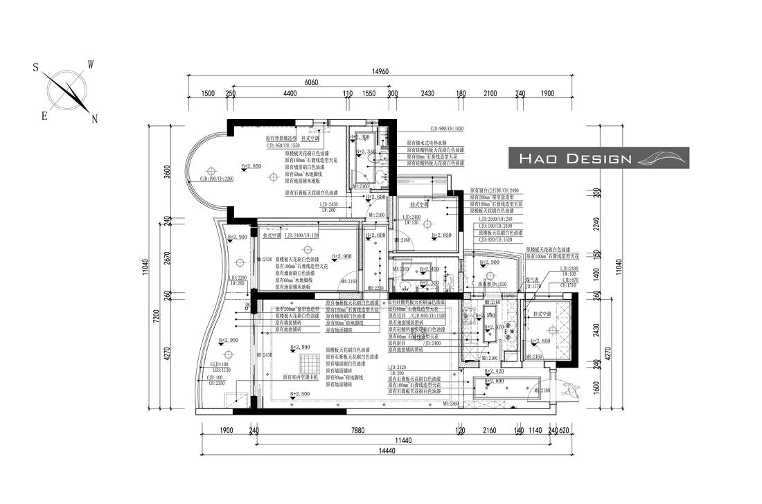
原始户型是一个非常常见的两房结构,主卧室和次卧室都有不错的使用面积,外加上小客房和双阳台的组合,不过也有一些很明显的问题:
①常用的工作区域,厨房洗手间这些常用的工作区域面积太小,使用基本转不开身~
②两间卧室都是长方形结构,利用率也算不上优秀
最后,作为一个三代同堂的家庭,我们势必要寻找一种更加针对生场景来架构的一个新的空间形态。
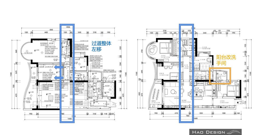
于是我们精准考察了全屋的承重墙和房屋结构以后,做出了两个大胆的改动
①挪动全屋主过道,整体左移,把两间儿童房的面积调节到趋近相同的状态,又扩大了洗手间面积
②把后阳台改造成了洗手间,原来阳台职能的洗衣机和烘干机挪到了洗手间内
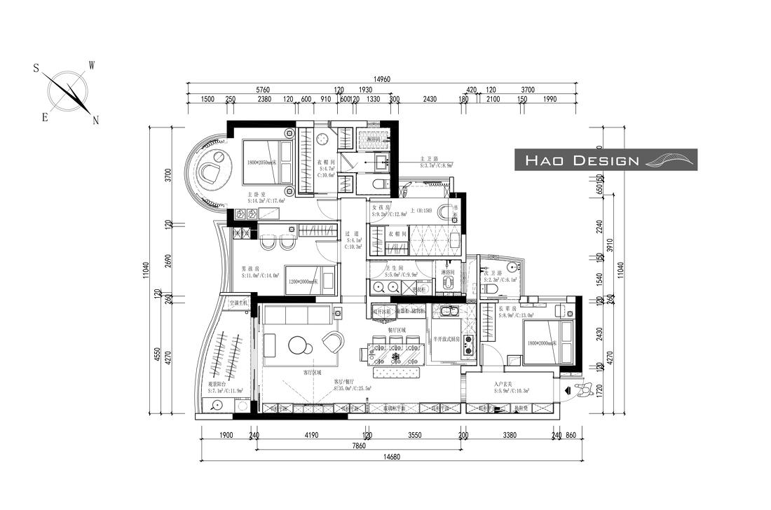
改造完成之后的户型完全满足了六口之家的居住
①厨房与餐厅合并,做成半开放式厨房,腾出的空间让长辈房与阳台合并形成一个套房
②两间儿童房面积相当,男孩女孩再也不用争房间了
③客厅的区域设计了整面的柜子,满足储物空间的同时还可以让一家人共同待在客厅的职能
另外在本案中,我们着重考虑了各个空间的储物形式,从空间的规划上就利用柜子来制造对比空间感,在各个房间看起来柜子就像是空间的一部分,完全满足收纳的需求。
初次勘察房屋时的状态,原装修是购房时开发商留下来的精装房,因为居住了很多年,刚好可以看到屋主的生活状态~
设计时的效果图,这上面着重表现柜体部分与半开放式厨房的关系,大面积选用白橡木色系来营造家的温馨感,蓝色的点缀色是屋主的幸运色,也正好符合整体上的冷暖对比
最后完成的现场实景照片,与效果图设计高度一致,完美实现效果落地~
一进入房间,最先看到的就是玄关
重新设计的鞋柜与储物柜电视组合,从玄关一开始一路延伸到阳台。
玄关与客餐厅之间有一道横梁,于是设计了蓝色的弧形门洞来隐藏,也通过门洞划分了一下不同的空间
再往里走就是厨房区域了,为了满足开通燃气使用的条件,在厨房的吊顶上暗藏了一条轨道,制作滑动的“L型”吊趟门,平时爆炒需要的时候拉出来遮挡油烟,不需要时暗藏在柜子的侧板里面,这时餐桌也变成了厨房操作台的一部分
屋主夫妇都很喜欢做饭,平时的一日三餐都是在家里制作,厨房的使用频率很高。
所以从左至右依次安排了一个500L的大冰箱,电器台,洗菜盆,和转角柜,
灶台和油烟机安排在了最右边,刚好靠近公共烟道,排烟尺寸最短。
餐桌除了是用餐区以外,也是一家人互动的空间;
阅读,品茶,小的手工活动都是在餐桌上完成,于是配备了开放性的条凳,搭配特意挑选的岩板台面,实用且灵活
客厅制作了整面的电视柜,与旁边的储物柜+书柜连接起来,满足所有人的收纳需求~
从左边开始是杂物储物柜,中间玻璃柜则安放手工展品和奖状,书柜的设计采用渐进式,从小到大排布,避免规整的格局看起来形式化
沙发来自ZAOZUO家的大先生沙发,也是屋主喜欢的蓝色,护墙板上的U型槽也与过道和玄关的圆拱门形成呼应;
天花的设计则极为简洁,只做了一个侧面的方形盒子用来暗藏中央空调和管道
全屋同样采用无主灯设计,两条磁吸轨道+筒灯的组合就足够为室内提供照明,同时获得最大的空间感
主卧室有一个非常赞的点,就是大面积的弧形玻璃,窗外正对小区内部的景观园林。于是我们调整床的朝向,正对窗户,每天清晨伴随着阳光和树影醒来~
小TIPS:面对这样的中层层高的玻璃定制,需要一开始就制作好玻璃膜,防止外面看到内部,影响私密性
主卧室床的背后是没有墙的,直接靠着衣帽间的衣柜背板,节省墙厚度的空间。
傍晚,阳光洒在室内的光影非常漂亮
男孩房位于主卧室的隔壁,儿童房的设计一般会把窗往墙边靠,以便腾出更多的空间在地上玩耍
女孩房则搭了一个小小的公主床架,拍摄日当天还没来得及挂上纱幔
公共洗手间主要是两个小孩来使用,除了配备双洗手盆以外,还用调色本来来做柜门,青色+粉色,男孩女孩各自喜欢的颜色。主卧室洗手间则相对的简洁,用仿木纹砖和小花砖来进行搭配组合。
附上全屋的软装清单,希望对各位设计本的朋友们有所帮助~
左边就是本案的屋主姚小姐,非常开心可以看到最后全家人一起拍全家福的温馨场面,每次看到这个时刻都会被治愈,设计师的工作目标是什么?怎么样才算实现改造的价值?或许这张照片就是最好的解答~
如果你在广州,如果你又有一套需要设计的房子,再恰好你又对高品质生活有着追求,无论面积大小,call me maybe~
-end
QUESTION & ANSWER
Q & A
Q:装修过程花了多长时间?
A:整个装修时间花了半年,对于全面翻新来说属于正常时间
Q:你对这套作品最满意的地方在哪里,为什么?
A:最满意的地方在于户型改造,改造后的户型实实在在的解决了一家人的居住问题~
Q:对平面布局做了哪些优化改动,为什么?
A:布局上主要移动了中央过道,还有把阳台空间并入房间。挪动过道这个改动虽然大胆,不过对户型的改变有了质的效果,房间面积平衡,开放式厨房的实现也有了面积;原来的阳台面积太大,实际也用不到这么多,合并进房间封窗以后,反而改善了房间的体验~
Q:在整个装修设计期间遇到最大的挑战是什么?
A:施工期间,砌墙和水电部分是比较难的交接点,因为在屋子未成型的时候需要做非常多的参考辅助才可以定好位置,这里感谢施工监理刘工和艳姐的耐心配合~
客服
消息
收藏
下载
最近




































