查看完整案例


收藏

下载
谏和的由来,源于我们自身的定位,我们希望以一个专业的朋友的身份,为我们的客户提供高效的解决方案,一起用心做好每一个项目,成为大家的KOL
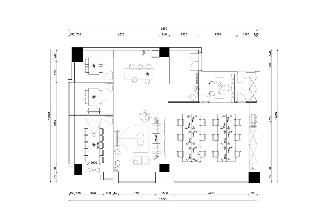
由于是一个旧办公室改造户型,受限于原有的空调和消防布局,所以平面规划上并没有较大的改动。在此基础上,我们开始重新思考公共区域与办公空间的关系,我们并不希望“隔离”,而更希望融合,于是用一个半开放但是又错层的关系进行移动布局,也使得空间更加规整。
在入户区域我们的设计只是单纯的留空,使得客户和员工进入办公区都有一个缓冲的过程,放下一路上的喧嚣,沉静哪怕短短数秒。 同时留出来的区域也可以作为儿童玩耍的区域。
我们围绕整个客厅设置了一组大的沙发区,地毯,空调毯,杂志架,纸巾盒,电视,和正常的家庭一样,这就是我们的客厅,一个实实在在的分享客厅
吧台上的咖啡机,热水机,冰箱里的食物随意自取
与原有的空间拥挤情况拉开差距,我们更希望开放,拆掉吊顶,扩大个人的桌子面积,拉宽桌子与桌子之间的间距。
整个空间使用大量的木色和低度的灰色。当氛围回归温馨与平和,我们内心更能保持保持宁静,纯粹,和源源不断的创作热情。
人们摒弃循规蹈矩,将安静而理性的态度落在这个办公空间,设计师营造的意境则融于工作场景的细枝末节,让每一个工作者能够在此挥洒着自由自在的书写方式。
会客区的墙面配色引用了我们整体VI中的棕灰,形成宽敞舒适明亮的环境
传流不息的内环与黄埔大道,也是广州的一张独特城市名片
墙面的配色,源于我们的四色VI
用心创造空间的价值,是我们的设计理念 互相尊重与信任,认真对待每一个家,合理使用每一笔预算,是我们的态度 也欢迎有着同样信念的你,来到我们的家,JHD的家,所有朋友的家。
最后的最后,是分享的热爱让我们团队凝聚在一起,感谢大家一路走来的支持。
Q:装修过程花了多长时间?
A:大约一个半月的时间,施工过程中相当的快,主要因为工装工程,审批手续等交接时间比较长而已
Q:说说是什么给了你灵感,打造出现在这个作品的?
A:前文中也提到了,是“家”的灵感,我们不希望打造一件办公室,而是JHD的家
Q:你对这套作品最满意的地方在哪里,为什么?
A:最满意的地方在于最终成品的效果与预算的控制,许多朋友来看都说做完不止这个造价呢,偷笑~
Q:在整个装修设计期间遇到最大的挑战是什么?
A:消防和审批问题,因为这些改动的时间和手续过于漫长,我们不得不放弃重新设计的思路,转而改为在原有基础上的改造
客服
消息
收藏
下载
最近
























