查看完整案例


收藏

下载
我们先从整体来看一眼这间屋子
一进入房间,最先看到的就是餐厅了~重新设计后的冰箱挪到了餐厅侧面,采用全嵌入暗藏的形式,用同色的橱柜面板覆盖,看起来简洁整体。餐厅的西厨一直延申一整排的柜子到客厅沙发背面,满足更多的储物需求~
初次勘察时房屋的样子,墙面地面均以做好,仅缺少家具软装~
设计时的效果图,这上面着重设计柜体部分与家具部分
选用深灰浅灰不同颜色的板材来搭配原地面的效果,其余的硬装部分则选择相似的材质还原出本来的样子~
最后完成的实景照片,与效果图设计高度一致,完美实现效果落地~
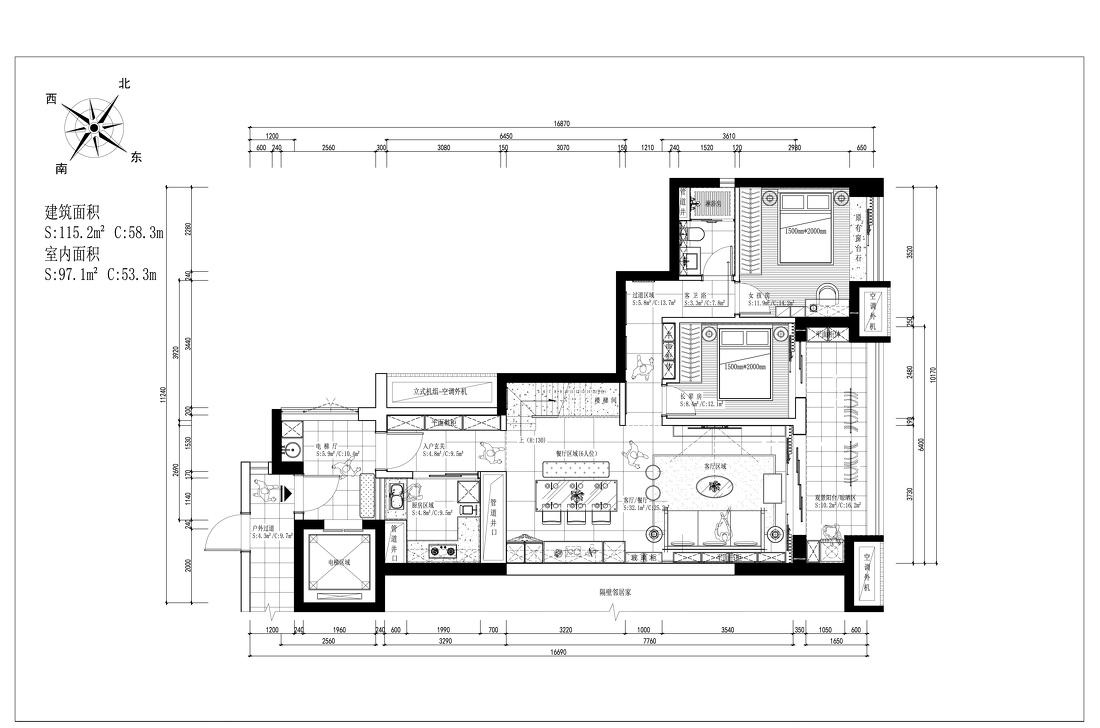
原始户型图一楼~
整个户型结构是一套双层复式的结构,建筑两层为一户互相交错在一起,而且有专属的电梯一梯一户直接连接进门口的玄关。
从玄关步入之后便是一条过道,过道的两边分别是厨房与鞋柜,接着就是宽阔的客厅与餐厅了。之后再通过一条过道连接两间卧室和洗手间。
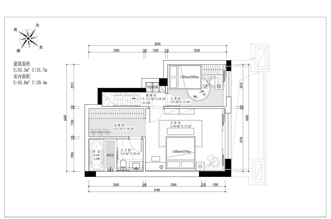
原始户型图二楼~
走上二楼的楼梯位于餐厅旁边,二楼就是很简单的两个房间
户型原本的优点非常的明显,整体的动线合理,户型的利用率也很高,得益于一二楼整体连接起来的大阳台,所以各个房间的采光都相当不错
一些些缺陷的话,那就是厨房太小,楼梯的踏步面不够宽。
不过整体的格局上来说,是满足现在业主家庭人员居住的。
所以我们的设计要点,就变成了在不改动原有结构的情况下进行美观上的优化
小 tips:在设计精装房的时候,原始结构的户型测量一定要精准而到位,除了常规的房屋尺寸外,层高,插座,开关,水路的位置也需要精准测量,这些尺寸也会影响到后续的软装设计~
修改后的平面布置图一楼~原来屋子里的厨房太小,于是把冰箱的位置挪动到了餐厅,同时也为了给全屋更多的储物空间,沿着餐厅冰箱到客厅沙发后面,一直做了一整排的储物柜这个储物柜其实还有一定的功能性,这点我们稍后再说~
修改后的平面布置图二楼~
二楼也是把过道中间的那个空格,用储物柜填满,其余的房间部分就变化不大了。
客厅的整体设计配色偏灰色系,一是可以衔接原来精装房的地面配色,二是营造宁静平和的氛围感~
这张是从阳台望向餐厅的角度,开阔的视野可以让光线径直通向玄关。
天花上的灯具全部换成了无主灯设计,两条磁吸轨道灯++ 一些筒灯即可照亮全屋~
客厅最主要的部分就是这个柜子,同时承担了装饰的美观性和储物的功能性,还要衔接原有硬装部分和电路。在设计之初就是一个非常重要的环节。
我们从左到右来好好看一下这个柜子:①最左边是阳台,这里就需要把柜体的材质换成不锈钢的材质来应对日晒雨淋,也好保护一下洗衣机烘干机,收纳卷起来的电线和水管~
②来到客厅室内,预先留出来 20cm 宽的窗帘盒,接着在沙发的背面做一整排的收纳储物柜
在这里收纳柜的开合方式是上下分段的,下方由于被沙发挡住,于是只能放一些行李箱的收纳
③沙发上方设计了一排的空格,用于安放环绕音箱,营造从耳边传过来的环绕音的效果,至于这个柜子为什么不设计到顶,自然是为了留出客厅空调的出风口了
④中间部分设计了一整块玻璃柜门的储物柜,刚好用于展示家里的一些藏品和方便拿去的物品
⑤最右边部分因为靠近餐桌,整体用了一个西厨橱柜的设计形式,上下分段,左右分别嵌入酒柜与冰箱
家具的挑选来自于不同品牌的组合,均以营造整体感为挑选要求,部分品牌 CAMERICH、NORHOR、ZAOZUO,文末附上完整的软装清单。
厨房位于进门口的鞋柜对面,把冰箱移动到餐厅之后,原来冰箱的位置则腾出来空间,塞下调味篮和蒸烤一体箱
长辈房位于客厅电视背景墙背后,刚好紧挨着阳台方便长辈出入
女孩房位于一楼过道最里面的房间,原来的飘窗上有一个凸起的小角,于是设计了一整排抽屉柜压在飘窗上,不仅增加了储物空间,也让飘窗更好的坐着休闲
床单上藏着小小的彩蛋~哈利波特徽章款床单
从餐厅的侧面上楼,原先精装的结构设计了一排楼梯下的储物柜,很是实用
男孩房位于二楼,因为年纪很小所以安排在主卧室隔壁的房间
墙面是小孩喜欢的蓝色,床头手绘了一面宇航员的画,让小小的房间看起来更丰富
主卧室是整个屋子最大的房间,也正是得益于这个大空间,我们引用客厅相同的配色来斜向安装护墙板,并在其中插入灯带,再配合无主灯的设计,主卧室的居家氛围更加浓厚
不同护墙板之间的间距也正好把梳妆台与床进行分区,护墙板覆盖后的墙面可以开槽重新埋管走电线,多装下一个壁灯用于补充照明~
卫生间则没有任何改动了,原始制作的精装就是这样,各位朋友觉得怎么样呢~?
附上完整的软装清单,希望对各位住友有所帮助
整个项目最难的一部分,就是施工统筹部分了。
在改造的过程中,一定要把各个区域的图纸全都明确到位,每一条电路所应该在的合理位置
每一块色板的挑选所需要注意的细节等等。
统筹的工作包括,预算清单整理,施工图设计,柜体灯具家具等主材交接说明
还有最重要的现场与施工工人的项目交底了
来分享一下我自己最常使用的方法,那就是把所有关键的细节直接标注在墙上这样不论是各个工种的师傅,都可以快速了解信息,减少认知偏差
从左至右依次是设计师吴思昊,施工监理翁工,定制柜体设计师邱小姐,本案屋主俞小姐~
精装房的改造是一项折衷的设计过程既不破坏原来购房的结构,又可以达到一个喜欢的室内效果,两全其美。
从设计上来看,这更是一个融合的设计,在大的框架已经固定的情况下设计师和屋主的配合像是手术刀一般精准的操控每一处的细节。
处处充满着矛盾,也留下了对立统一的美学。
如果你在广州,如果你又有一套需要设计的房子,再恰好你又对高品质生活有着追求,无论面积大小,call me maybe-end。
QUESTION & ANSWERQ & A
Q:回头再看这套房子,设计当中有什么遗憾的地方吗?
A:最终的效果过于灰调,客厅还可以搭配的更出“彩”一些~
客服
消息
收藏
下载
最近





































