查看完整案例


收藏

下载
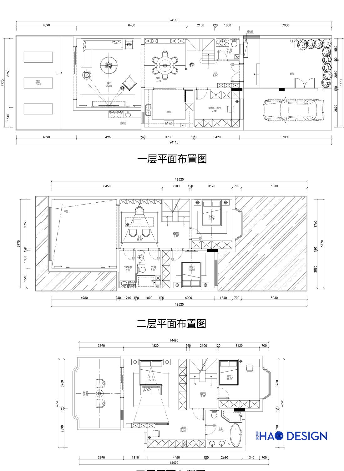
原始结构户型上就有着非常好用的布局,楼梯位于整栋建筑的中心位置,刚好连接三面的房间。
建筑物两面均有着不错的采光,贯通起来后通风效果也不错。缺点则是原始的房间大小划分不太合理,不过这也正是我们设计上需要优化的地方。
调整后的平面布局,我们结合屋主的生活动线一一优化了各层的结构:
①一楼入户花园侧面隔开一个车库,改动进入花园的大门,挪到侧面后既保护了隐私也更方便停车后进屋。
②一楼重新设计了厨房和工作室的大小比例,把原来的室内车库往外扩充面积,扩充后的面积分配给工作室,让两个室内的空间都足够大。剩下的一楼客厅餐厅则维持原有位置。
③书房区域设置在了二楼夹层处,与一楼的挑空客厅联通起来,屋主在家喝茶办公时也可以很好的和一楼的家人互动。
④三楼的主卧室区域进行了一个很大的开敞设计,客厅和衣帽间不设隔墙,完全开敞。达到屋主站在卧室中看到的效果,视野非常开阔,阳台入户去尽收眼底。洗手间的位置刚好面积够大则安排在原位置。
新中式风格空间上讲究层次对应,玄关天花地面均以方格形设计,结构清晰。
玄关柜以实木定制为主,简洁线条勾勒的柜子门板中融入黄铜定制拉手,方便使用~
客厅布局设计上力求还原整体的空间感,电视墙与沙发背景均选用大面积的石材竖向铺贴,不仅拉伸纵向空间,石材的反光还可以将更多光线引入室内
家具设计则更加还原传统中式,家具陈设讲究对称,重视文化意蕴;古玩、盆栽、精致的工艺品加以点缀,更显屋主的个人品味。
同时也为了中和传统家具的厚重感,在色彩上采用柔和的中性灰调,给人优雅温馨自然的感觉。
这样的色彩搭配未来也更好融入未来其他的生活用品
餐厅位于客厅侧面,紧贴厨房。为了保护一定的私密性,与楼梯间中间设计了一扇屏风进行阻隔。
整体设计沿用客厅的设计思路,配色与家具陈设保持高度一致,更好的衔接整个一楼
餐边柜的设计并没有全部采用实木柜门,上半部分吊柜采用玻璃柜门设计,方便实用时找到需要的物品。
厨房的设计则一切为了功能性考量,回字形布局满足洗切炒一条龙的做饭流程,中间新增一个吧台方便备用功能操作。
由于内部采用不锈钢橱柜设计,外观上则偏向现代厨房的简洁设计,纯平的柜门板搭配暖灰色的地柜,也为厨房外的新中式形成了一定的衔接性
楼梯扶手选用玻璃栏杆+实木扶手,旁边新加一盏壁灯为楼梯间补光
主卧室的位置刚好位于一楼客厅正上方,得益于结构,主卧室有着全屋最大的面积。
不过在设计时确刻意简化处理,以营造室内的开扬感。对应屋主的生活而言,主卧室也仅仅是休息睡眠的区域,大部分在家时间都是在公共区域活动。
主卧室洗手间的位置并没有改动,原面积大小刚好可以安放下洗手间的内的东西。区别于公共空间的设计,洗手间选用黑橡木来制作柜面板,加深与墙面砖的对比度~
最后是我们一起的大合照
从左至右依次是设计助理郑工,硬装设计师吕工,屋主一家,软装设计师吴工
如果你在广州,如果你又有一套需要设计的房子,再恰好你又对高品质的生活有着追求,无论面积大小,call me maybe~
-end
QUESTION & ANSWER
Q & A
Q:装修过程花了多长时间?
A:大约一年的时间,没有别墅常见的施工加建过程,所以相对比较快一些
Q:说说是什么给了你灵感,打造出现在这个作品的?
A:灵感来源于古典中式与设计流行元素,现代简洁的硬装设计,采用地砖拼缝、五金小件、中式摆件等小物品融合搭配,最终形成现在的作品
Q:对平面布局做了哪些优化改动,为什么?
A:平面上最主要的优化是面积的调整和扩大。一楼厨房储物间原有设计面积不够合理,则往外扩充。主卧室的面积够大却被分隔成了多个空间,于是合并开敞
Q:为了满足客户的个性化需求,你在设计过程中做了哪些事情?
A:最终的设计效果整体性还是不够统一,比如石材收口的细节,一些门框的细节,还可以把全屋完善的更好
客服
消息
收藏
下载
最近






























