查看完整案例


收藏

下载
疫情不仅带来了病痛与苦难,同时对这个世界按下了暂停键。老舍先生曾说过:生活是种律动,须有光有影,有左有右,有晴有雨,滋味就含在这变而不猛的曲折里。
The epidemic has not only brought pain and suffering, it has also put a pause button on the world. Mr. Lao She once said: "Life is a kind of rhythm, there must be light and shadow, left and right, sunny and rain, the taste is contained in the twists and turns that change but not drastic."
设计以现代简约风格基调,在舒适的空间下以低饱和度的色彩布置。
设计的重点在于从繁忙的工作中抽离出来,打造极简舒适宜人的内部居家,优化各功能区之间合理的交通流线。
The design is based on a modern, minimalist style with low saturation colors in a comfortable space. The focus of the design is to detach from the busy work to create a minimalist, comfortable and pleasant interior home, and optimize the reasonable flow of traffic between the functional areas.
客厅主要采用纹理漆与少量的木饰面结合,留白的空间更能够映衬出照映的光,让更多可能的元素成为家的一部分。这是摒弃对于物欲的过分追求,获得最简单的生活。
The living room is mainly a combination of textured paint and a small amount of wood veneer, and the white space is more able to reflect the light, allowing more possible elements to become a part of the home. It is about abandoning the excessive pursuit of material desires and achieving the simplest possible life.
绿色的沙发起到调和作用把窗外的阳光极好地过渡到了室内之中,暖和了对比成分,使空间自然和谐,清爽之中不乏暖心嗅觉。
Green sofa rises to mediate effect the sunshine outside the window was transferred to indoor extremely well in, warm contrast component, make spatial nature is harmonious, there is no lack of warm heart olfactory in relaxed.
客厅合并原有阳台的位置扩大客厅区域,同时放大原有梁位的缺陷使它成为设计的一部分。
The living room was incorporated into the original balcony to enlarge the living room area, while the defects of the original beam were magnified to make it a part of the design.
黑色的茶几与白色的沙发展显相得益彰的美好景象,碧绿的枝叶在一片漆黑中生长,尽情释放着生命的光华。
B
lack tea table and white sand develop the beautiful scene that bring out the best in each other, green branches a
leaves grow in a dark, releasing the splendor of life to the top of one’s heart.
墙面的线性灯光与结构很好的结合在一起串联了整个空间,墙面的纹理漆与顶面相呼应。简单的形式产生多变的光影效果。
T
he linear lighting and structure of the wall are well combined in series to connect the whole space, and the texture paint of the wall echoes the top surface. The simple form produces a variety of light and shadow effects.
卧室采用按弹式壁灯,设计师把装置隐藏在靠背的凹槽之中,光面整洁大方,既实用又有层次感。
The bedroom is used to press the lamp of play type wall, stylist hides the device in the groove of back of a chair, smooth surface is neat and easy, already practical have administrative level feeling again.
地面原木色的地板与床靠背饰面相呼应,床品选择白色棉麻质地,简单却富有质感。整个空间都笼罩在一种薄薄的安宁和温馨里,活色生香的日常气息流动于目光所及的每个细微处。
The floor of ground log color and bed back act the role of face photograph echo, the bed is tasted choose quality of a material of white cotton and hemp, simple but rich simple sense. The whole space is enveloped in a thin sense of peace and warmth, the daily scent of vivid color flowing to every detail of the eye.
只有当一个人闲下来的时候,才能体会这生活的滋味与百般清福,或见花开,或遇花未眠,闲看几本书,慢临三两行字,静沏一壶清茶,让生命在人间的烟火里,与春日同明媚。
Only when a person idle down, can experience the taste of this life and all kinds of Qingfu, or see flowers, or meet flowers not sleep, idle read a few books, slow to 32 lines of words, static brew a pot of green tea, let life in the world of fireworks, with the spring with bright.
FCPSTUDIO
| 福州|私宅
| 90
△ 原始平面图
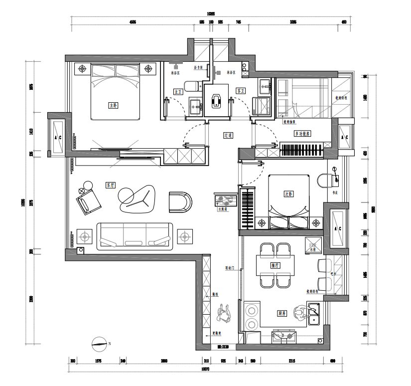
△平面功能图
荣誉华鼎奖 2018-2019 年度住宅空间类金奖金堂奖 年度优秀住宅公寓设计作品获得者迪古里拉(中国)芬琳漆全国家装案例大赛团体金奖第一届中国建筑装饰设计大赛家居类作品优秀奖海峡杯 第四届装饰企业设计大赛家装类设计方案创意奖海峡杯 第四届装饰企业设计大赛家装类优秀设计奖塞尚.印象杯 设计师大奖赛专业组家居方案类优秀作品奖内容策划/
MimDesigncy
策划 Producer :Eagle
撰文 Writer :Paul 排版 Editor:Paul
客服
消息
收藏
下载
最近
















