查看完整案例


收藏

下载
Home Lifestyle
以空划域|隔间为舍
「域舍」,专注理性的艺术
从设计的角度,为空间赋予无限可能
「 旗滨领海国际民宿 」
住进一间令人欢欣雀跃的屋子之于探索喜爱的城市有着非同寻常的意义
设计面积/276
Design Area /276
主案设计/陈嘉源
Designer / Jiayuan Chen
BUILDING SURVEY PLAN
1F - 原始结构图
2F - 原始结构图
FLOOR PLAN
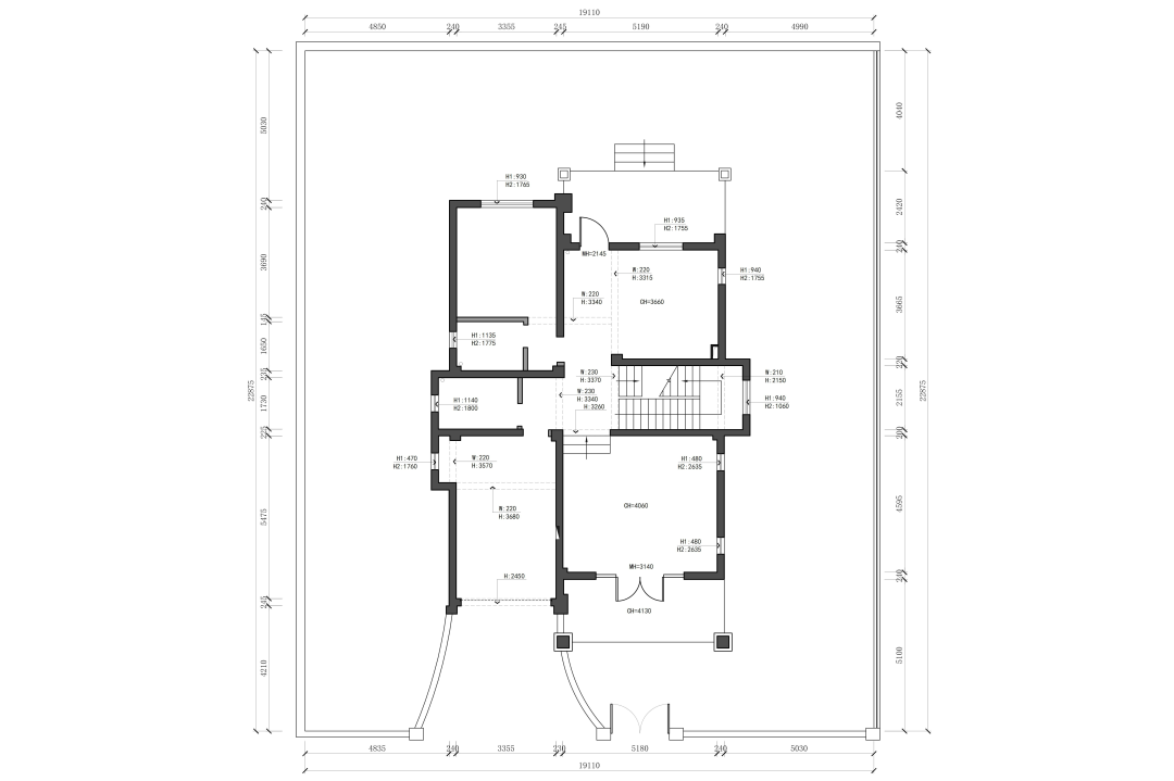
1F - 平面布置图
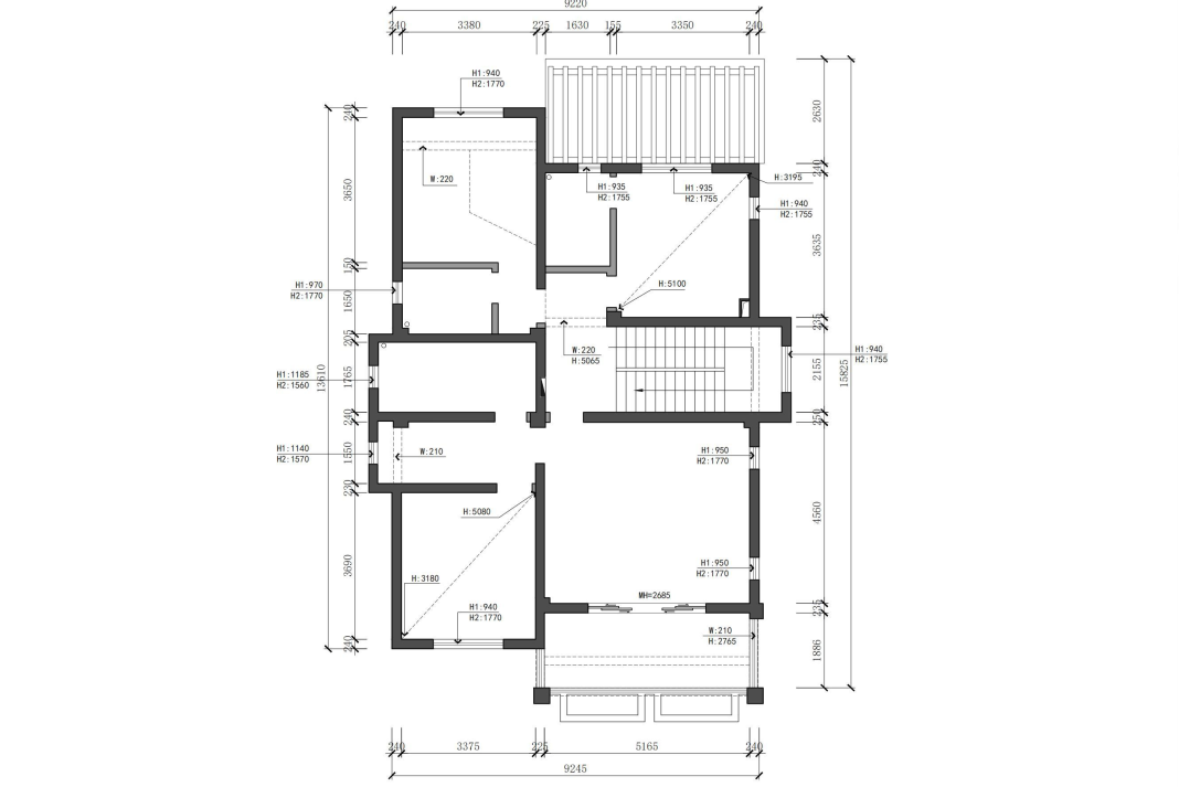
2F - 平面布置图
SPACE APPRECIATION
当内心被生活的繁冗与尘埃包裹,寻一处新城市的曼妙称得上是最佳选择。短暂离开熟悉的周遭,调整呼吸,放慢脚步,作为身心短暂避世的逗留停歇处,给处于荆棘中的疲惫之心,迢递一小片纯粹淡柔。
When the heart is wrapped by the complexity and dust of life, it is the best choice to find a new city. Leave the familiar surroundings for a short time, adjust the breath, slow down the pace, as a temporary refuge for the body and mind, give a small piece of pure light and soft to the tired heart in the thorns.
纷繁之美可以掩盖缺憾,而至简则是对精致生活的孜孜不倦。墨蓝与深灰轻盈地舒展,柔软弧度穿梭其间,细腻的纹理本色近在咫尺,将环境与自然之间的对话娓娓道来。光线游弋变幻,日出黄昏时,只是静静坐着也不算虚度。
The beauty of complexity can cover up the imperfections, while the simplicity is the tireless pursuit of exquisite life. Ink blue and dark gray are light and soft, and the delicate texture is close at hand, which tells the dialogue between environment and nature. When the sun rises and dusk, just sitting still is not wasted.
四房一厅,在相同的空间内,设计各异的布局绽放出缤纷的灵感之光。朴素淡雅、徘徊流连有之;鲜活明丽、快意人生也能找到归宿。相伴而行,各得其所,这份共同感怀更会成为记忆中熠熠发光的一段。
Four rooms and one living room, in the same space, the layout of different designs blooms colorful inspiration. Simple and elegant, wandering and lingering; Fresh, bright and happy life can also find a home. Accompanied by the line, each has its own place, this common feeling will become a shining part of the memory.
1F - ROOM 1
自然生活的悠然与现代便捷时光的舒适恰如其分地相伴左右,润物细无声地消弭心中的焦躁与烦闷。时光静止,意蕴从容,将随想与憧憬定格成完满模样,让时间在流转中梳理生命,让心在一片欢笑自在和其乐融融中安然落地。
The leisurely natural life and the comfort of modern convenient time are appropriately accompanied, moistening things silently to eliminate the anxiety and boredom in the heart. Time is still, meaning is calm, freethinking and vision are fixed into a perfect shape, so that time combs life in the flow, and heart falls peacefully in a happy and comfortable way.
2F - ROOM 2
2F - ROOM 3
2F - ROOM 4
寻找一份远近刚好的距离,隔开平日的忙碌与喧闹。来了便不是匆匆而过,寻得悠然自在才能满足。安心是此行目的,常记来者日暮,沉醉不知归路。
- END -
AWARDS|获奖荣誉
2020亚太设计精英邀请赛-年度办公类别佳作奖
2020-2021.40 UNDER 40中国(厦门)设计杰出青年
2020国际空间设计大赛“ID+G”金创意奖-国际创新设计奖
第七届中国装饰设计奖(CBDA设计奖)-银奖
第十届中国国际空间设计大赛(中国建筑装饰设计奖)-银奖
IAI全球设计奖(室内奖)-铜奖
第十届艾特奖-铜奖
2019艾鼎奖-优秀奖
2019红棉奖-优秀奖
2019金堂奖优秀作品奖
2019这就是设计年度最佳办公空间奖
PAST WORKS|往期回顾
《和煦 | 温暖呈现,探寻舒适惬意的品质
《御苑| 超然脱俗,享一份沉淀的安然
《宁谧|让空间回归恬静,让体验回归舒适
客服
消息
收藏
下载
最近

































