查看完整案例


收藏

下载
视·界
- 宇宙的浩瀚令人生奇,这世间的可能也有千万种,撷取未知中的任何一个领域,都有可能是“平行时空”。
- 灵感与风味,新潮与创意,创时代之先风,领饮品之潮流,是时代背景下的突围者,更是一种全新的生活态度。
- 项目:平行时空
- -------------
- 设计面积:一层 100㎡,二层 233㎡
- 主案设计:陈嘉源
- -------------
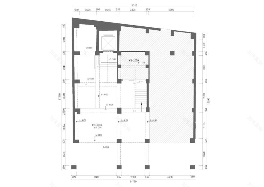
- 一层原始结构图
- Original structure
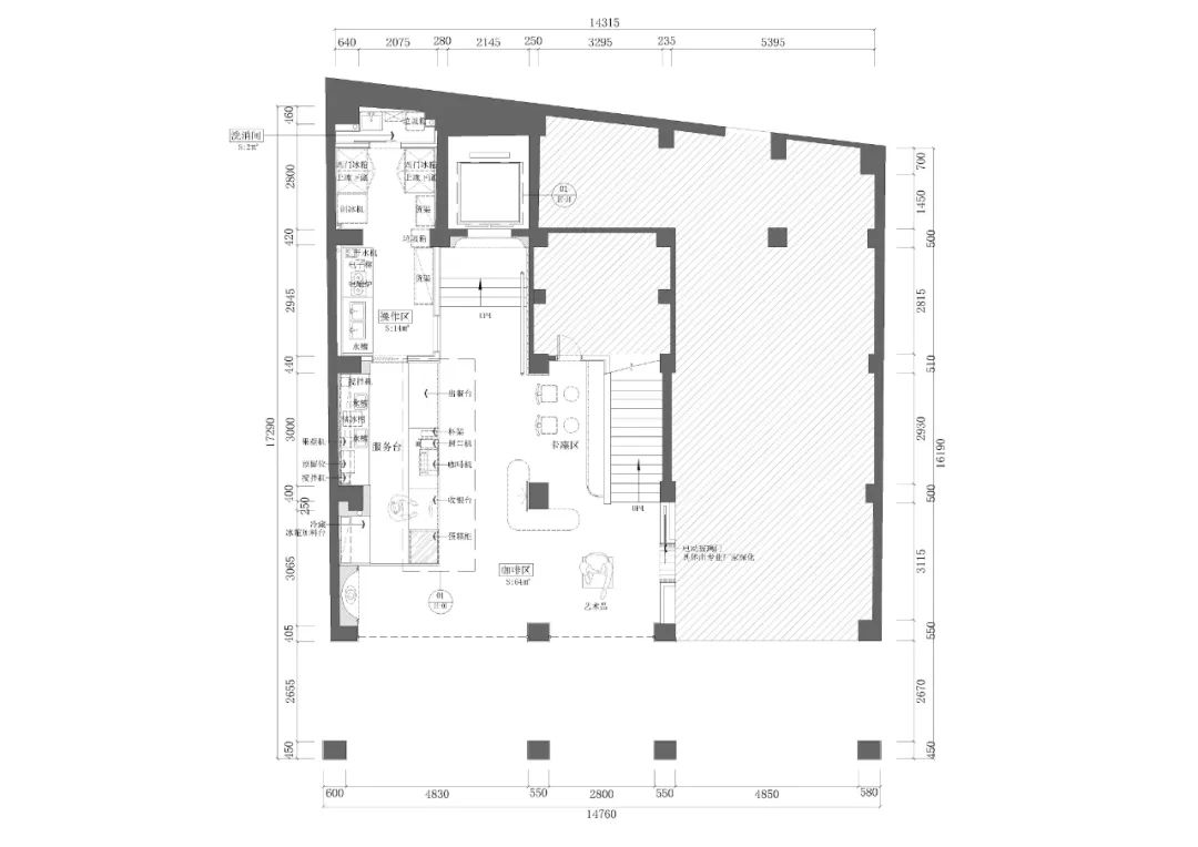
一层平面布置图
Layout chart
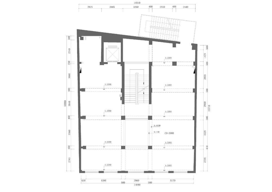
二层原始结构图
Original structure
二层平面布置图 Layout chart
城市印象 City Impresstion
中山路步行街,见证着厦门这座岛城的发展与变迁,它将历史与现代感完美交融,赠予厦门一张时尚靓丽的形象名片。在这里,文艺、浪漫是它的标签,先进、潮流、科技感,也与它息息相关。
围绕着对城市的印象,以及与品牌的跨界对谈,我们深刻解读,深切领悟,一个神秘、潮流、满载创意的“世界”便应运而生。如同穿梭于另一个次元,这里比想象的有趣、比眼见的新奇,科技与神秘感重重交织,一切都变得出乎意料。
一层:时空拟境
Spatiotemporal Simulacrum
当艺术与科技结合,层层碰撞,便是一轮奇妙的感官盛宴!藏匿于异域世界的时空胶囊,满载未知的谜底,让天马行空的想象,与现世的时光轻语;朋克炫酷的太空舱,任由思绪漫步,解构着科技的美妙与神奇;不锈钢材、弧形切片、炫目光线、幻影幕布、镜面、玻璃、各种反射与倒影,聚合神秘迷人的氛围,全然定义科技感,彰显时光穿梭的意境,引人入胜。
科技赋予艺术创造力,艺术让科技更有生命力。艺术雕像的点缀,融合这座岛城独有的船帆元素,营造独特的视觉体验,鲜活而别具一格,生动又不失特色,整个“世界”都被装裹着一层“人文魅力”。
二层:潮派新生
Chaozhou New Generation
细节超越言语,实用主义与美学统一,更凝结着设计师的独特匠心。圆弧门洞与数字化 LED 屏相得益彰,勾勒着未来主义的完美弧度;胶囊、镜面元素的铺设,衔接着时空隧道与星球,日升月落间,感受时光的交替变换。
艺术的灵魂,造就空间的精神文明。美学的氛围、定制的体验,都演绎着空间里悄然发生的故事。潮品展示区将实用性与美感交织相融,轨道特设可活动展架,不锈钢圆柱也巧加包装,定制了陈设功能,360 度旋转,定义新的审美符号,呈现变幻可塑的自由性,让人带着对世界的好奇,放空想象,沉浸式的体验一场时空穿梭的旅行。
将抽象时空具象化,兼具新潮与科技、时尚和艺术,这是一个包容一切的“未来”空间,是独属于年轻人的社交旗帜,也是一种全新的生活态度,这里创意横行、趣味生长,一切不可能皆有可能!
END
「 获奖荣誉 · AWARDS 」
2020 亚太设计精英邀请赛-年度办公类别佳作奖
2020-2021.40 UNDER 40 中国(厦门)设计杰出青年
2020 国际空间设计大赛“ID+G”金创意奖-国际创新设计奖
第七届中国装饰设计奖(CBDA 设计奖)-银奖
第十届中国国际空间设计大赛(中国建筑装饰设计奖)-银奖
IAI 全球设计奖(室内奖)-铜奖
第十届艾特奖-铜奖
2019 艾鼎奖-优秀奖
2019 红棉奖-优秀奖
2019 金堂奖优秀作品奖
2019 这就是设计年度最佳办公空间奖
「 往期回顾· PAST WORKS」
《雅贵|音乐与空间的秩序,享时空流动之感》
《造梦|拒绝千篇一律,让童年更富生趣!》
《禅慧 | 一隅静谧雅致,书写东方禅意》
客服
消息
收藏
下载
最近








































