查看完整案例


收藏

下载
「 妙妙屋 」 WONDER HOUSE 奇妙即是多 Wonder is more
- 概念阐述 本案是为小朋友打造的家,充满奇幻感的娱乐化设计,让一个家处处充满惊喜。毕加索曾说希望“像孩子一样绘画”,“脸图形”长期以来作为现代艺术大师们的绘画对象被反复使用,同时在当代娱乐中以机器人、吃豆人、米奇妙妙屋等人们耳熟能详的原型为代表呈现。 脸的象征性得以让人们感到更童真、趣味和亲切,以戏谑的方式体现“刻奇”的概念。即在追求设计逻辑的同时又拒绝绝对理性,将看似“流俗”的娱乐符号,以一种“拼贴性”和“达达式”的创作模式融入当代住宅设计之中,籍由荒诞主义式的讽刺和批判来揭示顽固不化的“功能主义”套型产品住宅,空间的复杂与矛盾性得以显现。 空间视频
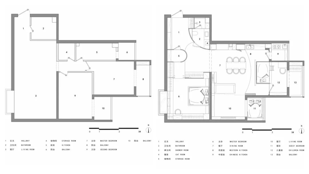
原始户型为133平米的两室一厅,东西朝向。客厅采光较差,44平米偌大的客厅空间确仅靠一个3平米的西侧窗户采光,显得昏暗不堪。公共属性的厨房被挤压在北侧卧室附近的角落,导致餐厅与厨房较远相互关系较弱,厨房与两间卧室的交通路径相交叉。
卫生间设置在了玄关处,卧室却在最内处,从卧室到卫生间需要绕两个弯,动线距离较长为7.6米。这样的原始布局也使得各空间始终处于动线关系较为混乱的状态。
改造后将客厅位移作为整个住宅的中心公共空间,整合零散孤立的各功能区的空间规划策略,如此整个空间将会获得高效的合理动线和相对均质的自然采光。空间组织围绕中部开放的公共空间与其他区域相互关联展开。
中心空间叠加了客厅、餐厅、厨房、娱乐,老人居住等多样化的使用功能,抽象的“脸图形“正对开放的公共区形成焦点,多样可变的脸形态,以适应不同的生活场景。玄关经由弧形墙流畅的过渡到开放的西厨就餐区,继续向东侧延伸至可独立使用的中厨,形式赋予连贯的功能布局得到整合。
入户第一视觉,三个弧形限定出内部空间与玄关过渡区的边界。考虑男主人经常出差,行李收纳的便利性,同时尽量不打扰其他家庭成员休息。
衣帽收纳区设置在了玄关附近,单独规划出的小储物间建立玄关和主卧间的视觉隔断,为主卧的私密使用提供保障,双门设计可以直通卧室。玄关上方的“青空灯”为灰色吊顶打开了一扇窗口,模拟出的天空光照视错觉使原本幽暗的玄关变得通透明亮。
弧形墙,动势从玄关流畅地连贯至住宅的中心空间,迎面是空间的中心视觉符号”大比例的抽象面孔”,形成了生活与视觉的焦点。垂直的界面因弧形灰色吊顶和对应的地面铺装产生形态上的张力,利用东向三面采光引导进入显得更加开敞明亮,扩大通向餐厅两侧的走廊宽度。
通过利用厨房阳台的封闭,中西厨得以分开。开放式的西厨与餐厅相互关联,同时整合了众多家用电器形成了一体化的家政服务区。
抽象拟化的“面孔”被故事性地编排入家庭成员的日常生活中,以戏谑的方式体现“刻奇”概念。“脸图形”同时传递趣味与童真,通过眼皮装置产生场景互动,为这个家增加了一种生活上的趣味焦点,形成了具有唯一性的符号象征。
中心空间作为灵活开敞的起居室,叠加了就餐、会客、娱乐、办公、储物收纳、临时居住等多项日常使用功能。空间边界之内,设计师没有继续附加限定条件,餐桌、沙发、茶几等功能部件的摆放皆可在开敞的空间内灵活调整。
沙发面向东侧儿童房,将得到一个自由的娱乐活动空间。将起居室内的靠窗角落作为供临时留宿的客卧,隐藏在儿童房走廊处的移动拉门可将客卧区从起居室当中独立划分出来。
儿童房的设计考虑到了家庭结构情况和未来的改变,下铺为1.5米双人床给出阿姨留宿与陪伴孩子入睡成长的空间,嘴形态开启状态可以为客厅增加更多采光,通过拉帘关闭后达到完整的私密状态。上铺为1.3米的单人床,为未来二孩的到来提供了更多居住可能。
眼皮装置对应上铺位置,小朋友可以通过操控装置使“眼皮“开合,与房间外部发生趣味的情景互动。除了互动的娱乐性,眼皮装置也可以暗示人在其中的作息变化,眼皮打开,暗示行为处于活动状态,眼皮闭合,暗示从活动进入就寝状态。
主卧室改到西侧的原客厅区,3平米飘窗式的采光刚好可以照亮整个卧室空间。进入主卧的推拉门隐藏在衣柜的两侧,与柜体合二为一。从主卧室到卫生间的动线也更加直接,动线距离从原户型的7.6米缩短到3米。
卫生间被安置在了玄关旁的弧形墙内,为了缩短家庭成员从各空间到达的距离,门的方向有所改变更为直接。猫咪作为家庭成员之一,卫生的便利自然不能忽视。考虑到方便人的清洁与气味的隔离,在弧形墙上开设了猫洞,给予宠物独立的交通动线。
猫室设置在了卫生间洗手台下方的浴室柜内,预留出了猫砂盆与食物投放机的功能,且加入了换气系统。将人与宠物的基本卫生需求得到体面的解决。
客服
消息
收藏
下载
最近





































