查看完整案例


收藏

下载

翻译
Architects:Bohlin Cywinski Jackson
Area :1200 ft²
Photographs :Matthew Millman
Principal : Greg Mottola
Project Manager : Christopher Orsega
Designer : Alex Gregor
General Contractor : Leslie Siegel
Mechanical, Electrical And Plumbing Consultant : MHC Engineers Inc.
Client : Blue Bottle Coffee Company
City : San Francisco
Country : United States
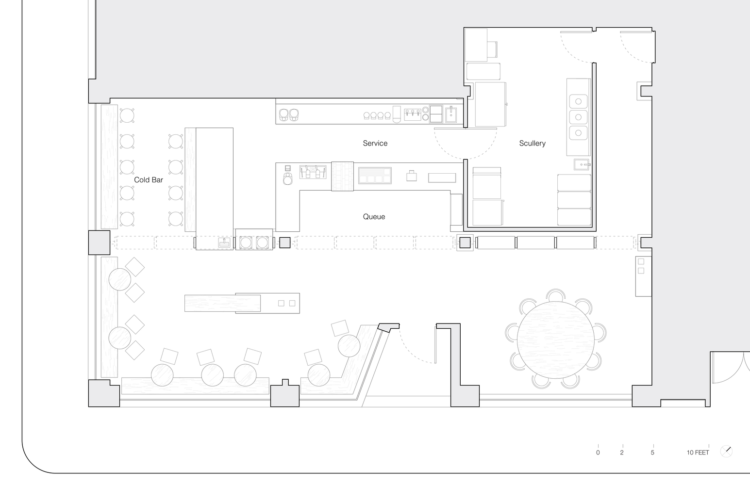
The first of several Bohlin Cywinski Jackson-designed cafés to be completed for Blue Bottle, this new 1,200-square-foot South Park location transforms the street-level storefront of a former Kohler warehouse into a light-filled, deliberately minimal interior space. The design reveals the site’s inherent beauty by stripping away the frivolous and unnecessary, elevating the most essential attributes of the architecture, such as original brick walls and heavy timber support columns, and enhancing the visible connection to the bustling SoMa streets.
Upon entering the café, a lattice of floating wooden boxes greets customers, creating a series of shadows and sunlight throughout the space; bags of coffee and serveware available for purchase are nestled within the framework, creating an eye-catching merchandise display. A subdued palette of warm wood, pale blue walls and concrete flooring complements the company’s branding and the craft of coffee making that is the hallmark of Blue Bottle.
New features include an iced coffee bar and the company’s first-ever Mavam espresso machine, which makes only the most necessary and visually appealing machinery visible to guests; other equipment integral to the company’s coffee making is incorporated into a crisp stainless steel and birch plywood bar. Patrons can sit and sip coffee on solid ash benches throughout the space, as well as banquette seating placed along the windows.
▼项目更多图片
客服
消息
收藏
下载
最近















