查看完整案例


收藏

下载

翻译
Architects:HUB
Year :2012
Photographs :Ilse Liekens
Manufacturers : AutoDesk, Reynaers Aluminium, TECU®AutoDesk
Lead Architects :HUB
Design Team : Bureau Bouwtechniek, Abt, Tecon Groep
Clients : Maurice Verbaet, Rijnkaai bvba
Mixed Program : 3800.0 m²
Underground Parking : 1250.0 m²
City : Antwerpen
Country : Belgium
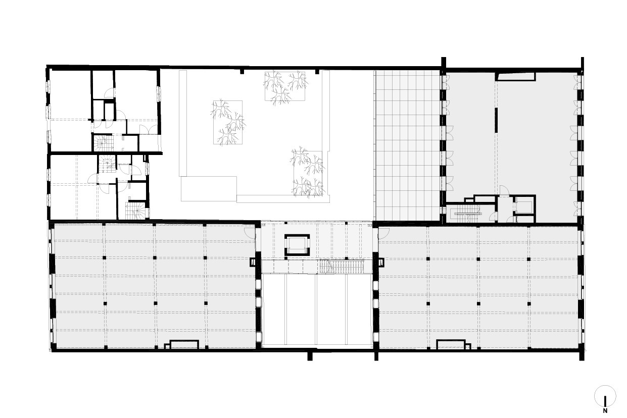
An ensemble by the river.The ‘Sanba and Stad’ project comprises a dyad at an exclusive location in the bend of the river Scheldt in Antwerp. It includes the renovation of an historic warehouse and the new construction of a lavish and elegant residential building.
Sanba is a model type warehouse which runs throughout the city block and has 2 identical facades on the Rijnkaai and in the Braziliëstraat. The deep floors with robust, concrete structures are reflected around the central courtyard with the authentic stairs and passageway which give access to the building.
This part of the building is to be renovated with maximum retention of the warehouse’s original identity. A two-storey penthouse has been added to the riverside. This penthouse – the roof villa – is leant form by virtue of its own sculptural identity whose copper roof creates contrast with while “capping off” the adjacent warehouse.
Stad is a new-build apartment building located on the Rijnkaai side. The building is characterised by its 15m long façade which has an open relation to the Scheldt and its magnificent bend. The inner area is shared with Sanba. Each layer houses a spacious residential unit oriented to both sides of the building. With the exception of a single column, the homes are entirely structure-less, allowing for total flexibility in tailoring the space to individual requirements.
The characteristic façade structure seeks a balance between the special surrounds and an intimacy that goes hand in hand with living. Subtle shifts in the façade surface intimate the scale of each residence in the building as a whole. As if grafted upon these shifts, the window openings become more and more generous as the height increases: from intimate living spaces on the first floor to a more direct relationship with the river on the highest floors.
▼项目更多图片
客服
消息
收藏
下载
最近






















