查看完整案例


收藏

下载
概述 Overview 安特卫普市政府计划在城区及周边区域塑造更可持续的交通系统,而这一举措的关键部分是开发一系列“Park+Ride”(停车+乘车)建筑。除了改善流通性,该市还寻求对进入市区的入口点进行外观上的提升。最终,数座新建的“Park + Ride”建筑将成为人们来到安特卫普时最先接触的门户。该项目的挑战在于要在不同尺度下结合多种交通形式,这些都超越了“Park + Ride”的空间本身。
The City of Antwerp wants to give mobility a more sustainable place in the city and the wider region. The development of a number of Park + Ride buildings is a crucial part of this initiative. As well as improving mobility, the city also seeks to lend a face to the access point to the Antwerp area. Consequently, the Park + Ride buildings are also public gateways through which people enter the region. The Park + Ride challenge involves various forms of transition, on different scales. These transcend the space of the Park + Ride in itself but do need to be reflected – afforded an identity – within it.
▼项目概览,Overall view
▼P+R 建筑摒弃了所有修饰元素,展示出清晰和经过细致考量的结构和材料使用,The P+R buildings are stripped of any frills but endowed with a clear and carefully considered structure and material use
设计目标 Objectives
·在城郊地带建造三座停车楼,用以减少历史城区的汽车数量。停车楼总容量约为 4000 辆。
·促进有序且安全地向公共交通和软交通模式过渡。
·创建成熟且具有代表性的公共基础设施,在促进可持续交通的同时成为城市和地区的门户。
·Reduces the number of cars in the historic city centre through the provision of three parking buildings on the outskirts, with a combined capacity of approx. 4,000 cars.
·Facilitates an orderly and safe transition to public transport and soft traffic modes.
·Creates a fully-fledged and representative public infrastructure that, in addition to facilitating sustainable transfers, also functions as a gateway to both the city and the region.
▼建筑没有立面,只有节奏和衔接,There are no façades, only rhythm and articulation
设计特点 Design Characteristics
· 支撑结构即是建筑本身:柱梁、楼板以及精心设计的轴承直接定义了建筑的形象。建筑没有立面,只有节奏和衔接。
· 使用层压木梁。减少了二氧化碳含量,并带来更大的净空高度,这反过来又能为建筑引入更多日光并提高透明度。
· 紧凑的平面结构。位于中心位置、自然布局的天井提供了尺度感和可识别性。
· 超安全的流通路线。行人在外墙和天井的一侧行走,而不是在车道上行走。
· 特殊的建筑元素。包括现场浇筑的混凝土螺旋楼梯,起到引导方向和在增强公共特征的作用。
· 底层的组织布局带来共享的空间和未来规划的广泛潜力。
· 三座建筑使用了相同的设计原则,但保持了各自的特性,并对它们所处的环境作出了适宜的回应。
▼沿道路望向建筑,View from the road
The supporting structure, which is also the architecture: columns, beams, floor slabs, and their meticulously detailed bearings, determine the image. There are no façades, only rhythm and articulation.
The use of laminated wood beams. These reduce the amount of embedded CO2 and result in a greater free height, which in turn allows more daylight into the buildings and creates transparency.
A tight plan structure in which centrally located, naturally arranged patios provide scale and recognisability.
Ultra-safe circulation routes in which pedestrians walk on the side of the façades and patios instead of on the roadway.
Exceptional architectural elements, such as a concrete spiral staircase poured on site, provide orientation and a public appearance.
The organisation of the ground floor allows for shared public use and broad programming.
Three buildings that, despite always applying the same design principles, are specific and respond appropriately to the context in which they are located.
▼支撑结构即是建筑本身
The supporting structure is also the architecture
▼外观细节,Exterior detailed view
在不同类型的场地上,个人(汽车)与集体(电车、巴士和共享自行车)交通方式之间的实际转换是极为重要的。因此,Park + Ride 建筑致力于让进出安特卫普的交通流更具可持续性和集体性。换言之,这些建筑和配套设施可以被看作是一种“运输”环境,就像机场、火车站和地铁一样,需要优先考虑换乘的舒适性、便捷性和安全性。提高运输的可持续性需要与大都市网络内的旅客、来访者以及居民的需求保持一致,而 Park + Ride 的核心,就是提供设计足够完备和细致的交叉换乘系统。
▼Park + Ride 提供完备和细致的交叉换乘系统,The meticulous intersection of this network is the core specification for the Park + Ride facility
▼顶层空间,Rooftop
At the level of the various sites, the physical switchover between an individual (car) and the more collective traffic modes (tram, bus and bike-share) are of crucial importance. In this sense, the Park + Ride building literally embodies the efforts to make the mobility streams that enter and exit the city of Antwerp more sustainable and collective. In other words, these buildings and the accompanying facilities can be understood as ‘transit’ environments; like airports, train stations and metro lines, where the comfort, legibility and safety of the transfer plays a primary role. These are the critical factors for ensuring that this transition is a success, and that improving the sustainability of mobility is aligned with the needs of the traveller, visitor or resident within the metropolitan network. The meticulous intersection of this network is the core specification for the Park + Ride facility.
▼位于中心位置、自然布局的天井提供了尺度感和可识别性,Centrally located, naturally arranged patios provide scale and recognisability
▼行人在外墙和天井的一侧行走,而不是在车道上行走。
▼中央循环空间,Circulation
项目包含三座 Park + Ride 建筑,分别命名为 Luchtbal、Linkeroever 和 Merksem,各自提供 1800、1500 和 680 个停车位。建筑设计取决于其结构本身,并与周围的集体空间和绿色空间形成融合的关系。建筑没有真正的立面,其外观仅由整洁的混凝土立柱和木梁(在材料方面也更加可持续)组成。位于中央的天井将日光引入结构内部,并对不同形式的交通提供了定位和引导的作用。
▼结构分解示意,Axon – exploded
Three Park + Ride buildings will be constructed: Luchtbal, Linkeroever and Merksem. These provide room for 1,800, 1,500 and 680 parking spaces respectively. The architecture of the buildings is dictated by their structure, and the way in which this encloses collective, green outside spaces. There are no facades. Instead, the very neat, hybrid structure – with concrete columns and timber beams (for a more sustainable material use) – is emphasised. The centrally located patios bring daylight into the structures and serve to orientate the various traffic streams.
▼底层视角,Ground floor view
▼整洁的混凝土立柱和木梁,The very neat, hybrid structure of concrete columns and timber beams
▼外观细节,Exterior detailed view
▼混凝土螺旋楼梯,The concrete spiral staircase
以人为中心
PEOPLE ARE CENTRAL
建筑最具美感且富有挑战性的一点是,其所传递的情绪与个性要与建成和未建成的空间交织在一起。设计团队试图将用户的需求、愿望和价值观与空间的具体特征结合在一起。这也是 HUB 一直以来的实践核心:正确地理解人们对环境及其氛围与功能的期待,从而在深度的共鸣中思考并推进设计。
The most beautiful and challenging thing about architecture is that emotions and personalities are interwoven with the built and unbuilt space. We align the needs, wishes and values of users with the specific characteristics of the spaces we design for them. This is central to our design practice. From the seclusion of a studio to the collective experience of a neighbourhood garden: we think and design from a sound understanding and deep-rooted empathy for people’s expectations of their environment, as well as the accompanying atmosphere and functionality.
▼在 Linkeroever P+R 大楼中,一条位于中心位置的自行车道直接连接到该区域的自行车网络,In the Linkeroever P + R, a centrally located cycle path connects to the regional cycle network
聚焦-深度
FOCUS – DEPTH
HUB 的建筑始终立足于对城市的重塑,其目标是在一个完整的空间范围内提供一致的高品质设计。这也是为什么他们一直坚持“聚焦-深度”的原则:在维持宏观视角的同时,将最微小的细节纳入考量。
Our buildings are always a rebuilding of the city. We aim to deliver a consistent level of design quality across the full spectrum of spatial scales. Which is why we adhere to the ‘focus-depth’ principle: to bring the smallest detail into focus without losing a sense of the bigger picture. In other words, we create architecture that adds structure to the urban context and design urban development projects that are rooted in an architectural and architectonic reality. This is the most important aspect of our added value and what sets us apart as a design studio.
▼建筑外观,Exterior view
▼场地位置示意,Location
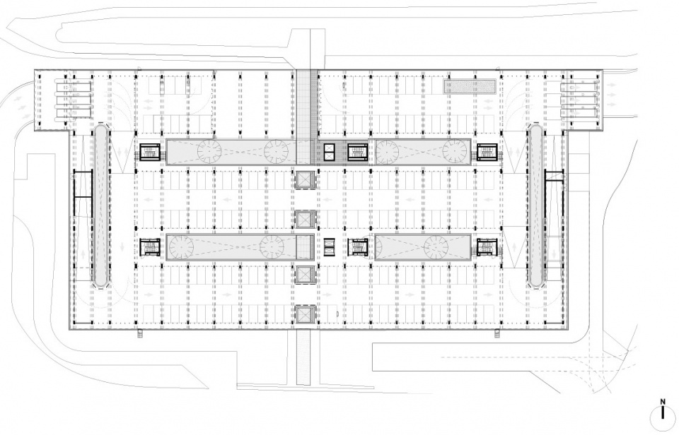
▼首层平面图,Ground floor plan
▼标准层平面,Typical plan
▼立面图,Elevations
▼剖面图,Sections
Park+Ride Antwerp
Antwerp (B), 2015 – 2022
commissioner: BAM NV
programme:3 park+ride buildings (1500pp / 1800pp / 680 pp)
Blancefloerlaan, B-2000 Antwerpen Luchtbal:
Noorderlaan 502, B-2000 Antwerpen Merksem:
Bredabaan 4772, B-2660 Merksem
partners: Sweco
客服
消息
收藏
下载
最近



































