知末
知末
创作上传
VIP
收藏下载
登录 | 注册有礼

collectief mars 打造简约舒适的空间

2020/08/03 05:03:20
查看完整案例
微信扫一扫
收藏
下载
翻译
Architects:collectief mars
Area :150 m²
Year :2019
Photographs :Katoo Peeters
Manufacturers :  AutoDesk, Reynaers Aluminium, Adobe, PU-flooringAutoDesk
collectief mars 打造简约舒适的空间-5
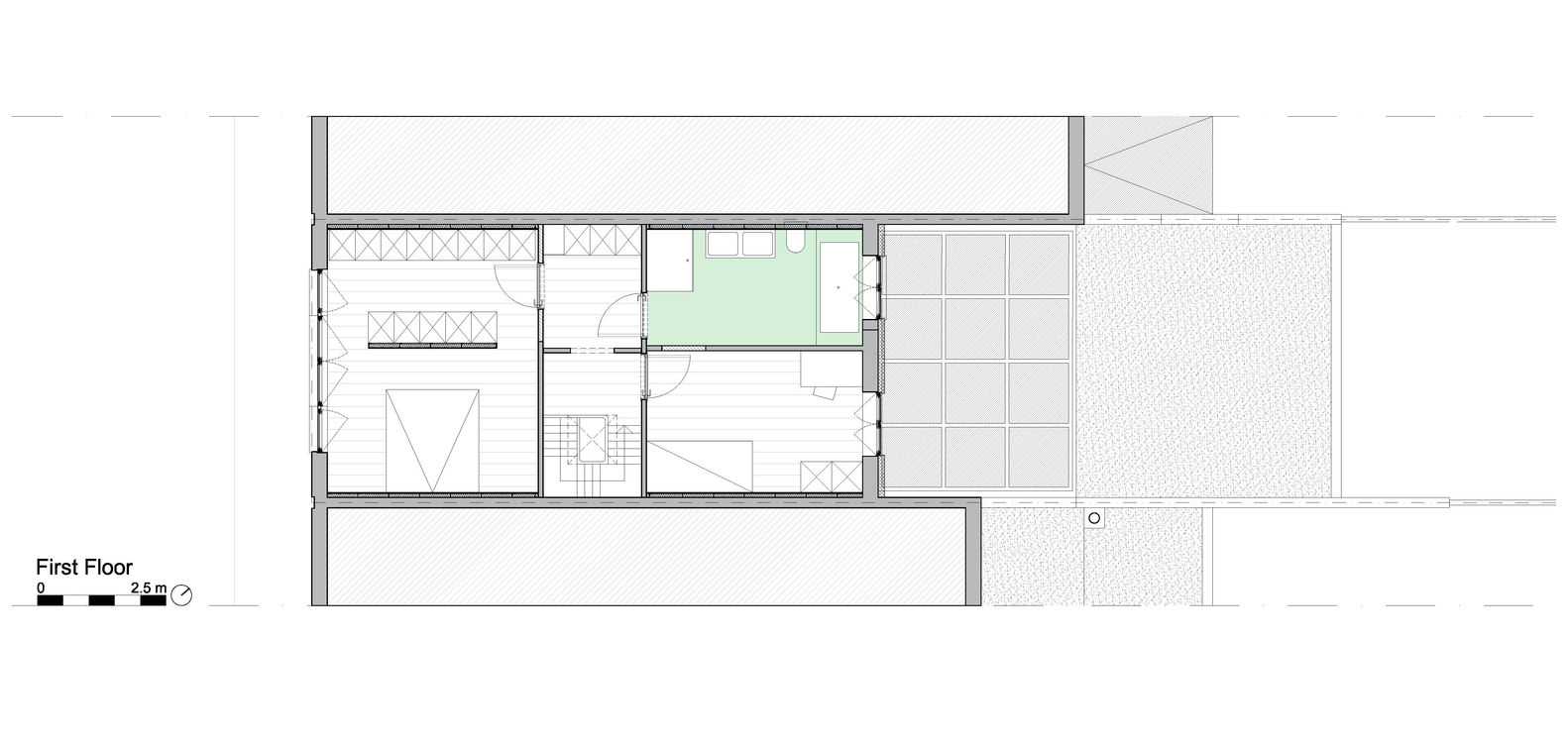
▼项目更多图片
collectief mars 打造简约舒适的空间-7
collectief mars 打造简约舒适的空间-8
collectief mars 打造简约舒适的空间-9
collectief mars 打造简约舒适的空间-10
collectief mars 打造简约舒适的空间-11
collectief mars 打造简约舒适的空间-12
collectief mars 打造简约舒适的空间-13
collectief mars 打造简约舒适的空间-14
collectief mars 打造简约舒适的空间-15
collectief mars 打造简约舒适的空间-16
collectief mars 打造简约舒适的空间-17
collectief mars 打造简约舒适的空间-18
collectief mars 打造简约舒适的空间-19
collectief mars 打造简约舒适的空间-20
collectief mars 打造简约舒适的空间-21
collectief mars 打造简约舒适的空间-22
collectief mars 打造简约舒适的空间-23
南京喵熊网络科技有限公司 苏ICP备18050492号-4知末 © 2018—2020 . All photos and trademark graphics are copyrighted by their owners.增值电信业务经营许可证(ICP)苏B2-20201444苏公网安备 32011302321234号
客服
消息
收藏
下载
最近