查看完整案例


收藏

下载

翻译
Architects:Duarte Fournies Arquitectos
Area :90 m²
Year :2019
Photographs :Pablo Casals Aguirre
Lead Architects :Juan Pablo Duarte Macaya, Hernán Fournies Aracena
Contractor : DF Constructora
Collaborators : Gonzalo Velásquez Fonseca, Nicole Vidal Marambio
City : Puerto Varas
Country : Chile
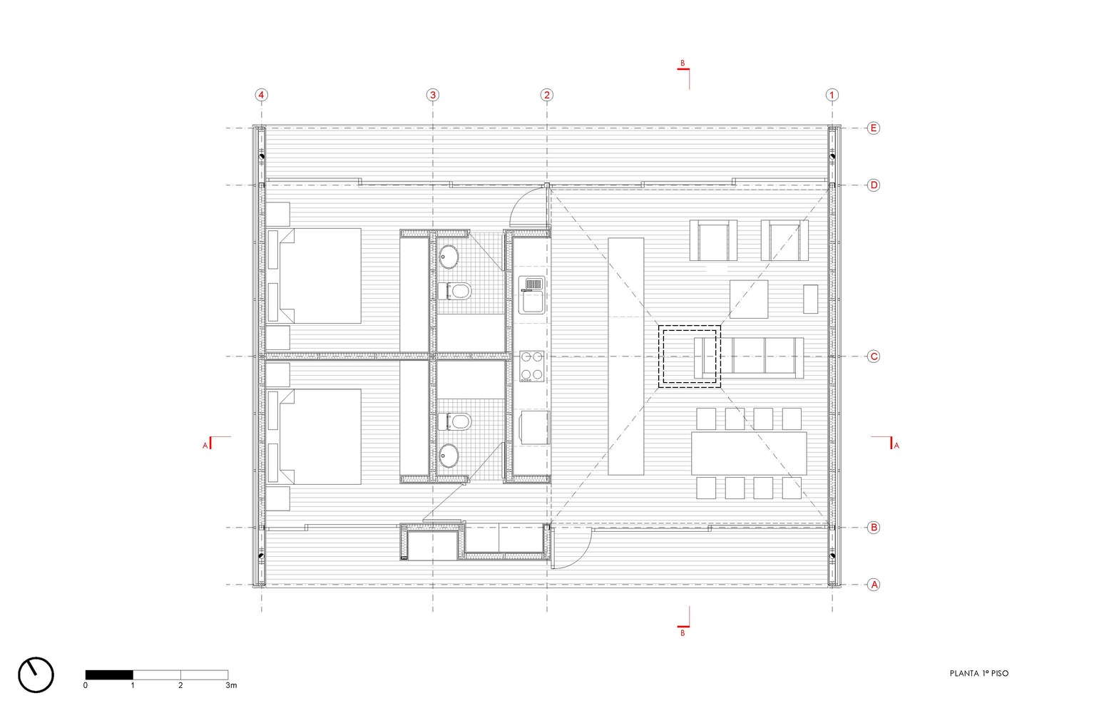
In order to optimize the 90 square meter, it was proposed one single space which contains all the public spaces separated from the bedroom area by a single kitchen and bathroom volume. The image of vernacular buildings of the area was taken to develop the Project, including: constructive systems, shapes and materials, such as wooden roof tiles made out of larch tree. The south and north façades are transparent to capture the views of the natural attractions, such as Calbuco and Osorno volcanos and Llanquihue lake. On the other hand, the east and west façades that face the neighbor sites are opaque.
From the public area it can be perceived the geometry of the roof, creating a higher room, reinforcing the idea of a meeting space. The ceiling structure is topped by a skylight that provides natural light and views of the sky that constantly changes, due to the weather conditions of the south of Chile.
▼项目更多图片
客服
消息
收藏
下载
最近

























