查看完整案例

收藏

下载
项目概述 | Overview
“未来之家”(Futurium Berlin)位于柏林的中心地带,专注于举办活动和各类展览。建筑坐落在教育研究大楼、施普雷河岸与Humboldt港口之间,靠近主要的车站以及Charité医院。“未来之家”拥有一个造型独特的体量,其立面后退于两侧的街道,从而创造出两处公共空间。大楼的折叠体量在施普雷河岸与高架的铁路之间显得十分突出。作为一栋全新的低能耗建筑,“未来之家”获得了BNB可持续性评价的金级认证。
▼建筑鸟瞰,aerial view
▼河岸视角,view from the river bend
The Futurium is a building for exhibitions and events in the heart of Berlin – embedded between the Bundesministerium für Bildung und Forschung (ministry for education and research), the Spreebogen (Spree Riverbend) and the Humboldthafen (Humboldt port), the main station and the Charité Hospital. The Haus der Zukunft (house of the future) creates its own sculptural identity in this ensemble. On the two main sides of the building, the Alexanderufer and the Kapelle-Ufer, two public spaces are defined by setting back the building. Folding the building up to create urban high points makes the Futurium a striking appearance between the Spree River and the elevated railway. The Futurium was conceived as a low-energy building and achieved the BNB-Gold sustainability rating.
▼建筑外观,exterior view
室外空间 | Exterior Spaces
建筑的外部空间由两个主要入口所在的宽敞前院构成。纵深达18米的悬臂式屋檐在入口下方构成带顶的公共空间。波点状的图案覆盖了整个公共区域,为之赋予了明显的特征,同时为座位区域、室内路径和静音区域的布局提供了有趣的逻辑依据。人行道旁的树木则为活动区域的开放露台提供了荫蔽。
The exterior space around the Futurium is organized by two large forecourts, where the main entrances are located. The entrances have cantilevering canopies of up to 18 meters generating sheltered public spaces. A pattern of dots covers the entire public space and lends it its own identity. Following the logic and design of the pattern seating areas, paths and quiet zones are playfully arranged. The open terrace of the event area is located amidst shady rows of trees along the passageway to the Charité.
▼后退的入口公共空间,public space set back from the street
立面 | Façade
建筑立面由超过8000块板材构成。70x70cm的结构单元由不同形态的金属反光片和带有纹理的釉面玻璃制成,随着光线的变化呈现出丰富的云雾意象。
The façade is made up of more than 8000 panels. The 70x70cm large elements consist of varyingly folded metal reflectors and textured glass with a ceramic print. Under the constantly shifting lighting conditions they generate an ever-changing cloud image.
▼立面细部,facade detail
▼铁道视角,view from the railway
观景窗 | Picture Window
南北两面的落地窗分别为 8 x 28m和11 x 28m,为室内带来壮观的视野,同时将新建的“未来空间”与当下的城市景观紧密地连接起来。
▼入口广场,forecourt
大厅 | Foyer
位于首层的大厅连接了主入口和建筑中主要的路径和公共空间,提供了会面和交流的场所。来访者可以从大厅去往任意一处服务空间,包括更衣室、洗手间、信息咨询处、咖啡馆和商店等。
The foyer on the ground floor connects the main entrances as well as all of the essential routes and functions of the building. It acts as a meeting point and space for communication. This is where visitors can find all the important services, such as the cloakroom, restrooms, central information, café and shop.
▼大厅,foyer
活动论坛 | Forum for Events
位于首层的活动空间可提供50-670平方米不等的区域,设置有可移动的墙壁和智能服务系统。充足的自然光、具有优质声学效果的浅色墙面、一系列投影装置和无障碍的设计共同促进了建筑空间与未来的对话。
The ground floor event spaces can be configured into spaces ranging from 50 to 670 m2 with mobile walls and intelligent building services. Daylight, light-colored and acoustically active surfaces, numerous projectors and a barrier-free design all together create a suitable surrounding for the dialog on the world of tomorrow.
▼项目模型,model
未来实验室 | Futurium Lab
位于地下层的展览空间被构想为一个隐蔽的实验室,参观者可在600平方米的空间中亲自体验未来实验的乐趣。裸露的黑色混凝土墙壁、沥青地板,加上由126个荧光屏构成的方格天花板,共同为这一6米高的、沉入施普雷河面下方的空间赋予了与众不同的氛围。
The exhibition space on the lower level is staged as a subterranean laboratory with an area of 600 m2 where visitors can experience the excitement of futurology hands on. Dark-colored exposed concrete, black asphalt floors and a ceiling grid made of 126 fluorescent screens lend this 6 m high space below the Spree River’s water-level an extraordinary atmosphere.
▼实验室位于地下一层, exhibition space on the lower level is staged as a subterranean laboratory
顶层展览空间 | Exhibition on the Upper Level
位于顶层的展览空间可通过中央楼梯或客梯到达。该区域是一个约3000平方米的整体化空间,可分为三个大型的展览区域,分别对应着未来人类与技术、人类与自然以及人与人之间的关系。
The exhibition space on the upper level is reached by means of the central stairway or the visitor elevators. This area is conceived as one continuous space of approximately 3000 m2. The exhibition will be divided into three large zones of thought that speculate on our future relationship to technology, to nature and to ourselves.
▼展览空间,exhibition area
长廊 | Galleries
无立柱的长廊悬挂在屋顶的两端,宽阔的玻璃墙为内部空间带来展览空间和室外空间的双重美景。
The galleries are column-free communication levels that are suspended from the roof structure. Due to their elevated position and the large glazing to either side, they offer fantastic views of the exhibition spaces as well as of the exterior.
▼剖透视图,长廊悬挂在屋顶的两端,sectional perspective, the galleries are column-free communication levels that are suspended from the roof structure
可收集雨水的屋顶 | Roof as Rain-Collector
倾斜的屋顶表面能够将雨水汇集到最低处并排放到水箱内,随后可用于建筑的制冷和绿化区的灌溉。
The roof’s slanted surfaces direct the water to its lowest point where it is drained and collected in a cistern. Subsequently it is used for cooling the building and watering the green areas.
▼从天花板可以看到可收集雨水的倾斜结构,the roof’s slanted surfaces can be seen from the interior
太阳能 | Solar Sea
几乎整个屋顶都覆盖着光伏板(用于供电)和太阳能板(用于供热),通过利用可持续的太阳能来最大程度地满足建筑的能源需求。
Almost the entire roof is covered with photovoltaics (for electricity) or solar panels (for thermal energy). They use the sun’s sustainable energy to cover the building’s demand to a maximum.
▼室内细部,interior detailed view
空中走廊 | Skywalk
公共的空中走廊环绕在屋顶四周,可通过步行或电梯到达。该走廊为参观者带来了壮观的城市视野,能够将国会大厦的圆顶、亚历山大广场上的电视塔以及南面的施普雷河岸景观尽收眼底,北面则可以望见Charité医院和柏林的主要车站。
The publicly accessible skywalk circles the entire roof and can be reached on foot or by elevator. It offers visitors spectacular views of Berlin’s skyline from the Reichstag’s cupola to the television tower at the Alexanderplatz. The Bundeskanzleramt (federal chancellery) and the Spreebogen are visible to the south. The Charité and Berlin’s main station can be seen north of the Futurium.
▼楼梯间,stairwell
能源储存 | Energy Storage
为了通过利用太阳能产生的热量和内部储热来使建筑运行,该项目采用了新型的混合能源储存系统。该系统能够通过其特有的密封层将相变材料提供的潜热与介质水结合起来,最终实现高出传统水箱八倍的能源储存量。
In order to make use of the sun’s thermal energy and the in-house energy gains for running the building a novel hybrid energy storage was employed. It combines the latent phase-changing material paraffin and the sensitive storage medium water through its patented macro-encapsulation and can thus achieve an eight times higher capacity as conventional water tanks.
▼场地平面图,site plan
▼地下一层平面图,lower floor plan
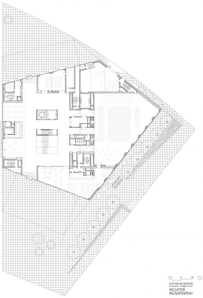
▼首层平面图,ground floor plan
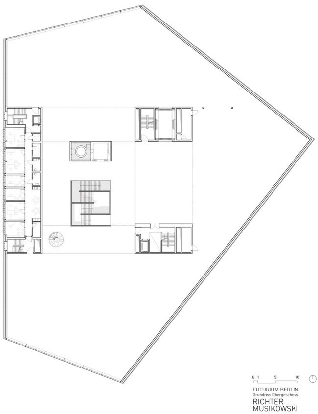
▼顶层平面图,upper floor plan
▼立面图,elevation
CLIENT: BUNDESANSTALT FÜR IMMOBILIENAUFGABENLOCATION: ALEXANDERUFER 2, BERLIN MITTE
AREA: CA. 8.000 QMARCHITECTURE: RICHTER MUSIKOWSKI
LANDSCAPING: JUCA LANDSCHAFTSARCHITEKTUR
DESIGN COMPETITION:2011-12
CONSOLIDATION COMPETITION:2012-13
PLANNING:2013-14
REALISATION:2015-17
PROJECT TEAM:CHRISTOPH RICHTER, JAN MUSIKOWSKI, SEBASTIAN HAUFE, ELKE SPARMANN, MARTINA HUBER, NELE GESSNER, DANIEL ECKERT, DOMENICO FOTI, YVO COSERIU, CHRISTINE DORN, ELISABETTA VITO, JOHANN SCHULZ-GREVE, PHILLIP ROHÉ
客服
消息
收藏
下载
最近
























