查看完整案例


收藏

下载
上海吴淞口国际邮轮码头一期工程于2010年建成,经过多年的发展,其业务量逐年大幅度提升,目前吴淞口国际邮轮码头已成为亚洲第一、世界第四大的邮轮码头,原有的一期建筑和港口既无法满足日益增多的邮轮靠泊要求,也无法满足日常巨大客流的使用要求。本项目后续工程由原有码头向两翼扩建而成,建成后能够同时停靠两艘15万GT和两艘22.5万GT级邮轮。
基地位于长江与吴淞江交汇处,东入东海。自明清以来就是中国东海的海防与江防要塞,如今成为国际邮轮客运的交通集散枢纽。根据对 2020年吴淞口国际邮轮码头的邮轮旅客吞吐量和邮轮靠泊艘次的预测,在原有两个泊位的基础上再新建 两个大型邮轮泊位,完成后三座客运楼总建筑面积达到近8万平方米,基本可以满足四船3.8万人次/日旅客的出入境需求。
在我们介入项目之前,水工平台和建筑结构柱位已确定,结构桩基已基本完成,水工平台宽度80m,基础结构柱网跨度14m*11m,对于一个国际邮轮母港的客运楼建筑来说原水工平台宽度和柱跨都过小。柱网,荷载和结构形式的限定对本项目的功能组织和空间建构提出了很大的挑战,试图在此约束条件下仍然提供未来游客一个完美的体验成为了设计最初的一个重要出发点。
原基础结构图及新建客运楼关系
一期客运楼以椭球型的东方之睛为形体概念,整体形体圆润饱满。考虑到原平台的局限性和功能空间布局的合理性,新建客运楼的平面为长条形,主体长约200米,宽约50米。整体效果保持长方形的平面空间基础上结合局部的三维曲面变化,通过下凹的形体将三栋建筑形体有序联系起来。无论从江侧还是岸侧看去,凹-凸-凹的连续建筑形态形成连续的波浪形天际线,如行云流水般,犹如在东方之睛两侧新生出腾飞的两翼。
整体形态以“海上画卷”作为意向,考虑到与300多米长的巨型邮轮的形体对比,我们采用整体式的形体设计,在完整简洁的大形体下通过表皮的弧线扭转形成流线型的建筑形态,造型整体时尚、时代感强,与原东方之睛的整体造型感相呼应,同时也避免了在邮轮巨大形体的对比下琐碎形体对建筑造型的弱化和压制。
建筑材料主要选用铝板和玻璃幕墙,整体简洁大气,并与原东方之睛的材料相呼应。
建筑主体的南立面(朝岸侧)和屋面玻璃幕墙和铝板表皮的结合,局部三维曲面包裹建筑主体,通过三角洞口大小的渐变形成立面山水画的“画卷”图案。
西南立面图
剖面图
建筑主体的出入口侧的立面和北(登船侧)立面主要采用玻璃幕墙,使得建筑整体视觉上轻盈现代,也给建筑室内的旅客提供了良好的观海视线。
结合朝向岸侧的“画卷”表皮,在二三层设置整个沿江面的中庭空间,使得游客在通过不同联检单位等候和检查空间之间能够获得一个空间感受和视觉高度上的释放,山水的表皮不仅在岸上能够远观,当南侧的光线穿过不同大小的孔洞,整个中庭空间也被洒满婆娑的光影,而透过底层一片开敞的玻璃幕墙,也能眺望到远处的湿地公园和城市景观,使得游客得到心理和身体上的放松。
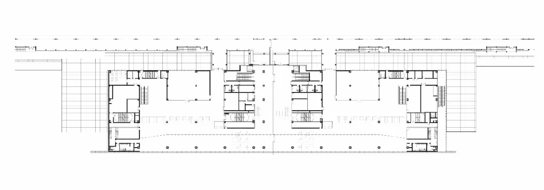
二层平面图
项目档案
项目名称:上海吴淞口国际邮轮母港客运楼
项目业主:上海吴淞口国际邮轮港发展有限公司
项目地点:上海市宝山区
建筑面积:5.54万平方米
设计时间:2015 -2016年
建成时间:2018年
建筑团队:曾群、吴敏、康月、曾毅、方尔青、陈磊、熊子超、杨洋、肖丽娜
结构团队:井泉、马昕
给排水团队:谢骏、黄志东
暖通团队:朱伟昌、刘松
电气团队:谢文黎、尤文捷
建筑摄影:邵峰
客服
消息
收藏
下载
最近



























