查看完整案例


收藏

下载

翻译
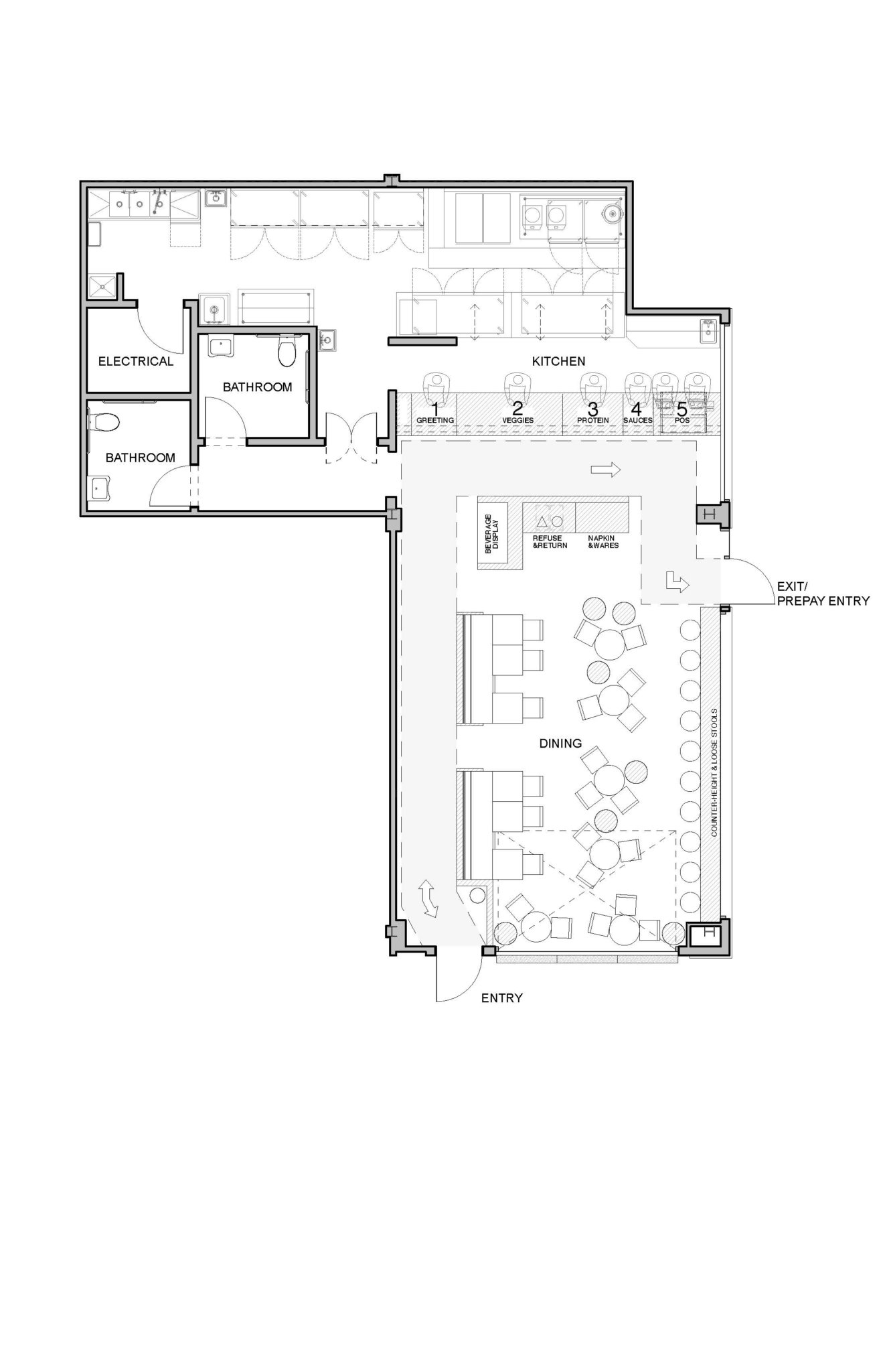
The design of Prima, a new fast casual concept from Michael Schlow, centers on the display of healthy and wholesome Italian offerings in a welcoming atmosphere that evokes the feeling of being served in an Italian home. Focusing on natural materials and traditional millwork detailing, the design highlights the cuisine, both in production and display, to deliver an overall cozy guest experience. The two large overhead doors can open up the entire building corner to the pedestrian-friendly streets for an al fresco dining experience in the warm seasons. The design provides an efficient operational flow for guests and staff and transforms a previously raw-steel aesthetic space into a fresh, warm, and inviting Italian environment.
Design: CORE architecture + design,
Principal: Allison Cooke
Design Team: Christopher Peli, Kristen Van Hise, Yitao Wang
General Contractor: Hospitality Construction Services, Inc
MEP Engineer: Caliber Design, Inc
Photography: Ron Ngiam
客服
消息
收藏
下载
最近













