查看完整案例


收藏

下载
在暨阳路这条老旧的街上,有这么一间店铺别具现代设计感,那就是And Sugar,在整条商店街中格外醒目,而来访的客人也络绎不绝。纯白色的外立面、圆弧形的门、镶着透亮的大块玻璃,仿佛主动招呼着每位路过的行人进去探索。
On the old street of Jiyang Road, there is such a shop with a modern design, that is, And Sugar, which is particularly eye-catching in the entire shopping street, and the visiting guests are also endless. The pure white façade, the arc-shaped door, and the translucent glass block seem to greet every pedestrian passing by to explore.
And Sugar是一家中式点心店,位于江阴市暨阳路218号,特色做包子,各种点心。围绕着手工天然的理念,关注生活的每个日常,并以此作为灵感融于他们的食物创作。
And Sugar is a Chinese dim sum shop located at No. 218, Jiyang Road, Jiangyin City. It features buns and a variety of snacks. Focusing on the concept of handmade nature, paying attention to every everyday life, and using it as a way to inspire their food creation.
印象里的中式点心店,无非是开在街边环境一般,甚至有些凌乱的的小窗口,阿姨快速地把点心递出来,付完钱就走人。想要美美的坐在店里拍照,几乎是不可能的。但进暨阳路的这家点心店,却与众不同。
The buns shop in the impression is nothing more than a small window in the street environment, and even a messy window. The aunt quickly handed out the buns and left the person after paying the money. It is almost impossible to take photos in a beautiful shop. But this buns shop in Jinyang Road is different.
主理人包女士曾说过“希望你们会为了我的菜包慕名而来”所以我们:“以最干净最直接的方式,小细节的呈现,体现出了整个店铺独有的气质。”
Ms. Bao once said, “I hope that you will come for my food.” So: “In the cleanest and most direct way, the presentation of small details reflects the unique temperament of the entire store.”
纯粹以售卖、展示点心为主。深藏在暨阳街道,和闹市毗邻却也可以被江阴的巷弄带出一些距离感,这样的距离感却刚刚好,它一直吸引着与其相似的一群人。
Purely for sale and display of snacks. Deeply hidden in the streets of Jiyang, and adjacent to the downtown area, but also can be brought to some sense of distance by the lanes of Jiangyin, this sense of distance is just right, it has always attracted a group of people similar.
在步履匆匆的现代快节奏生活中,慢下来到And Sugar,细细寻味你的慢生活,让你的舌头和内心都找到归处,生活的小美好或许就在这里发现,如果你也想寻味美好新生活,不妨亲自到And Sugar坐一坐吧。
In the fast-paced, modern, fast-paced life, slow down to And Sugar, savour your slow life, find your tongue and heart, and find the goodness of life here, if you want to find out For a good new life, feel free to sit down and take a seat at And Sugar.
▲一楼平面图
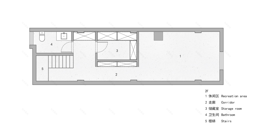
▲二楼平面图
▲设计手稿
▲施工过程
项目信息——
Project information——
项目名称 :And Sugar
Project Name : And Sugar
项目地点 :无锡江阴
Project Location :Wuxi Jiangyin
设计团队:精诚空间设计
Design team:JCD.INTERIOR DESIGN
主创设计 :李波
The main creative design :Li.
空间摄影 :ingallery
Space photography : ingallery
客服
消息
收藏
下载
最近























