查看完整案例


收藏

下载
众舍设计受邀为原创茶饮品牌·Teasptra木从久打造健康的茶饮空间;布置方案设计师将原本并不规则的立面打通三面,则另一面较开阔的区域作为操作区;空间表现上黑白灰与原木色体块加上三面落地玻璃,创造出引人驻足的静谧空间。
用餐区Dining area
就餐区域,以卡座为中心如同核心筒般环绕,黑色吧台钢板的运用加入了空间的硬朗感,配合木色的桌椅及落地隔音玻璃,通透且静谧。
▲卡座
▲黑色吧台
▲木色桌椅和落地窗
操作空间,Operating space
材质方面,白色人造石与原木色以及由后操作台延伸至顶面的不锈钢,吧台的设计则以简洁的线条引导来动线,让人不禁的沉浸在萃茶的氛围之中。
▲后操作台
▲干净整洁的吧台
▲精致的工具和器皿
外立面,Facade
平面图/分析图 Floor plan / analysis chart
▲平面图
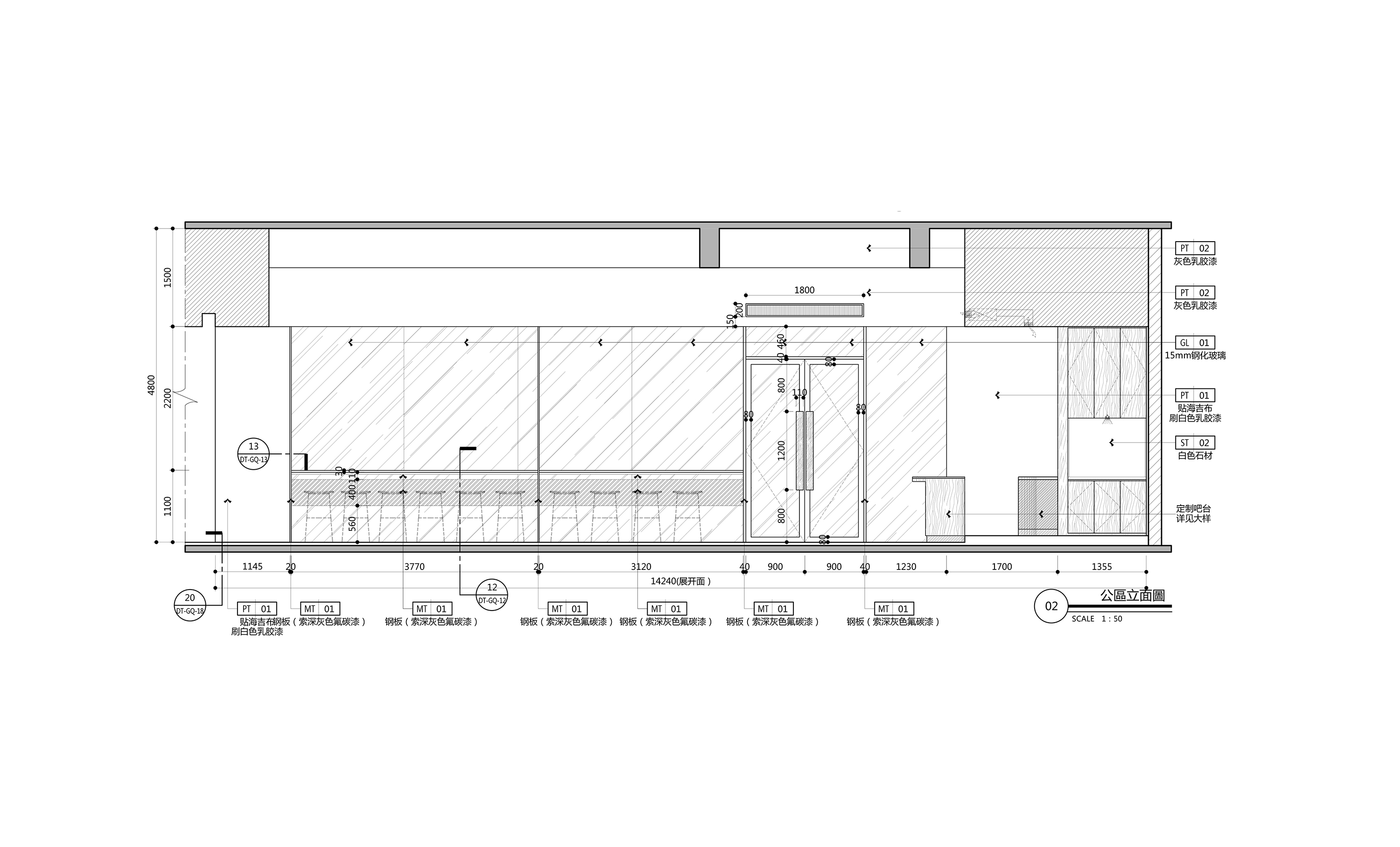
▲立面图
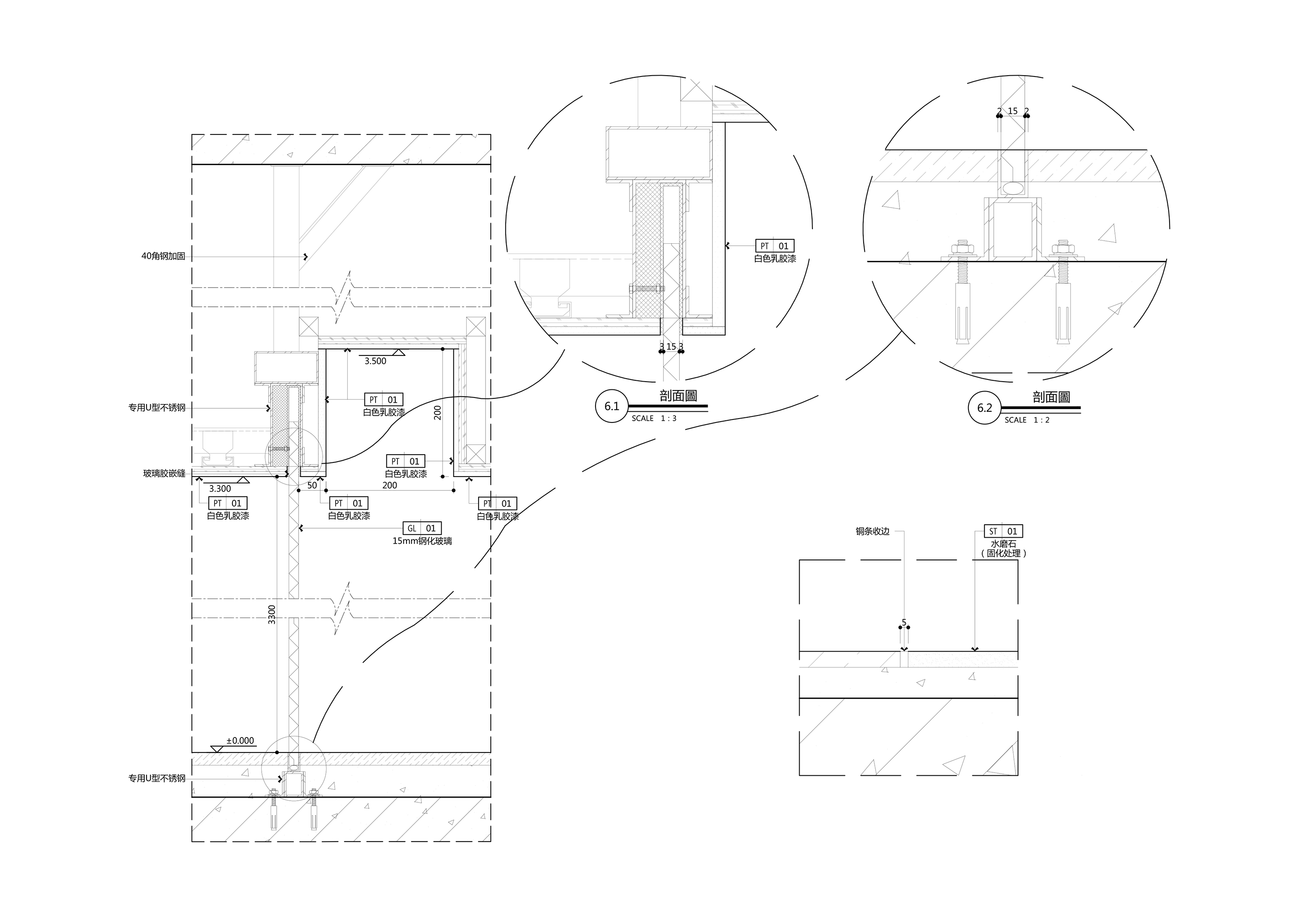
▲剖面图
▲分析图
项目信息——
项目名称:木从久·茶饮店
项目地点:武汉越秀星汇维港商业
完工时间:2017.06
设计公司:众舍空间设计
主要设计:王辉,戴奇伟
项目面积:78㎡
主要材料:乳胶漆、钢板、木纹、不锈钢等
摄影师:汪海波
客服
消息
收藏
下载
最近























