查看完整案例


收藏

下载
我们都感受过,生活中各种各样的压力。比如,丢了手机,遇到堵车,工作中面对他人的负面情绪,失业或家人生病等等。这些随时可能出现的日常压力使我们担惊受怕。而实际上,很多压力都来源于我们自己,有些人选择不健康的生活方式,坚持充满压力的个性,对自己要求苛刻,这些都是自己给自己设下的陷阱。
“宜刻生活”位于海淀区华熙LIVE写字楼。主营人希望把她打造成一个集健身塑形、舒缓解压和健康饮食为一体的休闲中心,宣扬健康、绿色、舒缓且具有活力的品牌形象,为当代的职场人提供一个可以放松身心、补充能量的地方。
▲采访调研
我们也通过对不同领域工作的女性进行采访,来了解她们对健身的看法。知道了她们中很多人都有过健身经验,随着年龄增加,大多数人也都因为没有时间,不能继续,同时,因为生活和工作的压力,可以自由安排的时间越来越少。
在理解了主营人诉求,市场现状、趋势和消费人群的需求之后,我们提出了“BE FREE”这样一个概念来代表“宜刻生活”所呈现的一种生活状态。“BE FREE”是一种自在的状态,不被外界的事物和内心的执念所束缚,让身心回归到自然状态,最后达成健康、绿色、舒缓并且具有活力的理想生活。
以“BE FREE”这个概念为中心,设计师们开始品牌的LOGO创作。对于品牌标识的设计,我们希望能够把品牌的行业属性、定位和理念融合到一起。为了避免复杂和模糊给人带来的紧张和焦虑,整体标识选择比较简单直接的形式语言来呈现设计概念。
英文名称的造型上,从瑜伽的肢体动作获取灵感,把肢体动作转化成字体表现,引起观者对品牌行业属性的想象。
中文名称的形态上,从字意本身为起点,提取出“时间”这个概念,和中文字的造型结构相结合,让抽象的文字含义更直接地被理解。
色彩上,选择中性的绿色,能够让人心情平静,也有助于我们传递自然、减压的概念。
辅助图形在形式上延续了LOGO当中的英文字形,根据舒缓型健身项目–瑜伽的基础动作,再创作。
室内空间的设计,在延续品牌调性基础上,以让人感到放松且适当的力量感为目标,为的是让身处其中的人即感到舒适又具有活力。
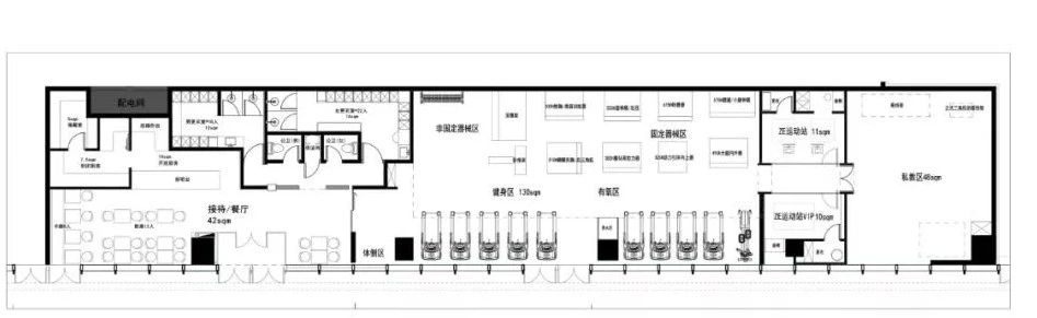
▲平面图
空间布局上,区域划分明朗,在分隔处使用玻璃材质,让整个空间通透感强,一目了然。
▲餐厅效果图
色调的选择,我们对“浅灰色”委以重任,它被运用到多处墙面、地砖、地胶,甚至一些金属材质的表面,降低了空间色彩的对比度,增强了视觉中的柔和感,让人感到平静。
▲健身区效果图
材质的安排,为了传达品牌所倡导的自然、健康、绿色这些概念,空间中的部分墙面采用了木材质和绿色植物。
▲户外广场
▲餐厅区
▲门厅
▲健身器械区
接着如何表现空间力量感,让人有运动健身的渴望呢?
设计师们想到了“L”型,这个形式具有很强的速度感、力量感,把它用在空间中的一些造型上、灯具形式上,整体干净利落。
▲操房区
▲ZE科技健身区
▲更衣间
▲夜间灯光效果
项目信息——
项目名称:宜刻生活
设计方:观町创新研究所
项目设计 & 完成年份:2019.6~2019.8
设计总监:石英喆
创意总监:李翔
空间主创:贾小亮
空间设计师:孙琳琳
品牌主创:王鹰翘
项目地址:北京市海淀区五棵松华熙写字楼
建筑面积:400平米
摄影:袁启峰
客服
消息
收藏
下载
最近






































