查看完整案例


收藏

下载

翻译
The private client for Villa Old Oaks convoked a proper architectural competition for five invited offices,the idea being to choose an architect for his new residence. The residence is situated in a new neighbourhood of six larger villas.The unique feature of the site is a splendid view of a stand of oak trees that are over a hundred years old.The terrain slopes down towards these trees. To guarantee that most of the major spaces will have access to this view,the house is organised in stepped levels following the terrain. The outline of the house keeps to the shape of the plot of land,minus four metres all around, the minimum distance Slovenian law calls for vis-à-vis one’s neighbours.
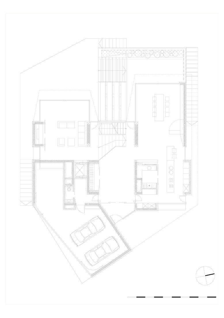
The heart of the house is an external covered courtyard. Main spaces such as the entrance lobby/staircase, the children’s playroom, dining room,living room, bedroom and work areas all overlook this space. These rooms, plus the wellness area with its small pool, also have a view of the park.
The staircase roof is glazed and the courtyard roof is part-glass, part-wood and has views of the sky and the treetops,
thus creating a strong link between inside and outside. Structurally, we wanted to achieve a column-less ground floor.
photography by © Tomaž Gregoric
The ceiling of the dining and living area is slung from a Vierendeel beam hidden in the walls of the floors above.The glass construction and frames are also handled with minimum supports. Other programs inside the house follow the client’s brief,which was very precise.
He has an interesting lifestyle, what with working partly from home and having many different hobbies.Security and fire escape issues were also important, as was the clear division of private and public areas of the house and those where guests are allowed to wear shoes or where one receives the postman. The house also had to be “intelligent”.
Various functions such as air conditioning, security and sun-responsive external shade can be controlled by software,
and different ambiences can be created using lights and music.
photography by © Tomaž Gregoric
Sustainable issues
The house is a private residence positioned in the neighbourhood of 6 larger villas. The quality of the site is a beautiful view to the existing common park with oaks over 100 years old. Therefore the aim of the building was to open view from all main spaces of the house towards these trees.
The building is constructed in half-floors. In the heart of the building there is a stepped courtyard, where all the main spaces open. The building was to provide ideal daylight conditions combined with efficient indoor and outdoor climate concept.
In Slovenia there are extreme climate conditions; with hot summer, when temperatures rise up to 35C and cold winter when they drop below –10C or more. In addition there is rain in spring and autumn. The client required an environmentally sustainable concept that would conserve energy and natural resources. Also he required an external space, that would be usable both, in sunny and in rainy days.
photography by © Tomaž Gregoric
The spaces of the house are therefore organised around external atrium. The combination of the atrium, the roof of the atrium and the house and existing trees around the house create a sustainable concept such as: The half – transparent and half – non transparent ventilated membrane roof of the external atrium creates and airy rain-proof external space. In combination with dense greenery of surrounding trees atrium is cool in summer and provides rain protection.
One can enjoy outdoor intimacy, since atrium is protected also against views of the neighbours both, in sunny and in rainy days. In winter, when trees are leaf-less sun penetrates through transparent roof and atrium accumulates the energy and passes it inside the house. The sun also penetrates through glazed roof of the interior.In addition the facades are combined with pivoting wooden louvers that provide protection against insulation and control ingress of day-light. On hot days the louver elements are computer operated to follow the course of the sun. It is also possible to darken the working rooms and bedrooms completely.
The concept of atrium, semi-glazed roof and louvers allows major savings to be made in the amount of eletrical energy needed for lightning, cooling and heating. In addition, direct insolation via the facades and roof results in a high passive thermal yield during the heating period. In summer in contrast effective sunshading helps to minimize cooling energy needs.
photography by © Tomaž Gregoric
Project Info :
Architects : OFIS arhitekti
Project Year : 2003
Project Area : 800.0 sqm
Budget : 1M Euro (US $1,32M)
Photographs : Tomaz Gregoric
Project Location : Ljubljana, Slovenia
Structural Engineering : Valide d. o. o
Project Leaders : Rok Oman & Špela Videčnik
Electrical Engineering : Winky d. o. o, Energomont d. o. o.
Mechanical Engineering : Oves d. o. o., Vavtar Engineering d. o. o.
Design Team : Rok Oman, Špela Videčnik, Neža Oman, Florian Frey, Vanja Fink, Špela Uršič
photography by © Tomaž Gregoric
photography by © Tomaž Gregoric
photography by © Tomaž Gregoric
photography by © Tomaž Gregoric
photography by © Tomaž Gregoric
photography by © Tomaž Gregoric
photography by © Tomaž Gregoric
photography by © Tomaž Gregoric
photography by © Tomaž Gregoric
photography by © Tomaž Gregoric
photography by © Tomaž Gregoric
photography by © Tomaž Gregoric
site plan
1st floor plan
2nd floor plan
plan
section
section
elevation
客服
消息
收藏
下载
最近





















