查看完整案例


收藏

下载
英文名称:Slovenia Cross Envelope Villa
位置:斯洛文尼亚
设计公司:OFIS Arhitekti
这座别墅位于斯洛文尼亚卢布尔雅那市中心的Mirje Suburbs。别墅所在的街道垂直于古罗马墙,并延伸至Plecnik设计的石头金字塔(作为他沿城墙进行的改建项目的一部分)下方的一条步行通道。别墅的新体量被嵌入街边既有的挡土墙内。通过将墙壁合并为新建筑的一部分,新的住宅保留了其在街道上与金字塔轴向对齐的原有位置。别墅的外部结构由一个立方体量和穿孔的金属外壳组成。体量中的一些部分被挖空,以创造空间形如口袋的空间,带来沿着屋顶向下的锥形台阶、位于入口旁边的空地以及为住宅起居空间准备的带有露台的玻璃中庭。建筑两侧皆利用了带孔的材料,旨在对这一位于历史城区的传统别墅的材质进行抽象化的阐释。粗糙的古典主义立面与双层的穿孔板材相结合;建筑师的任务是通过建立深度上的错觉来实现这种纹理,使建筑在呈现出轻盈感的同时,增强浅米色色调的光影效果。这种立体的纹理创造出动态的抽象感,并将整个建筑体量包裹于内。交叉的十字是一种兼具功能性和图形性的存在。十字结构为板材的框架带来支撑,同时创造出与旧时城市别墅的立面装饰相似的特征。
斯洛文尼亚十字信封别墅外部实景图
斯洛文尼亚十字信封别墅外部夜景实景图
斯洛文尼亚十字信封别墅内部实景图
斯洛文尼亚十字信封别墅平面图
斯洛文尼亚十字信封别墅立面图
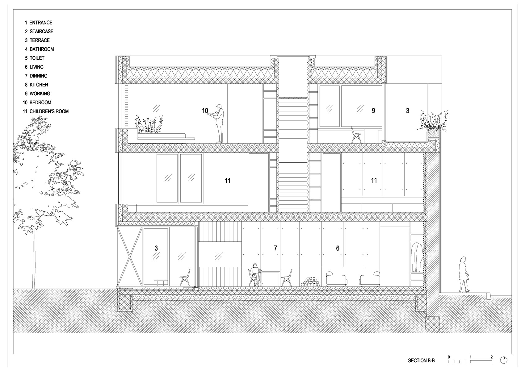
斯洛文尼亚十字信封别墅剖面图
斯洛文尼亚十字信封别墅剖面和平面图
客服
消息
收藏
下载
最近



















































