查看完整案例

收藏

下载

翻译
Tipología:Rehabilitación
Fecha:2017
Ciudad:Sao Paulo
País:Brasil
Fotógrafo:Nelson Kon
Fruto de la colaboración entre los brasileños Paulo Mendes da Rocha y MMBB Arquitetos, la intervención transforma el edificio de los antiguos almacenes Mesbla, situado en el centro de São Paulo, en un complejo que combina programas educativos, artísticos, deportivos, de ocio y salud, supervisado por la institución SESC.
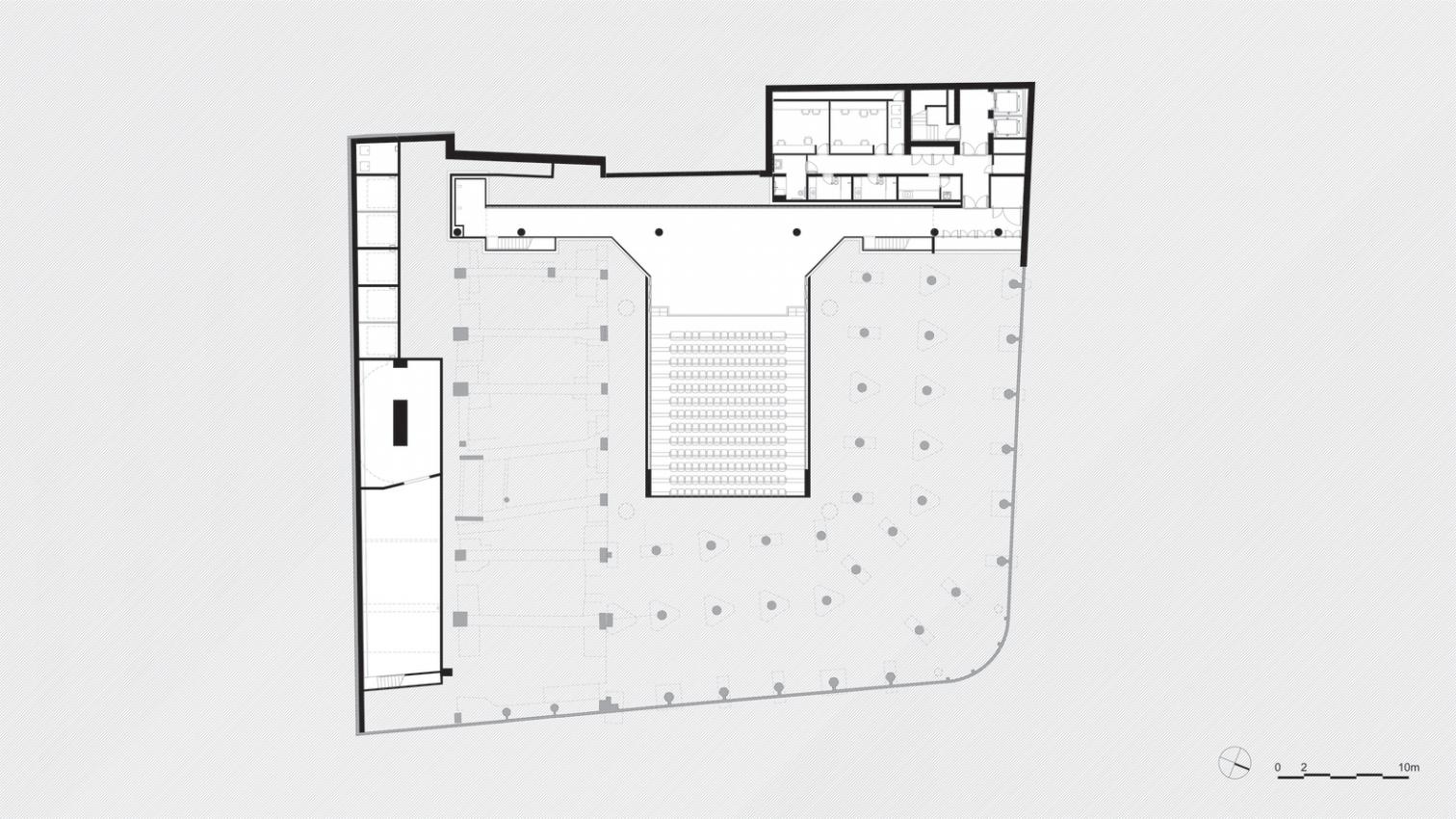
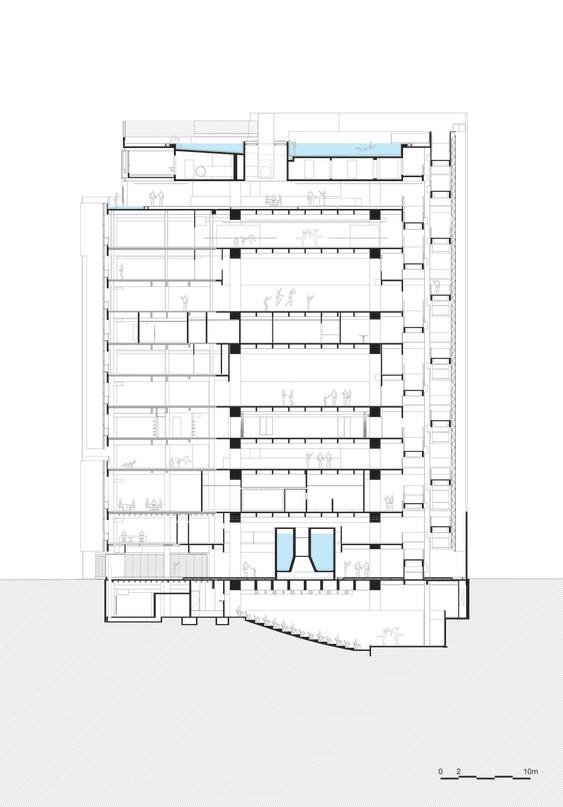
La antigua edificación se adapta a los nuevos usos con una demolición selectiva de partes específicas y la construcción de una estructura nueva y autónoma. Esta se apoya en cuatro pilares principales y configura un vacío central en torno al cual están organizados una serie de amplios vestíbulos, así como el solárium y la piscina de la azotea que corona el conjunto.
Bajando ligeramente su nivel, el antiguo garaje subterráneo está adaptado para acoger una cafetería y un teatro. La circulación vertical cuenta con una secuencia de rampas a lo largo de las cuales están dispuestos espacios abiertos al entorno, que no están cerrados con fachadas. Para evitar la monótona superposición de pisos simples se alternan niveles de doble altura. La infraestructura técnica y mecánica está concentrada en un volumen anexo que actúa como torre de servicio aislada, construida sobre una propiedad contigua que había sido abandonada.
客服
消息
收藏
下载
最近
















