查看完整案例


收藏

下载
在未来主义风靡的背景下,美学功能、场景业态、设计语境、在地性表达……多重因素驱动室内设计的更迭。
站在设计的前沿,设计师在成都新都 123 亩项目公寓中运用不同材质与色彩营造出另一个自由维度的精神世界。
01用热爱定义自我
Define yourself with love
本案位于成都新都区的一座公寓,上下两层空间室内面积约为 80 平米。屋主是一位年轻的音乐创作者,对摇滚乐有着痴迷的热情。为了同时满足她对工作室与个性的追求,设计师通过功能区的合理布局,精心完善所有需求,来去互动之间将个性化艺术与专业办公环境巧妙融合,重新定义舒适、趣味、真正合适自己的空间。
初入音乐办公室,一定会被其靓丽的色彩冲击视觉感官,大脑跟随着情绪转换而激起心理通感,比起办公室,或许它更像一个玩味的打卡景点。
办公区域以中间承重柱向四周扩散,“田”字动线串连整个空间,既满足了个体办公的舒适性,又能遵循自由社交属性。门口的互动式音乐装置让功能环境多了时尚科技气息。
作为原创音乐的主理人,一楼为其设有专业的直播区域,放置了各种直播设备与架子鼓等乐器,背景墙阵列式地摆放了屋主的录制唱片,方便其在直播时共享与日常的播放练习。
02 将态度融入生活 Integrate attitude into life
水吧区兼备轻食与娱乐功能,后方的吧台配置有咖啡机与各类酒水,屋主可以与好友在此小酌,超长吧桌足够容纳各种桌游,节奏氛围灯增添了放松活跃的娱乐氛围。
楼梯处根据建筑造型,开辟出一块小型洽谈区,趣味造型的软装家具与悬浮楼梯赋予空间年轻时尚感,球体、柱体和几何方块的活用,丰富了整体空间的层次感与紧凑氛围。
03 为心灵造就栖所 Make a habitat for the soul
二楼作为屋主的私人空间,设有独立的创作编曲室,延续了公共空间的潮流元素,弧形的置物架上摆放各种编曲设备及个人的收藏手办。
楼梯的拐角处是屋主的私人会客区,S 型单人沙发坐感舒适,宝蓝色与环境色形成反差,活跃了整体空间氛围。会客区的后方放置有懒人沙发,长毛地毯增添了慵懒氛围,是屋主在创作间隙的专属充电区。
04 方寸皆为艺术 Every inch is art
“方寸皆为艺术”的设计理念在这里得到彻底贯彻。地毯、家具、饰品等多元化要素的创意组合无形中消释日常工作压力,同时也对人性化的日常行为习惯需求进行考量,深度挖掘人与场所的内在和谐关系。
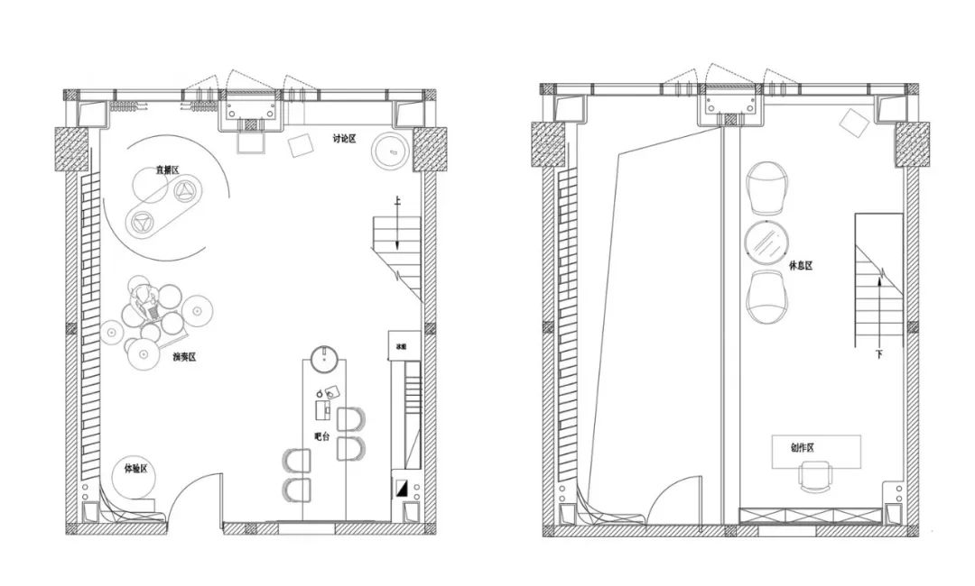
/ 户型平面图 /
SHANGHAI DESIGN
项目名称:成都新都 123 亩项目公寓
业主单位:旭辉地产华西区域
业主团队:艾毓 陈煜 魏雪东
软装设计单位:上海申城建筑设计有限公司
创意总监:张艳玲
软装团队:朱法强 邹昊 刘简 王梦宇
摄影:一千度
完工时间:2022.3
项目地址:成都市新都区旭辉广场
— THE END —
版权声明 | 本文为申城设计所有,欢迎转发。本公司享有最终解释权。
客服
消息
收藏
下载
最近




















