查看完整案例


收藏

下载
麓谷芯·旭辉铂宸府——低密舒适社区——
序言
梅溪湖景花满溪,岳麓水岸朝烟起......
回溯与自然的平衡,湘江、梅溪湖、岳麓山是长沙这座城市的灵魂居栖。在这山色湖光之中,房子不仅仅是一处居所,更是湘江人对生活的一份礼遇,可以延续城市的温情。
01【· 山色湖光之中 · 】
——项目区位——
△项目鸟瞰实景
△项目区位图
长沙·旭辉铂宸府项目位于长沙市岳麓片区,毗邻岳麓副中心;属于高铁西城规划范围内,距离长沙高铁西站 9 公里,距梅溪湖约 2.5 公里,紧邻地铁 6 号线 800 米(在建中),地理位置优越,便于接收两区配套资源辐射。周边三公里内有学校,医院,商业区等配套建设,且紧邻梅溪湖,象鼻窝森林公园等国家级公园,旅游资源和商业资源优越,交通便利,环境宜人。
02【· 自然与城市相融 · 】
——规划与理念——
△项目鸟瞰效果图
一江一湖一山是长沙独有的城市灵秀,本案基于 2.0 容积率、40%绿地率的天然优势,极大的提升了产品的想象空间。我们意图通过打造多元化的开放空间、品质园林和归家动线的营造,塑造一个都市山水的生态社区。
△示范区鸟瞰实景
规划布局以“两轴两带两环四心”的设计理念,打造全龄化立体式景观互动场景。以超大中庭花园、组团式主题景观、中央水景为序列,建筑巧妙串联,空间通透开放,形成了园区内部自身的视觉通廊。保证每一楼栋都拥有绝佳的观景角度,将品质渗透入项目的每一方面,城市与自然在此交织融合。
03 【·微笑体验式全景社区·】——示范区营造——
微笑是有力量的,它已成为一个符号,带着人间烟火,藏匿在归家路途中,活在日常街区里,浮现在脸上,印入到心里......
旭辉“铂宸府”作为旭辉 S 系产品,在不断的磨练中已形成个性的建筑语言,与时代共鸣,传达着对美好生活的新体验。项目依托大梅溪湖自然美学,尊重原始地貌特征,结合场地高差设计出时尚现代的“STREET MALL”,营造商业与山地景观结合的购物新体验。将单一的商业体验提升到场域激活,多维度升级社区美好生活。
△园区入口
实景
建筑形体利用弧形元素为母体呼应“微笑生活”哲学,结合场地高差,沿城市方向形成韵律变化,让建筑形体与场地环境形成富有音乐性的“C 大调”构图关系,打造独特的城市印记。
△SMILE 商业街区实景
沿街商业依托体验式 BLOCK 商业街区设计,植入美好生活场景,引发共情力。将“微笑”IP 个性特色的商业元素融入其中,全程以“微笑生活”作为设计主题,从微笑符号中提取的弧形元素贯穿整个设计过程。亲切动人的弧形线条打破了直角的生硬,赋予了城市与建筑更多的动感与活力,试图让“微笑”渗透到生活的每一处细节。无论是消费者还是商家店主,都能感受轻松与快乐的休闲氛围。
△微笑全景社区分析
在设计上以人的需求出发,将“微笑”城市符号变身升级为构筑场所记忆的活动载体,使得场地与全龄段人群都产生情感的共鸣。
△归家大堂亲切动人的弧形线条,让“微笑”渗透到生活
△仪式社区入口
△每一重节点都以“微笑”迎接你
04【·精工细作 匠心营造·】
——材料与品质——
△建筑檐口细节
香槟金铝板挑檐与葡萄牙米黄石材勾缝对应,使得每一处线条都显现出建筑肌理独特的秩序感。建筑入口以“微笑”弧线层层递进,漫反射灯带的细节处理让弧线更具层次感,随着灯光的渐变,仿佛建筑也有了均匀呼吸。
△玻璃幕墙与自然环境和谐共融。落日余晖与蓝灰色交相辉映,环境的平和与沉稳的建筑烘托出乐观积极、泰然处之的生活哲学,使建筑序列与生活密切结合,是为建筑语言的一种化境。
△精工细作的材质细节
以葡萄牙米黄为主要基调的外墙面搭配金色的微笑曲线,以虚实对比的设计手法彰显出建筑的内敛和大气。精致的材料质感和严谨的分缝工艺,在时尚中更彰显出现代整洁细节。
[结语]
THE END
设计来源于生活,与城市的发展相辅相成。建筑师依托长沙“一江一湖一山”的自然美为基调,在 SMILE 设计的叙事笔法下,人与建筑、自然,和谐共生。自然之上,不负美好。进而衍生意境美,以契合当代住宅回归自然本质和人文精神的诉求,为业主搭建和自然生活沟通的精神桥梁,让空间美学与建筑精神内涵再一次融合。
[技术图纸]
TECHNICAL DRAWINGS
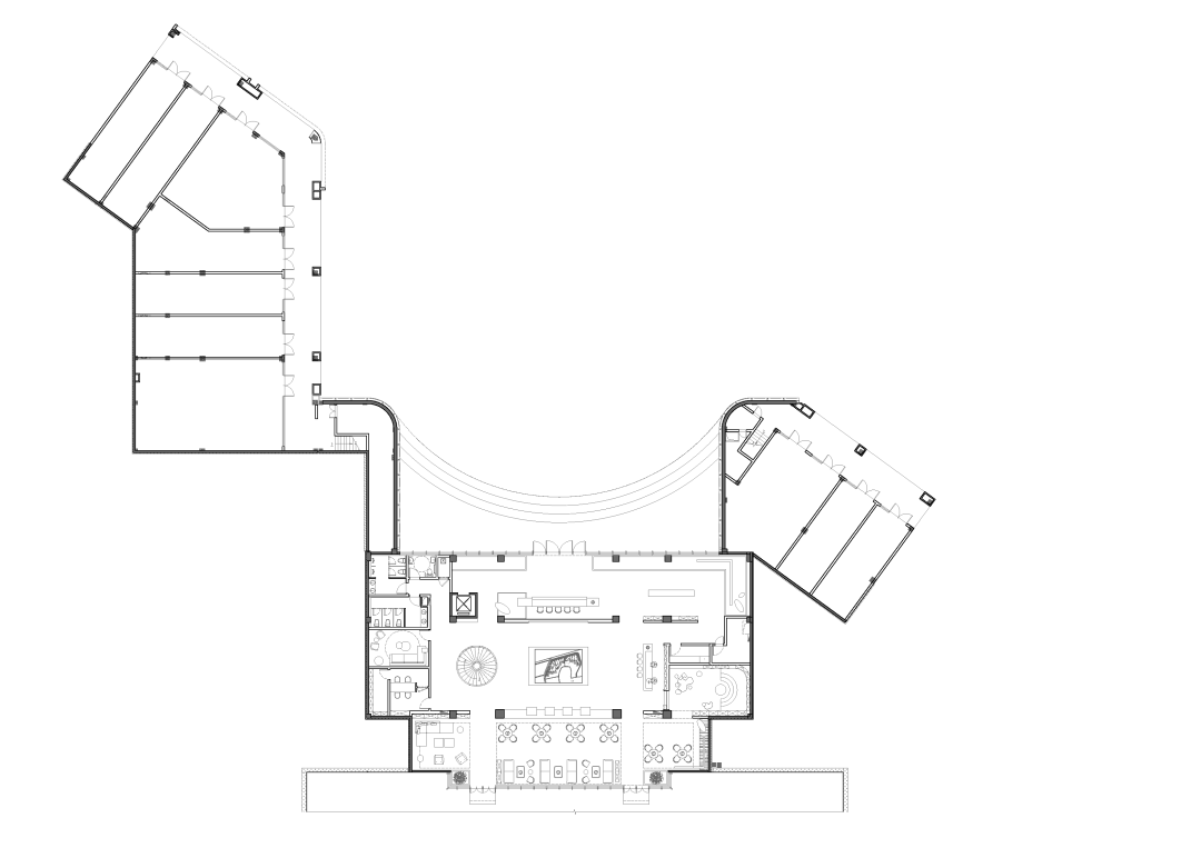
△售楼部一层平面图
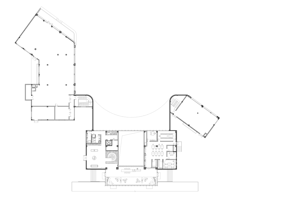
△售楼部二层平面图
项目信息
项目名称:长沙·旭辉铂宸府项目
项目地址:湖南省长沙市岳麓区西三环与山杏路交汇处西南角
业主单位:旭辉集团湖南区域事业部
业主团队:李智武 宋锴
方案设计单位:上海申城建筑设计有限公司
方案团队:蒋盼 魏疆 谭娟 郑伟强 高强 张莉 王卜雷 吴尚谦 李卓翰 吴怀楠
施工图单位:成都基准方中建筑设计有限公司长沙分公司
建设面积:329554.16㎡
摄影:山兮建筑空间摄影
设计时间:2021.4-2021.9
完工时间:2021.9
—
THEEND
—
版权声明 | 本文为申城设计所有,欢迎转发。本公司享有最终解释权。
客服
消息
收藏
下载
最近



















