查看完整案例


收藏

下载
大自然的每一个领域都是美妙绝伦的。——亚里士多德
项目位于千年文化名城,亦是巴渝文化的发祥之地——重庆,这里人杰地灵,人文历史积淀深厚,民间文艺源远流长,是民族文化宝库中璀璨的瑰宝。
色彩分析
设计结合当地历史和文化元素来打造空间文化感,以传统文化为设计主题贯穿整体空间,传达东方意境格调。通过现代空间的艺术手法及自然景观的融入,使整体建筑于自然之境中展示出恢弘大气的独特气质和东方韵味,体现出一种雅致悠然,返璞归真的生活方式。
材质分析
01客厅
LIVING ROOM
85㎡户型整体以清新雅韵的风格呈现,根植于理想主义与艺术美学,宽大落地窗和植物配合,引导自然与生活相互融合。方正的线条勾勒出简洁的界面,背景墙的壁饰以抽象的语境与大块的留白烘托出东方的诗意美学。
设计师认为,住宅本质的需求是安全与自由的舒适居住。自由不仅是室内与室外的自由沟通,更是空间格局的自由流动,以及陈设搭配的自由。因此,茶几上看似随意摆放着精巧麻将,绿意盎然的苔藓与富有肌理的盖毯为空间注入一丝活力与温度,使住宅更加贴近生活。
02餐厅
DINING ROOM
餐厅的颜色从自然、生态中提取,用餐区临镜而设,餐桌的绿植与镜子相互交织产生的混合空间,在有限的空间中使绿意无限延伸,呈现出一种虚幻的镜像美感。
03主卧
MASTER BEDROOM
主卧以自然、柔软、通透为基调,大面的白墙构成简洁清雅的日常,素色的格栅与绿植营造出朴素的东方意蕴,床品多元化的装饰与富有层次的肌理,为空间增添一抹意趣,使睡眠成为富有诗意的享受。
04次卧
SECONDARY BEDROOM
次卧低调沉稳,暖咖的点缀赋予空间更深层的内涵,吊灯形同玉珠,清雅灵动,高级灰色的厚重床品增添了亲和温润的整体氛围。
05 儿童房 CHILDREN ROOM
儿童房是一方童趣的探险天地,艺术的润色赋予了空间新的可塑性,大自然的生命力在这里得以延伸。家,承载的不仅是一种生活方式,更是心灵的安放之所。自如的归心之处,以自然为引,栖身于巴渝山水,用东方语调谱写一幅诗意的现代生活。
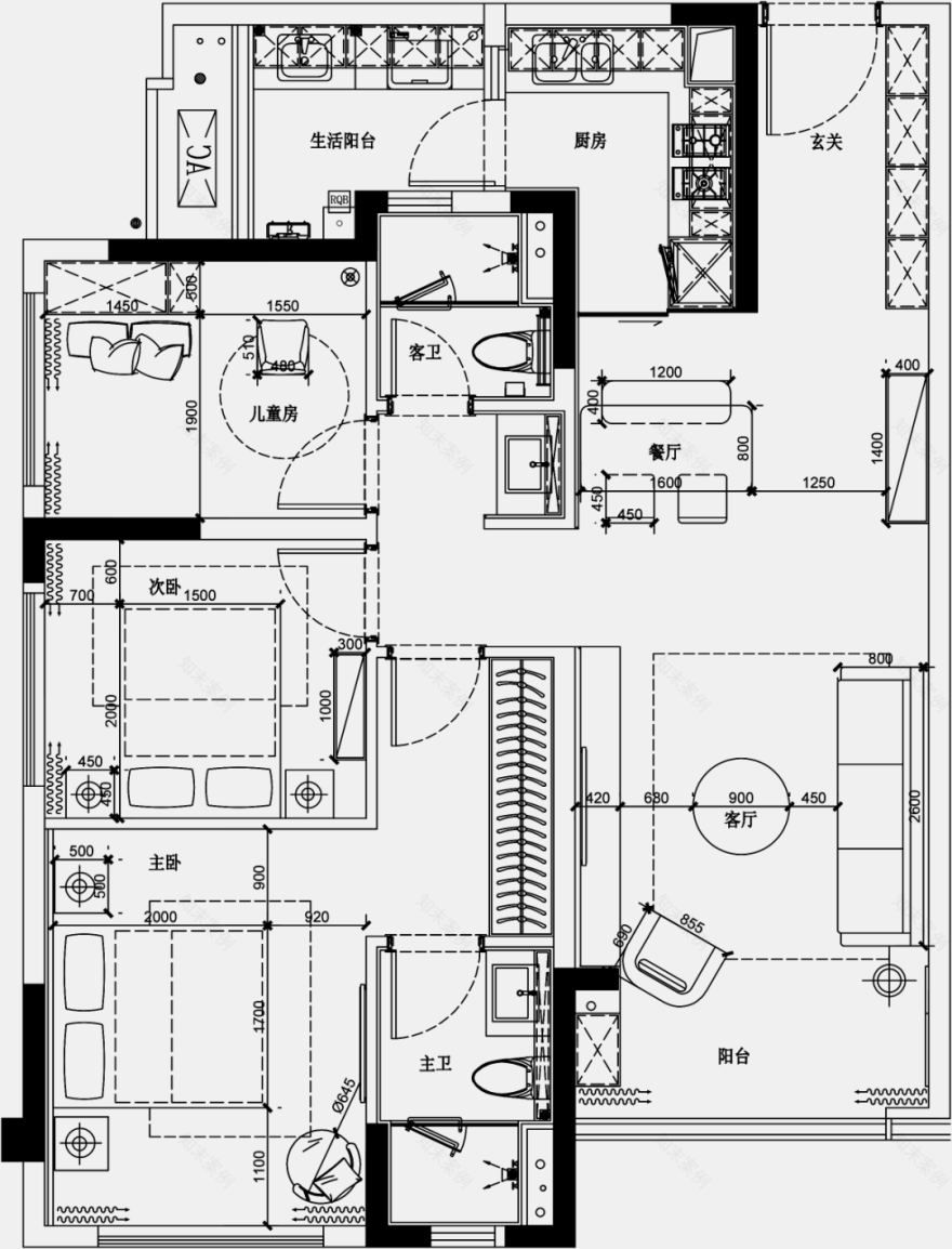
户型平面图 |
SHANGHAI DESIGN
项目名称:重庆印江州样板间
项目面积:99㎡
项目业主:重庆盛资房地产开发有限公司
业主管理团队:旭辉集团
设计机构:上海申城建筑设计有限公司
创意总监:张艳玲 MIKA
软装团队:朱法强、邹昊、刘简、王梦宇
硬装团队:王爽、汪文文
—
THE END
—
版权声明 | 本文为申城设计所有,欢迎转发。本公司享有最终解释权。
客服
消息
收藏
下载
最近























