查看完整案例


收藏

下载
我们身处容纳着多元文化和价值观的新世代,怎样的居所能承载起不同人群理想中的生活?我们以 80 后五口之家&90 后新生代家庭为定位,通过将文化、艺术、质感共融于设计中,呈现不受空间及风格所限的“诗意地栖居”。
惠州是客家人的重要聚居地和集散地之一,旅居海外华人华侨、港澳台同胞居客家四州之首,被称为“客家侨都”。传统与包容在这座城市中共存,一体两面。
本案的设计构想将海派文化融入空间设计的创意之中,在传统与摩登的相互解构下,凸显惠州文化的包容性与多元性。
不滞于物,不困于心,虚极静笃,和光同尘。
于黑白净调中探寻生活的真谛与惬意,大理石、皮具、布艺、做旧金属……各种材质的碰撞,让文化与空间更好交融。
东方的美是一种内敛而秩序的生活美学,设计师通过细节的表达将雅致与韵律注入到空间之中。餐厅不仅是一家 5 口的用餐场所,也可作为会客、娱乐的活动区域,展示了男主钟爱的传统文化与品酒喜好。
主卧摒弃了繁复的色彩,以素雅的灰色为映衬,沉稳的翠绿与经典的棕咖彰显出主人的高雅品位,自然之道被根植于内心与空间之中。
材质的碰撞与深浅色彩的对比增加了更多的空间品质细节,宁静优雅的蕨类植物在角落肆意延伸,增添了慵懒的氛围,放缓了时间,在这里,看一本书,品一盅酒都是惬意的享受。
次卧作为父母的休憩场所,美感与宜居兼备,柔软的寝具展现出亲和放松的卧室氛围,湖蓝与姜黄的浓厚色调在金属细节的点缀下尽显矜贵,奢而不靡。
太空主题的男孩房构筑了一个充满冒险与幻想的成长空间,太空舱壁饰、望远镜、宇航员摆件呈现出孩童天马行空的想象与无限的求知欲望。
潮玩代表的是一种生活态度。随着年轻世代的崛起,潮玩逐渐成为大众耳熟能详的艺术语言。
它天马行空、个性张扬,又妙趣横生、意味丰富,为空间艺术催发了全新的审美体验,也为循环往复的日常注入了饱满的活力。
以银灰色作为空间的主色,与皮革、金属等材料搭配,打造具有现代风尚的室内空间。橙蓝亦是浓烈的碰撞,跳跃如橙是活泼,静雅如蓝是沉稳。
动与静相互对立又相互衬托,在客厅形成了极富感染性的张力,使整个空间更具年轻活力。
功能空间的划分始终遵循衔接与开放的原则。卡座式的双面沙发增强了空间的利用,客厅与餐厅被衔接在一起,隔而不断,沟通相连,水蓝色的餐椅是流动的光影,并借由潮玩手办打破次元壁,实现了实与虚、此岸与彼岸的交流。
主卧大面积的蓝色壁纸,静若流空之宁远,深浅交织的水墨,最终汇成一滴掉落的水珠,渲染出悠闲放松的卧室氛围。
次卧被打造成兼备多种功能的无限制空间,既可作为放松娱乐的电竞室,也可成为父母小住时的卧室。
儿童房内的动画音响、乐器、音乐立体书籍代表了孩童时代天真烂漫的幻想与对音乐世界的憧憬,稚嫩的理想在此启航。
外有世界之大,任性驰骋;内有港湾之馨,安然休憩。而这,大抵是家对于每一个人真正的意义。
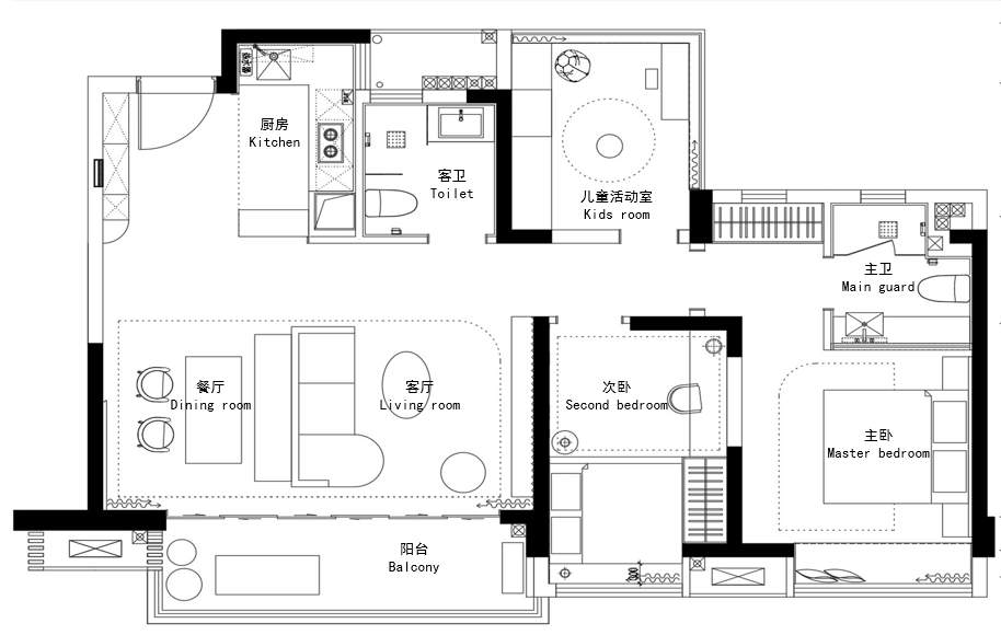
/惠州静安府 119㎡户型平面图/
/惠州静安府 96㎡户型平面图/
SHANGHAI DESIGN
■
项目名称:惠州静安府样板间
■
项目面积:96㎡/119㎡
■
项目业主:旭辉集团深圳区域/惠州兴能置业有限公司
■
业主管理团队:旭辉集团深圳区域
■
设计机构:上海申城建筑设计有限公司
■
项目摄影:一千度
— THE END —
版权声明|本文为申城设计所有,欢迎转发。本公司享有最终解释权。
客服
消息
收藏
下载
最近







































