查看完整案例


收藏

下载
我们进入了一个全新的生活方式时代,空间的意义不再是简单的满足功能,我们更希望追求物质、情感和精神的完美统一,为生活赋能。
宣城宛陵大观示范区是融汇文化、艺术、生活时尚、现代科技于一体的新型邻里中心,力求通过话题性、体验性、跨界性的空间建构,激发人们与社区的链接,创造美好的生活方式。
理想的场所,是每一种想法都能被实现的可能。在满足配套功能的同时,能创造一种微笑生活、诗意畅想的体验。
■遇见未来 滨湖生活
宛陵湖畔,北望“相看两不厌”的敬亭山,与“蓬莱文章建安骨”的谢眺楼交相呼应,宛陵大观社区在此应运而生。
邻里中心位于社区门户地块,本次设计涵盖了归家接待大堂、艺术大舞台、空中乐园、社区服务 CLUB、养老健康馆、社区商业等多个业态,力求呈现完整复合的邻里中心体验场景。
定位于整个社区的公共活动中心,建筑师希望其不仅与自然紧密沟通,同时能满足社群活动的开展。基于这一出发点,设计师提出了“星船”的设计构思,建筑采用了消隐、借景的设计策略,形态顺应地形,形成了多样的户外灰空间。造型设计上提取湖水的流线形态,融合“星空”的浪漫元素,带来飘逸灵动的视觉体验。
■Smile 美学立面 超越时间的极致时尚
微笑大堂 极致时尚
延用“微笑大堂“IP 属性,极致的形态构成空间突破了惯性思维,采用极具张力的内凹式律动弧线星空顶,灵动的流体墙面与银白色铝板材料碰撞裂变,激发人与空间的感应互动。不同于传统归家大堂,设计跳脱现实充满古典诗意与当代美学色彩,简约大气且充满未来感的符号化设计,这不仅彰显了宛陵大观社区的新型生活理念,也丰富了人们对未来美好生活场景的想象。
■未来生活场景的预演舞台
千里共婵娟
艺术舞台 生活小剧场
邻里中心的架空层提供了未来的艺术舞台,突破了常规的结构形式,采用“V”形柱支撑悬挑出特色的灰空间,塑造出空间骨感。景观引入水源,结构立于水体之上,穹顶下的星星点点与天空交相辉映。V 形柱的外包材料采用了镜面不锈钢,在光的反映投射下,极大地延伸了空间,营造出变幻莫测、未来无限的意境。开放式的空间和独特的几何符号形成强烈的视觉效果,同时制造了话题性,增强了人们和空间互动性。
■
衍生——居民的共享活动空间
千里共婵娟
共享空间 云端漫步
三层的悬挑空间前期作为售楼前场,后期作为文化活动场所被赋予了更多的功能,可进行读书会、演讲、社区艺术展览等多种文化活动。
建筑采用全玻璃幕墙,所有的视线都被延展,进到建筑内部,室内设计上也呼应了宛陵湖的自然元素,水波纹贯穿天际。建筑师将看似简单的线性空间用流线剖开来,用几道弧形隔墙将主要室内空间分成了两边,两条独立的交通流线在墙的两侧穿插蜿蜒,时而平行时而交叉。在一个空间,经历不同的时间线,不同风景,建筑灵动的空间、自然景观的艺术和丰富有趣的室内空间在这里合二为一。
■临湖之上,余晖下的惬意
空中花园的设计联动了整个屋顶、公园景观以及宛陵湖景。建筑将最大的景观面向水面和公园,试图与周围的环境融合共生——从露台到公园,从湖泊到天际。空中花园为社群提供了更多的交流属性,星空音乐会、露天派对、跳蚤市场、室外 barbecue 等活动都可以在这里实现。
■ 无界光影森林 悠闲隐逸、浪漫艺术的生活场景
千里共婵娟
森系后花园 艺术浪漫
通过流线设计让空间再生,建筑师营造出了丰富而动态的空间体验,让参观者可以沉浸,可以思考,可以和建筑对话。
宛陵大观示范区不仅创造了承载社区活动的场所,也为社群提供了感受美好滨湖的未来生活体验。建筑师对社区后花园空间序列的构想类似于一部电影,在动线上有起承转合。参观路径模拟的是滨湖自然机理,蜿蜒的路径刻画出生活的浪漫柔美。氤氲的水汽彷若场地的滤镜,如镜面般的水、升腾着的水雾,让参观者放慢脚步,让参观者能和空间本身有一个交流互动的过程。
在城市设计中,建筑的载体需要关注到人与场地的联系。通过设计演绎,考虑不同的使用场景,建筑师希望将未来社区营造得更加丰富多彩——邻里中心将成为激发城市活力的公共节点,赋能于社区居民更多的可能性,赋能于更加美好的生活。[技术图纸]
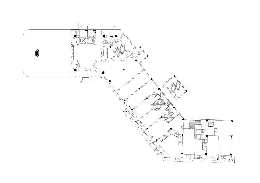
售楼部一层平面图
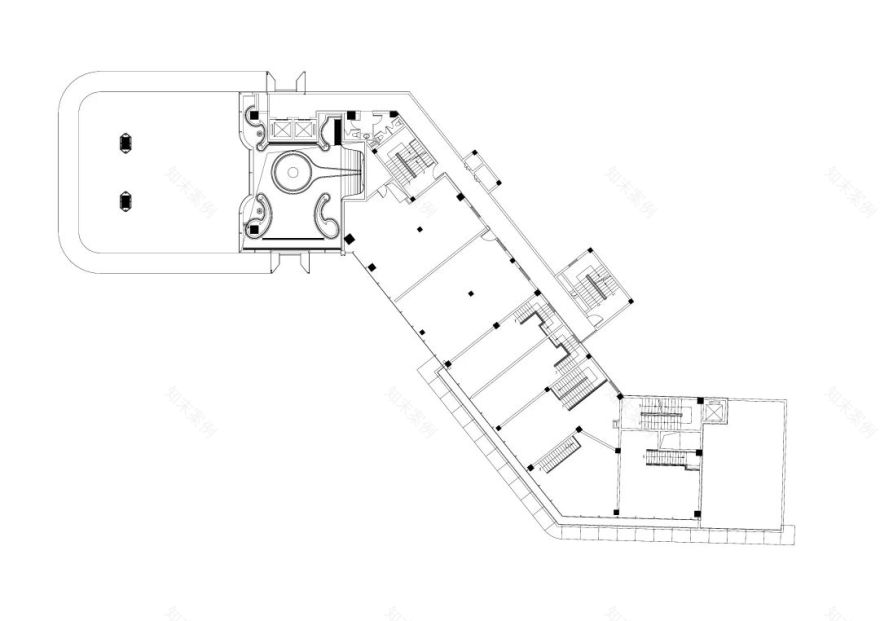
售楼部二层平面图
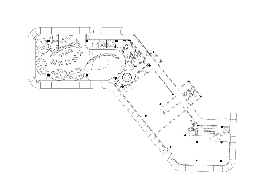
售楼部三层平面图
售楼部立面图
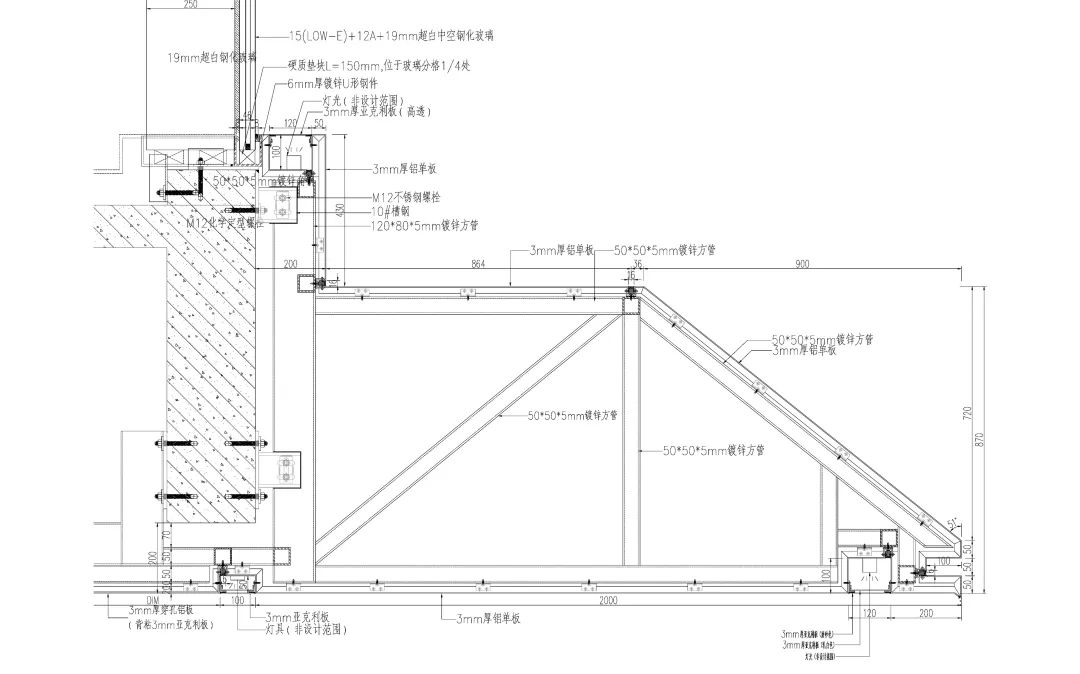
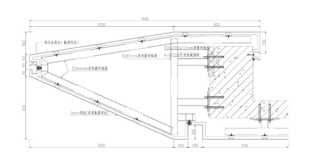
售楼部细部构造图
社区大堂一层平面图
社区大堂立面图
社区大堂细部构造图
项目信息
项目名称:宣城宛陵大观项目
项目地址:宣州区滨湖路与响山路交叉路口
业主单位:宣城博衍置业有限公司
业主团队:周炳玥 母莉娜 谢凯 邹翔 马君飞 刘洋 李易达 汪舒 杨锴 费翔
方案设计单位:上海申城建筑设计有限公司
方案团队:蒋盼 谭娟 魏疆 代芸 吴尚谦 李卓瀚 李佳颖 黄聪 孔思逸
施工图团队:石敏 杨颖 王海平 徐枭晓 曾震宇 蔡兵
景观单位:广州林德景观规划设计工程有限公司
室内单位:维几室内设计(上海)有限公司
幕墙单位:上海竹筱建筑设计有限公司
灯光单位:广州市科柏照明工程设计有限公司
标识设计: 安徽见微知筑设计展示有限公司
雕塑设计: 上海张向明景观设计有限公司
摄影:山兮建筑空间摄影
建设面积:3300㎡
设计时间:2021.4-2021.6
完工时间:2021.9
版权声明 | 本文为申城设计所有,欢迎转发。
本公司享有最终解释权。
客服
消息
收藏
下载
最近


































