查看完整案例


收藏

下载
The object is not to make art, but to be in that wonderful state which makes art inevitable.
——Giacometti· Alberto
目的并非制造艺术,而是身处那种令艺术无可避免的美妙状态中。
—— 阿尔贝托·贾科梅蒂
海派风格凝聚了传统与现代的魅力,展现出独特的风貌。简约而精致的设计风格体现出现代时尚与传统文化的完美融合,使得空间充满独特的魅力与品味,注重传承和展现本土文化,以艺术品和装饰细节体现独特的历史渊源和文化内涵。自然与灵动的氛围创造出宁静舒适的居住环境,使人们能够在繁忙的城市中找寻到片刻的宁静。
项目背景
星空之境 诗意畅想
Poetic Imagination of the Starry Sky Realm
宣城宛陵大观项目总面积约 142454㎡,整合了南部生态板块市政廊道和城市建设关系,围绕宛陵湖依湖而建,是城南重要的文教科创产业园。
玄关空间
无尽曲度 典雅礼序
Endless Curvature&Elegant Ritual Preface
帕拉迪奥十字圆厅的设计,让人在进门的瞬间感受到极致的高雅气息。安德烈亚·帕拉迪奥是意大利文艺复兴晚期的建筑大师,擅长以对称和谐的中央圆厅为中心做对称布局的空间设计,给人以一种端庄和高贵的美感。这种经典的设计元素一直沿用至今,成为新时代居住空间,特别是大平层豪宅高贵礼序的代言。
墙面使用质感和纹理都较为特别的“影木”材质,将空间统一化处理。咖啡金拉丝纹理的金属壁龛点缀普拉达绿台面,软装选择了阿尔贝托·贾克梅蒂的雕塑作品作为玄关端景,彰显独特的艺术品位。
十字圆厅的四个弧形短墙使用了曲面造型,并且使用了金属细圆管作为点缀,给空间增加了可看性的细节。基于层高条件的限制,玄关的天花使用了穹顶造型,用双层灯带处理来突出空间层次感,弱化层高的不足。软装选择了水晶与金属线条结合的装饰吊灯,以及透光云石装饰壁灯,强调仪式感的同时,也提升了空间品味。
起居空间
依于湖畔 兴之所至
Following the prosperity of the lakeside
客厅以普拉达绿石材为主背景墙,墙面的壁炉烘托出温馨的氛围感,木饰面搭配竖向阵列的金属丝扣,以及通往阳台的弧形门洞上镶嵌的金属线条,无一不透出设计的小巧思。天花造型和阳台的门洞都进行了导圆弧的处理手法,整个空间显得简洁流畅。
·普拉达绿石材是奢侈品牌 Prada 的代表色,也是该店铺在全球旗舰店中广泛使用的一款绿色石材,由此冠名。不规则纹理搭配深邃的绿色,散发着经典和高贵的气质,复古与轻奢的艺术美感。
·因为每一块大板的纹理和色调都不相同,在本案中,设计和施工人员花费了很长时间来挑选纹理和排版,因此最终呈现的效果弥足珍贵。
客、餐厅连通设计,配备一处享有 180°湖景视野的阳台,让人可以尽情呼吸新鲜空气,观赏宛陵湖美景。
餐厨空间
社交厨房 解放生活
Social kitchen liberates life
原本的厨房空间面积较小,设计师经过考量后将两面打通做成活动式移门,打开之后通过小吧台的设置,与餐厅形成有趣的互动关系。
居住空间
圆矩交汇 纵享舒适
Circles and rectangles,Longitudinal comfort
南向主卧采用酒店式服务配套设计,步入式衣帽间、女神化妆台一应俱全。主背景墙均分为五块墙板,做了皮革镶嵌设计,加上竖向线条的 LED 灯光与金属镶嵌,细节满满。背景两侧用木饰面勾勒出完美弧线,半围合空间给人安全感。床品选用浅色柔软棉质布料搭配绒毯,整个主卧空间优雅高贵。卧室地面均采用鱼骨拼木地板,时尚高级。
·鱼骨拼地板(chevron)起源于 16 世纪的浪漫之都法国,被书面记录在凡尔赛宫的描述里。因铺贴形状像鱼骨头,得名“鱼骨拼”。因材料切边讲究、铺贴工艺复杂,后来被应用到很多豪宅设计中,彰显高贵品质感。
老人房沿袭海派主题,注重装饰感,墙面以浅色调为主,局部点缀深色木饰面及金属收边。主背景的波浪形木格栅与软包背板在尺度上做了错层设计,展现空间序列感。考虑到空间局限性,舍弃定制通高衣柜,采用开放衣架形式,整体视觉上更显开阔。
儿童空间
童心无限 曲线延续
Infinite childlike innocence,Curve continuation
粉色的儿童房使用上下铺的趣味设计,让人想要回到童年时光,中间用半开放式的衣柜连通,特别设计了圆形洞口造型,让两个空间相对独立又互相穿插。另一侧打通的房间作为儿童学习和娱乐空间打造,同时这两个空间的关系也给未来业主提供了更多的可能性。
卫浴空间
流线美学 整洁雅致
Streamlined aesthetics, clean and elegant
主卫双台盆奢石洗面台设计,墙面使用了浅咖色定制波浪纹石材,搭配普拉达绿,圆形的镜面内嵌了氛围灯光,黄昏时,可以边泡澡边欣赏窗外的美丽风景。
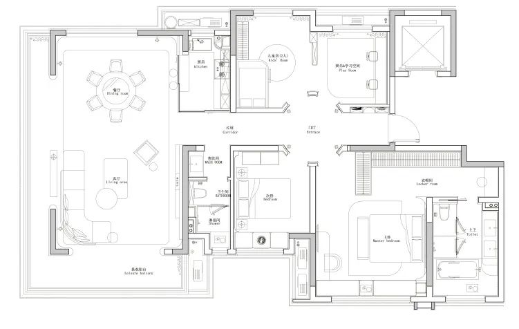
客卫洗手区域墙面选用了拉丝灰镜,相较于其他材质,镜面拉丝的效果让这个小空间看起来更加通透,表面悬挂镜的四边设计了一些金属圆管细节,尽显海派装饰韵味。洗手池台面选用熊猫白大理石,独有的黑白纹路交错浑然天成,层次感鲜明。曲线与直线相衬,一如海派风格中本土文化与现代时尚的碰撞,低奢品味和摩登海派完美结合,让人尽情享受优雅、舒适、多元的生活方式,感受到这座城市的独特韵味和与精致魅力。户型平面
SHANGHAI DESIGN
项目名称:宣城宛陵大观 173 户型样板间
甲方团队:旭辉集团上海区域集团
设计单位:上海申城建筑设计有限公司
室内团队:窦娅芹 纪金亮 汪文文
软装团队:张艳玲 邹昊 朱法强
摄影:一千度视觉 ONE THOUSAND DEGREES
完成时间:2023.5
—
THE END
—
版权声明 | 本文为申城设计所有,欢迎转发。本公司享有最终解释权。
客服
消息
收藏
下载
最近
































