查看完整案例


收藏

下载
「招商 · 领玺家园」
都市中的绿洲
...
此地有崇山峻岭,茂林修竹,又有清澈急湍,映带左右,引以为
流觞
曲水,列坐其次。虽无丝竹管弦之盛,一
觞
一咏,亦足以畅叙幽情。
——王羲之《兰亭集序》
愿 景
——
自由·造梦·绿色·艺术·创新
‘’
Freedom, dream making, green, art and innovation‘’
为都市生活提供自由的造梦空间,专注于营造创新的现代居住环境体验。
沁香园
——
“高山曲水浮流香”
‘’
Mountain, water, fragrance
‘’
▼
独具仪式感的前场门户,突显高端住宅的独特沿街展示面。
漂浮竹从森林
——
“独一无二的水上竹从森林”
‘’ Unique bamboo forest on water ‘’
▼
疏密交错,连同倒影,打造极致意境。为友聚、社交、洽谈提供理想的户外会客厅。
花香舍
——
“
艺术展示的优雅入户花园
”
‘’
Elegant garden of Art Exhibition
‘’
▼
在归家路线上,点缀装置艺术,让居者漫步其中,享受优雅别致的归家体验。
疏林密境
——
“
野蛮生长的都市绿洲
”
‘’
Urban oasis of savage growth
‘’
▼突出极简精致与多层种植的不同手法、营造种植奇幻探索的五感旅程。
设计背后
——
“匠心下的品质营造”
‘’
Create quality with ingenuity
‘’
宏瑞景观设计团队为造就最好的落地效果,使得景观理念最大化实现,解决了一个又一个难点和挑战。在日夜的图纸推敲、打磨及与多专业积极协同、
现场施工
团队的
配合努力下,终于有了最精细的呈现。
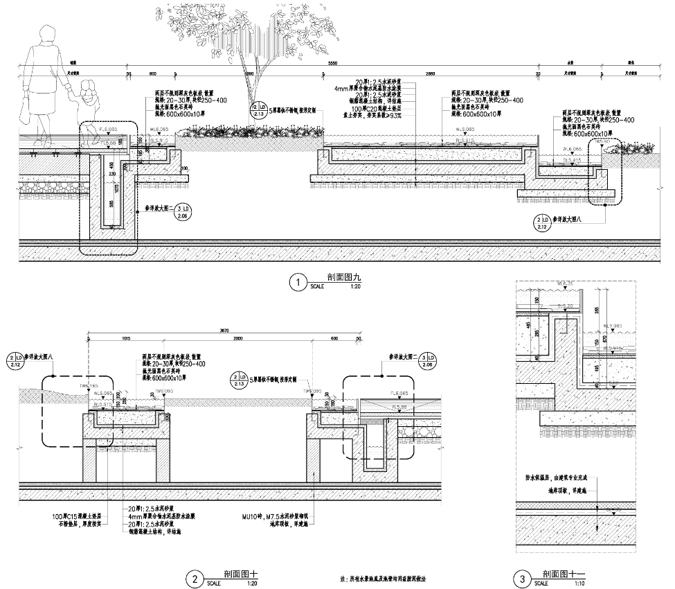
施工重点1:景观水景
▼水景施工图
为保证水景的防水性能要求,无法采用常规的钢筋混凝土结构翻边,采用的为止水钢板做法,在结构浇筑之时,钢板就与结构一起现浇,锚固,确保钢板与结构的整体统一。以求达到最安全稳固的效果。
水景穿梭于主入口廊架,环绕在会客厅廊架四周,不可避免的廊架结构基础就会与水景结构之间交叉,故施工图时候就需要特别注意廊架基础是否会突出水景池底,廊架基础是否会与水景结构重叠冲突。
▼施工过程
▼最终呈现——廊架与水体完美结合
▼止水钢板边缘细节
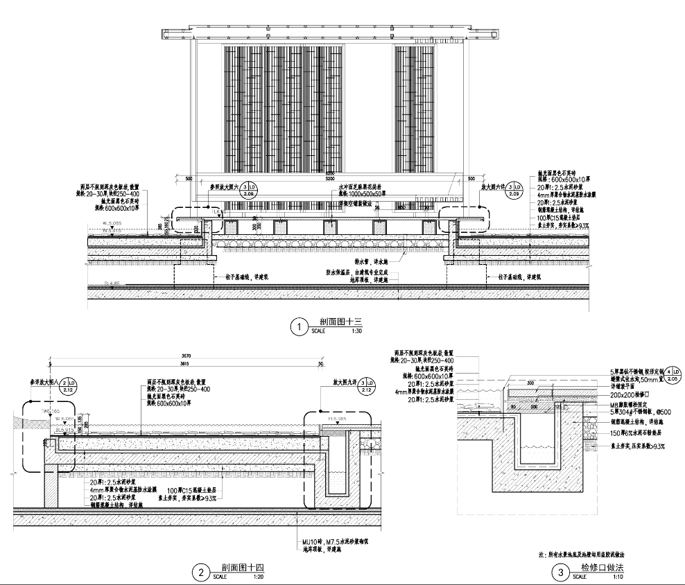
施工重点2:艺术雕塑景墙
▼入户艺术景墙施工图
为保证艺术雕塑墙在夜间也达到最品质的效果,为墙面设计了星光灯。在施工图阶段就积极与相关单位反复沟通,对星光灯孔洞点位以及具体穿线做了详细设计,提前做好相关预埋及孔洞预留,极大了增强了不同时间段的景观体验感。
▼施工过程
▼最终呈现——优雅品质的归家体验
施工重点3:植物配置
▼主乔木选苗配置图
▼骨架树、中层树选苗配置图
通过多样化的设计及层次丰富的植物配置,使绿色、艺术理念贯穿整个场地。植物设计师积极参与主景树、骨架树等的选苗、配置、现场指导等过程,通过植物设计赋予场地生态魅力,创造出这一片绿意盎然的“都市绿洲”。
▼施工过程
▼最终呈现——绿意盎然的“都市绿洲”
与自然对话,
与艺术对话,
与自己对话。
景观不仅仅再只是一种环境的改善,
更是一场心灵的升华,
静心感受水的静谧,绿的悠然,
在这片都市绿洲中,与自然艺术相伴共生...
------------------------------------------------------------
项目名称:招商 ·
领玺家园
项目地址:
广东省深圳市
项目规模:13214㎡
竣工时间:2020.9
业主单位:深圳招商房地产有限公司
业主团队:肖玲玲 彭礼艳 谢彬
施工单位:深圳市国艺园林建设有限公司
景观设计:AECOM
施工图设计:深圳市宏瑞园林景观有限公司
设计团队:魏玉敢 曾金朋 梁国豪 贺光均 范卓利 许丹毅 杨丽娜 艾仙 唐丽萍 陈飞 吴林蔚 杨宜生
客服
消息
收藏
下载
最近










































