查看完整案例

收藏

下载
北京未来设计园区(铜牛地块老旧厂房改造项目一期)坐落于北京市通州区张家湾设计小镇。园区原为北京铜牛集团有限公司生产厂区,厂区内的建筑建成年份为2003年,原建筑主要功能为生产厂房;改造后聚焦设计产业前段研发与创新,融入集合创研工作室、大师工作室、设计交流与展示功能,并增加园区的宿舍配套功能,塑造全新的设计企业生态圈。
Beijing Future Design Park (Phase I of Old Factory Renovation Project in Topnew Plot) is located in Zhangjiawan Design Town, Tongzhou District, Beijing. It was originally the factory of Beijing Topnew Group Co., Ltd. The buildings in the factory, mostly workshops, were mainly completed around 2003. After renovation, the building complex will focus on front-end R&D and innovation of the design industry, and integrate such functions as innovation & research studio, master studio, design exchanges and exhibitions. It will be equipped with supporting functions such as dormitories to create a brand-new ecosystem for design enterprises.
▼项目概览,Preview
项目采用分期建设方式,一期改造范围包括办公楼、成衣车间及食堂三栋建筑。改造后办公楼作为接待、会议、办公、展示及配套服务用房使用;改造后食堂仍作为食堂使用。
The project will develop in phases, of which Phase I renovation covers three buildings, namely, the office building, the garment workshop and the canteen. After renovation, the office building will be used for such purposes as reception, conference, office, exhibition and supporting services, while the canteen will keep its current functions.
▼园区上位规划,Campus plan
办公楼位于厂区西北角,食堂位于厂区北侧东部,园区西侧为上位规划城市绿脉,东侧为城市创新活力轴,从而形成东西向一条重要的公共空间轴线,办公楼、食堂为此轴线上两个重要的节点,分别占据端头位置,在总图中地位重要。
The office building is located in the northwest corner of the factory area, and the canteen is in its northeast. According to the upper-level plan, on the west side of the park is the urban green belt and on the east side is the innovation axis, thus forming an important east-west axis of public space. The office building and canteen represent two important nodes along the axis, occupying two endpoints in the master plan.
▼改造前的办公楼,Office building before renovation
办公楼存在原形式缺乏文创产业的气质、缺乏工业遗产的特质,平面布局较难进行功能转换,层高低,北立面与总图的矛盾等问题。结合其在总图中位置及原建筑限制条件,我们提出将其转化为一个具有展示功能的办公建筑,景观中的建筑,将其变身为一处能够举办活动的社交场所,营造在花园中办公的体验。
Problems of the original office building include a lack of style of cultural and creative industries, a lack of industrial heritage, difficulties in functional transformation given the flat structure and relatively low height, and the conflict between the north facade and the master plan. Considering its location in the master plan and limitations, we propose to transform it into an office building amid the landscape with display functions, a public place where activities can be held, and a garden-like place that promises pleasant working experience.
▼办公楼东南人视(改造后),View from southeast (after renovation)
▼办公楼西南人视(改造后),View from southwest (after renovation)
▼办公楼南侧主入口,South entrance
现状办公作为一个方形的实体堵在南北两侧广场之间,我们采取的策略是虚化建筑,将围护结构全部拆除,只保留结构构件,裸露钢筋混凝土梁板柱,使之成为一个景观中的构筑物:首层架空沟通南北广场,上部保留现有结构楼板,形成丰富的室外露台,人们可以在不同高度、不同大小的露台上活动。
▼办公楼-轴侧图,Office building – axon
The current office is a square-shaped entity separating the squares on the north and south sides. Our strategy is to make the building less protrusive by demolishing all the building envelopes and keeping only the structural members, so that the reinforced concrete beams, slabs and columns are exposed to render it a structure embedded in the landscape: the first floor is built on stilts in order to connect the north and south squares, while the upper part retains the existing structural floors, forming diverse outdoor terraces of different heights and sizes for people to walk on.
▼办公楼概览,Office building exterior view
▼办公楼多标高室外露台和钢栈道,Outdoor terrace and steel plank roads
在景观设计中,保留原680mm的室内外高差,并通过将台阶范围扩大,呈现出巨大基座的效果。在裸露混凝土框架之中及基座之上,我们选种了大量的银红槭和梧桐,树木与建筑产生了有趣的对话,并为建筑带来新的生机,将建筑掩映在绿化之中。
In landscape design, the original height difference of 680 mm between indoor and outdoor spaces is retained, and the effect of a huge base is foregrounded by expanding the range of steps. In the exposed concrete frame and on the base, we plant a large number of red maples and Chinese parasols. The trees enter into an interesting dialogue with the building, bringing it new vitality with the surrounding greenness.
▼办公楼景观平台,Viewing platform
利用工业感极强的钢楼梯、钢栈道,打造具有工业风的文创设计园区,同时因地制宜的与多个半室外露台结合,从首层串联到屋顶的观景平台,共同形成丰富体验感的空间感受。
We use steel stairs and steel plank roads to induce a strong feeling of industry in the design of an industrial-ish cultural and creative design park. Meanwhile, we adapt the building to the local conditions by joining it with several semi-outdoor terraces, so that the viewing platform from the first floor to the roof are connected to deliver a rich spatial experience.
▼钢梯及钢栈道,Steel stairs and steel plank roads
▼钢楼梯,Steel stairs
▼钢栈道,Steel plank roads
北侧面对城市广场,增设穿孔板幕墙,并考虑设置投影装备,此幕墙作为一个提供信息展示的舞台,分别在平日、一般节日、重大节日采用不同的投影效果,另一方面穿孔板幕墙也满足了室内办公的采光需求。
▼办公楼北立面(改造前),North elevation (before renovation)
A perforated curtain wall is added on the north side facing the city square, and projection equipment is considered. As a stage for information display, the curtain wall adopts different projection effects on weekdays, festivals and major celebrations. On the other hand, the perforated curtain wall also meets the lighting needs of indoor offices.
▼办公楼北立面(改造后),North elevation (after renovation)
▼办公楼西侧人视,West facade
食堂原建筑存在造型平淡、东侧功能消极、缺乏工业感等诸多限制条件。食堂作为西侧城市绿脉和东侧创新活力轴之间上唯一一座建筑,我们希望通过对食堂改造,打通东西轴线,实现视觉通廊,将其改造成立体广场、开放共享的街区食堂,使其成为景观上的交互空间、重要的景观节点。
▼食堂建筑(改造前),Canteen building (before renovation)
The original canteen has many limitations, such as a dull shape, limited functions on the east side, and a lack of industrial style. As the only building between the urban green belt on the west side and the innovation axis on the east side, the canteen is renovated to connect the eastern and western axes to form a visual corridor. We hope to transform it into a block canteen on an open and three-dimensional square, so as to turn it into an interactive space and an important node in the landscape.
▼食堂西南人视(改造后),Canteen southwest perspective (after renovation)
食堂最初的方案与办公楼类似,我们也设置了东西两面较大面积的穿孔板(内部放置厨房的排油烟设备和屋顶室外机),和较高的钢楼梯及顶部钢栈道观景平台,作为园区东侧进出门户的重要节点,与办公楼形成对望之势。后由于造价等原因,将穿孔板、钢楼梯和钢栈道进行了大量的删减和取消。
The original renovation plan of the canteen was similar to that of the office building. In addition, perforated plates covering fairly large areas on the east and west sides were planned (with oil fume exhausters in the kitchen and roof-mounted outdoor units), as well as a high steel staircase and a steel-plank-road viewing platform on the top as an important node of park entry and exit on the east side, creating another towering structure near the office building. Later, due to cost reduction and other factors, the perforated plates, steel staircase and steel-plank roads have been largely removed.
▼食堂(前期方案)- 轴侧图,Canteen – original renovation plan
▼食堂(实施方案)- 轴侧图,Canteen – final renovation plan
▼食堂北立面(改造后),Canteen north facade (after renovation)
我们将围护结构全部拆除,只保留结构构件,裸露钢筋混凝土梁柱,使之成为一个景观中的构筑物:首层架空沟通东西轴线,上部在现有结构框架上拆除两块楼板,下方设置景观树池,丛生元宝枫的树冠穿过板洞为二层包间和园区带来别样的风采。
The renovation strategy for the canteen is similar to that of the office building. We demolish all the envelopes, and retain only the structural members. The reinforced concrete beams and columns are exposed to make it a structure embedded in the landscape: the first floor is built on stilts to connect the eastern and western axes, two floor slabs are removed from the existing structural frame at the upper part, and a landscape tree pool is set at the lower part. The crown of the clustered Acer truncatum passes through the slab hole to offer delightful views to the second-floor private rooms and the park.
▼食堂入口,Entrance of the canteen
▼食堂内院,Courtyard of the canteen
在粗拙的混凝土框架之中植入六角形为母题的餐厅和矩形的厨房。连续的透明玻璃幕墙模糊了室内外的界限,室外粗野美感的景观与室内精致整洁的用餐环境,相得益彰。厨房采用集装箱瓦楞板外墙,像是一个成品集装箱插在混凝土框架之中。
A dining room with a hexagonal motif and a rectangular-shaped kitchen are embedded in the rough concrete frame. The continuous transparent glass curtain wall blurs the boundary between indoor and outdoor spaces, as the rough beauty of the outdoor landscape complements the exquisite and tidy dining environment inside. The kitchen adopts corrugated boards of the containers as its outer wall, and looks like a finished container stuck in a concrete frame.
▼裸露混凝土与玻璃幕墙
The exposed concrete structure and glass curtain wall
陈
向飞
▼室内空间概览,Overall view of the interior space
利用工业感极强的钢架、钢楼梯、钢栈道,解决疏散的同时,打造具有工业风的文创设计园区。
Steel frames, steel stairs and steel plank roads with a strong industrial style are adopted, which helps to solve evacuation problems in the design of an industrial-ish cultural and creative design park.
▼食堂钢梯及钢架,Steel staircase and frame
办公楼、食堂原建筑的一大特点即是混凝土框架,我们对之加以改造利用,选择裸露其拆除围护结构后自然形成的混凝土原色,只做简单的清洗和剔除处理,再喷涂清水混凝土保护剂完成定型效果。
One of the prominent features of the original office building and canteen is the concrete frame. We build on the existing structure and transform it by exposing the naturally formed colors of concrete after dismantling the envelope, only doing some simple cleaning before spraying fair-faced concrete protective agent to finalize the design effect.
▼建筑与环境,The building and the surrounding
经过处理后的结构框架,以一种崭新且独特的面貌,展现出混凝土材料的原始魅力,空间散发出一种粗犷的工业精神;而镶嵌其中的金属板与玻璃幕墙,则呈现出一种轻盈通透的精致感,与粗野的混凝土框架形成鲜明的反差,两部分的建筑风格完全不同,分别突出各自特点,而整个建筑的特性在不同气质的材料、新与旧之间的碰撞中也发挥到极致。
After such processes, the structural frame renews the original charm of concrete materials with a fresh and striking appearance, exuding a raw industrial spirit. The embedded metal plate and glass curtain wall bring a sense of lightness and transparency, standing in sharp contrast with the rough concrete frame. The architectural styles of the two parts are completely different, each with its own unique features, while the entire building gains its striking character through the collision between materials with different temperaments, and between old and new.
▼混凝土细部,Concrete structure detailed view
▼北京未来设计园区-总平面图,Master plan
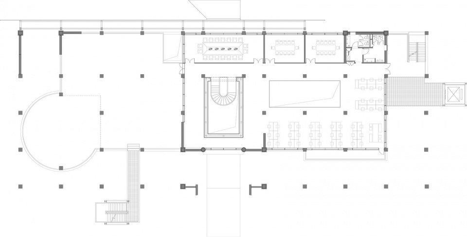
▼办公楼首层平面图,Office building – Plan 1F
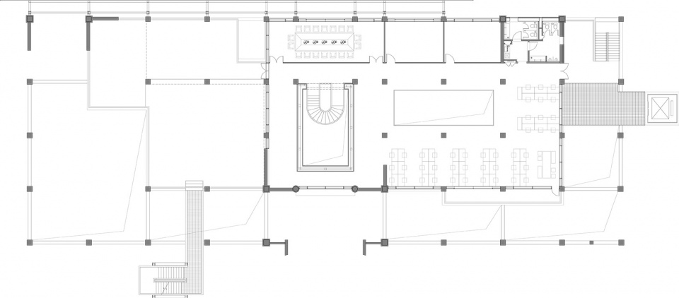
▼办公楼二层平面图,Office building – Plan 2F
▼办公楼三层平面图,Office building – Plan 3F
▼办公楼剖面图,Office building – Section
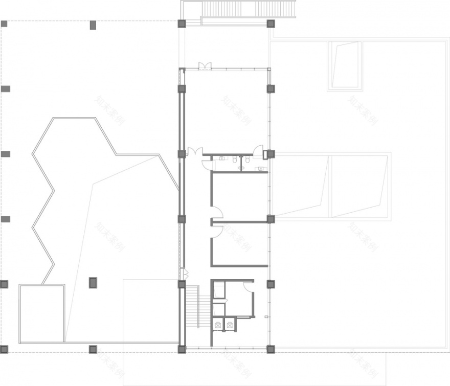
▼食堂首层平面图,Canteen – Plan 1F
▼食堂二层平面图,Canteen – Plan 2F
▼食堂剖面图,Canteen – Section
Location/地点:Tongzhou District, Beijing/北京市,通州区
Typology/类型:Office/办公建筑
Status/状态:Completed/已建成
Design/时间:2020-2021
Site Area/用地规模:51700㎡
Building Area/建筑规模:办公楼2989.24㎡ 食堂 1659.57㎡
Design Guide/设计指导:Xu Quanshen/徐全胜
Directors/主持建筑师:Hu Yue/胡越
Design Team/方案设计团队:胡越、游亚鹏、马立俊、杨剑雷、郭宇龙、卜倩、孙冬喆
Hu Yue, You Yapeng, Ma Lijun, Yang Jianlei, Guo Yulong, Bu Qian, Sun Dongzhe,
Project Team/工程设计团队:胡越、游亚鹏、吴英时、马立俊、杨剑雷、郭宇龙、谌晓晴、卜倩、孙冬喆、于猛、马文丽、张连河、曾若浪、贺进城、易玉超、王晖、马金、刘晨
Hu Yue, You Yapeng, Wu Yingshi, Ma Lijun, Yang Jianlei, Guo Yulong, Shen Xiaoqing, Bu Qian, Sun Dongzhe, Yu Meng, Ma Wenli, Zhang Lianhe, Zeng Ruolang, He Jincheng, Yi Yuchao, Wang Hui, Ma Jin, Liu Chen
Project Management/项目管理团队:郭少山、谌晓晴、夏卿、贾弢
Guo Shaoshan, Shen Xiaoqing, Xia Qing, Jia Tao
Photographer/摄影: 陈溯 陈向飞
Chen Su, Chen Xiangfei
室内装修顾问:北京建院装饰工程设计有限公司
建筑幕墙顾问:华纳工程咨询(北京)有限公司
景观设计顾问:北京北林地景园林规划设计院有限责任公司
建筑照明顾问:栋梁国际照明设计中心
施工单位:北京建工集团有限公司
客服
消息
收藏
下载
最近






































