查看完整案例


收藏

下载
一份工业考古学
庞培亚文化体育中心
SESC Pompeia
丽娜·博·巴蒂 1982年
圣保罗,巴西
丽娜接手庞培亚文化体育中心项目时,巴西和整南美地区依然处于军政府统治之下。项目是一个为特定会员及其家庭提供运动设施、图书馆、幼儿寄托服务和培训服务的社区中心型建筑。早起的城市更新项目,新和旧在这里被打造出新的生命和样式。民众在里面营造自己的一部分的生活。
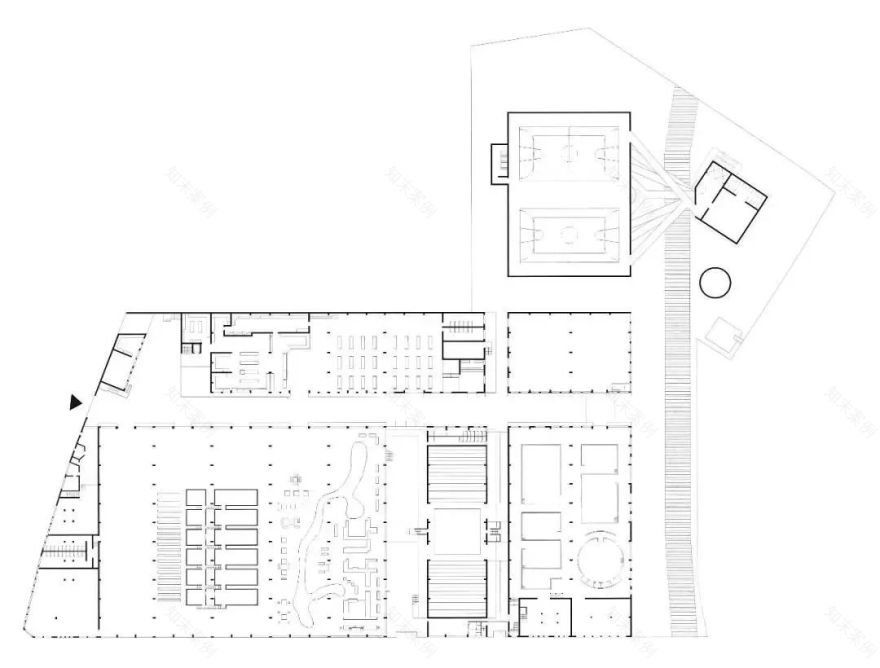
基地位于圣保罗郊外一个废弃的钢桶制作厂。丽娜决定不拆除现有厂房,丽娜意识到了这个国家已经建造了很多的建筑,现在需要的是改造而非新建,不能简单地说拆除就拆除,现代主义彻底消除传统的做法应该被反思。在1979年的一个讲座上,她将此定义为“工业考古学”,如何思考现有建筑并加以利用的设计方法---城市更新。
最终方案保留了所有厂房,丽娜重新加固了旧砖墙和金属屋架,最大化地使用和保留原有材料和结构,并将所有的文化设施布置在其中;运动设施被集中布置在基地一个角落,但这个空地下面有一个裂痕,因此新建筑被设计成为两个塔楼,两栋建筑之间通过混凝土桥连接。设计中,丽娜使用不同的材料来区分和标识不同的新旧建筑,旧建筑均保留原有砖墙,而新建筑则采用钢筋混凝土建造,以此来区分两者的不同。既体现了新建筑的新,也体现了旧建筑的不同。两者互为不同又互为相合。
粗犷混凝土肌理,强烈对比的形体撞击,和自由的窗户,庞培亚文化体育中心中新建的部分让人感到一种极强的冲突。新建部分与工业老厂房改造部分之间有趣的新旧对比,使作品在整体上展现出强烈的戏剧性。这其实也是城市更新的一部分,将更新发挥至极致。新和旧的融合,让这个建筑完美的融合在这个城市,特别也显得融洽。
20世纪80年代到90年代,不仅是拉美政治、经济、社会和文化痛苦的转型期,对于现代主义建筑而言,更是一个低潮期,庞培亚文化体育中心是整个拉丁美洲在这个时期里,少数可以被称为杰作的建筑之一。
攸设计说:设计小背景
丽娜·博·巴蒂(Lina Bo Bardi)是巴西20世纪最重要和富有表现力的建筑师之一。她从罗马大学建筑学院毕业后搬到了米兰,后来成为Quiaderni di Domus杂志的编辑。她在遇到评论家、艺术历史学家Pietro Bardi后,决定永久迁居巴西。
在现代主义的影响下,丽娜开始了自己在巴西的建筑探索。她开始从人类学的角度研究巴西文化,特别感兴趣的是传统艺术和流行艺术的融合。1950年,她创办了Habitat杂志;1951年,她为自己设计了一栋玻璃住宅,当时在巴西被认为是理性主义艺术的典范之一;1982年建成的庞培亚文化体育中心则是她职业生涯晚期最精彩的作品。
有方空间”
和网络,此内容仅供学习参考不作为任何商业用途。
攸地UDIA
不止于设计
客服
消息
收藏
下载
最近


















