查看完整案例


收藏

下载
天边的一朵云
巴格斯韦德教堂
Bagsvaerd Church
约翰·伍重 1976年
巴格斯韦德 丹麦
伍重建筑理念的集大成作品。
夏威夷的云朵+中国式合院+徽派山墙+伊斯兰书法与建筑符号。
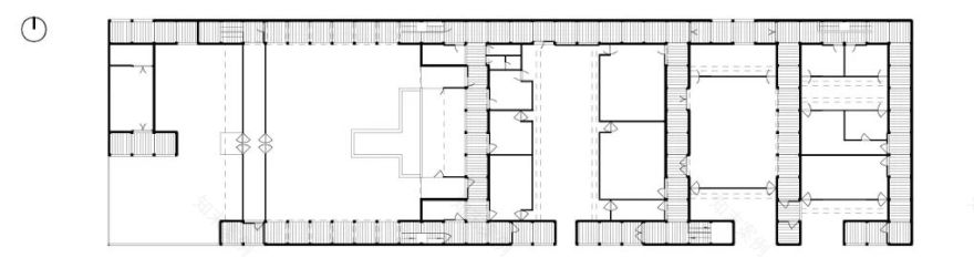
一个位于哥本哈根市郊教堂,由一系列院落和大厅并列排布,再由具有保护性的走道将其围合起来。
▲伍重草图
建筑师伍重设计这一教堂时曾经画过两幅草图:一众信徒聚集在海滩边,信徒和海滩被树状的柱子和云一样的拱顶限定在画面中。通过对这两幅草图的转译,伍重捕捉到了设计的灵感。
▲平面图
建筑由现浇混凝土和预制混凝土构件组合而成,立面上覆盖着浅色混凝土预制构件及与之配套的瓷砖,屋顶由金属铝板覆盖,沿着两侧相平行的通道上面覆盖有玻璃天窗。
▲教堂外观、两侧通道、内院
这个教堂建筑几乎就是对伍重建筑理念一次集大成的体现。首先,伍重跨文化的背景在此展现得淋漓尽致:云朵的概念来自夏威夷任教的经历;合院式的布局不禁让人想起中国的建筑;两侧高耸的山墙也让人联想到中国的徽派建筑;伍重非常欣赏伊斯兰书法,所以室内拱顶的草图显示出类似伊斯兰书法般自由优雅的线条;圣坛背后的砖构也让人想起伊斯兰建筑的符号。
▲教堂剖面和内部
最后,预制装配的建造理念。在伍重看来,预制装配式建筑的经济性并不是最主要的目的,他更愿意从建筑学意义上来讨论。在他看来,预制装配式的建造方式是一种支撑结构和填充结构清晰表达的建构手法。1969年,伍重就设计了全预制的住宅实验单元体,而这一实验单元放大之后就是巴格斯韦德教堂的建造手法。
攸设计说:设计小背景
这一灵感来自伍重在夏威夷海滩观察到的自然景象:在迎风的位置,信风将云朵不断提升到海平面数千米以上,然后又完全静止在空中。他可以从清晨一直观察到中午。午后的阳光穿过云层洒落在沙滩上,这一切实在是太美妙了。他从自然的空间中感受到精神上的平和,从而理解了精神上的平和其实就是对生活的满足、喜悦和感激。
于是,他将从中抓取到的空间体验融合到了巴格斯韦德教堂的设计中。
有方空间”
和网络,此内容仅供学习参考不作为任何商业用途。
攸地UDIA
不止于设计
客服
消息
收藏
下载
最近

















