查看完整案例


收藏

下载
我们坚持“与传统有呼应,
对未来有探索,
和当下能同步”的设计原则,
在空间中坚持以传统元素为基调,
同时融入经典的现代主义设计元素和手法,
大胆的运用新材料和新工艺,以及艺术作品。
——
叁上叁空间设计创意总监:霍庆涛
We adhere to the design principle of
"echo with tradition, explore for the future,
and synchronize with the present".
We adhere to the fundamental tone of
traditional elements in the space,
and at the same time integrate classic
modernist design elements and techniques,
boldly using new materials,
new techniques and artistic works.
——
Huo Qingtao
ws- 01
这是我们与辣婆婆餐饮集团合作
三年以来设计的第19家店面,
是一次店面形象的全新迭代
也是对之前的一次总结。
This is the 19th store we have
designed since we cooperated with Spicy
Granny Catering Group for three years,
which is a new iteration of store image
and a summary of the previous one.
ws- 02
ws- 03
ws- 04
ws- 05
我们坚持“与传统有呼应,
对未来有探索,
和当下能同步”的设计原则,
在空间中坚持以传统元素为基调,
同时融入经典的现代主义设计元素和手法,
大胆的运用新材料和新工艺,以及艺术作品。
We adhere to the design principle of
"echo with tradition, explore for the future,
and synchronize with the present".
We adhere to the fundamental tone of
traditional elements in the space,
and at the same time integrate classic
modernist design elements and techniques,
boldly using new materials,
new techniques and artistic works.
ws- 06
ws- 07
ws- 08
ws- 09
ws- 10
ws- 11
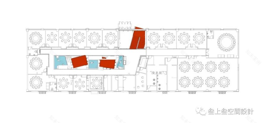
我们突破了人们的对传统楼梯的定义,
将楼梯定义成一个连接不同空间的“连通装置”,
将楼梯扭转了15°,在连接上下空间的同时,
突破了室内和室外的空间界限,
并腾挪出了景观的空间,
让原本单调的楼梯成为了空间中的亮点
和一个多元的功能体。
We broke through the definition of
traditional stairs, the stairs defined
as a
connection of different space "connectivity",
stair the reversing a 15 °,
while connecting the upper and lower space,
break through the boundary between the
indoor and outdoor space, and run out of the
landscape space, let originally drab stair
became a bright spot in space and a
multivariate function of body.
ws- 12
ws- 13
ws- 14
ws- 15
ws- 16
ws- 17
二楼的包房区域,
我们突破封闭独立的包房限定思维,
在中心区域设置了一处同就餐区结合的中央景观区。
我们用一个“装满故事的盒子”
这样的一个理念在对景观区进行塑造,
通过一种园林式的设计手法,
在一个很小的区域内,
营造出一种小中见大的景观感。
On the second floor, we break through the
limited thinking of closed and independent
compartments, and set a central landscape
area combined with the dining area in the
central area. We use a concept like
"a box full of stories" to shape the landscape area.
Through a garden-like design technique,
we create a sense of landscape in a small area.
ws- 18
ws- 19
ws- 20
ws- 21
ws- 22
创新是我们的核心竞争力,
也是餐饮品牌发展的原动力,
我们用作品,见证客户的发展和我们成长。
Innovation is not only our core competitiveness,
but also the driving force of the development
of
catering brands. We use our works to
wi
tness
the development of customers and our growth.
项目信息
项目名称:渝乡辣婆婆
项目地址:
中国 河北 石家庄 栾城
设计面积:1000
㎡
竣工设计:
2020.11.20
业主单位:
渝乡辣婆婆餐饮集团
设计公司:叁上叁空间设计
创意总监:霍庆涛
执行总监:何秀莹
施工团队:河北金蜗牛装饰工程有限公司
摄影团队:左圳
霍庆涛
深圳市叁上叁设计顾问有限公司创始人
何秀莹
叁上叁空间设计执行总监
霍庆涛
2015 中国设计星十强华北区冠军
2018 40UD40全国榜
2020 中国室内设计新势力榜TOP10
红棉中国设计奖▪2019室内设计奖
杰出新商业空间设计师
新商业空间设计师TOP10
第四届中国室内新势力榜华南区杰出设计师TOP10
艾特奖深圳赛区-餐饮空间设计 银奖
2020年“华语设计领袖榜”百位卓越设计人物
2013
创立河北叁上叁装饰设计有限公司,
专注于餐饮空间设计,为社会餐饮提供设计服务。
2018
创立深圳叁上叁设计顾问有限公司,
专注于团餐空间设计,为企业和高校提供内部餐厅设计服务。
深圳市叁上叁设计顾问有限公司
深圳市叁上叁设计顾问有限公司,成立于
2018
年,
专注团餐空间设计的细分领域,致力于深度服务团餐市场,为中国首家专业团餐设计机构,
为多家世界
500
强企业和知名高校提供团餐环境设计,
打造了上百个标杆餐饮项目,服务客户有华为、唯品会、
OPPO
、沃尔玛、索迪斯、新又好、海底捞、蜀王集团等知名企业。
客服
消息
收藏
下载
最近


























