查看完整案例


收藏

下载
研磨时光
米色系主调质感蔓延于空间之中,成就和谐之美,予人舒适休闲的氛围体验。拱形顶面的架构设计增加了咖啡厅空间的延展性与趣味性,或倚靠吧台,或驻足书架,或窝在沙发,缓下节奏卸下疲惫,跃进咖啡消遣时光。
项目:無用 CAFE
设计面积:90㎡
主案设计:陈嘉源
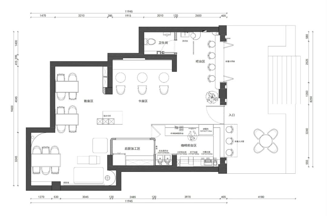
平面布置图
Layout plan
户外 Outdoor
入口 Entrance
吧台
Bar
卡座 Deck
散座区 Scattered area
活动书架 Activity bookshelf
沙发区 Sofa area
雕塑墙 Sculpture wall
END
「获奖荣誉·AWARDS」
2020 亚太设计精英邀请赛-年度办公类别佳作奖
2020-2021.40 UNDER 40 中国(厦门)设计杰出青年
2020 国际空间设计大赛“ID+G”金创意奖-国际创新设计奖
第七届中国装饰设计奖(CBDA 设计奖)-银奖
第十届中国国际空间设计大赛(中国建筑装饰设计奖)-银奖
IAI 全球设计奖(室内奖)-铜奖
第十届艾特奖-铜奖
2019 艾鼎奖-优秀奖
2019 红棉奖-优秀奖
2019 金堂奖优秀作品奖
2019 这就是设计年度最佳办公空间奖
PAST WORKS|往期回顾
《湖心之上,水月之间,一域,一舍》
《筠心|以自然建构艺术,缔造诗意墅居》
《在这里,见证嗅觉与质感的奇妙邂逅》▼
客服
消息
收藏
下载
最近






















