查看完整案例


收藏

下载
跳出传统思维 增加个性深度
让超越想象的家 变成你的归宿
是时候抛开过去 感受沉淀与积累
“我要活出自己”……
那是对生命的承诺
庄严 郑重 却浪漫自由
透过大落地窗,似乎是被上天赐予的风景画,随着光的移动,若明若暗……
本案业主是一对开朗、活泼的年轻夫妻,有一个可爱的儿子,传统老三样(沙发电视茶几)模式已不再适应现在年轻人的多样化需求。
一进门就带着家的造型欢迎主人的归来,且又不失功能性。每件随身物品都有其摆放的位置,让整洁从玄关开始。
客厅作为全家人互动的主要区域,当然应该可阅读可观影,亲子活动后再来个瑜伽。空间的多功能性无疑决定了它至关重要的家庭地位。
设计师通过对阳台墙体的打通,让整体空间视觉感更加开阔通透,并按照业主需求,摒弃茶几的观念,让孩子可以有更大的活动空间,又增加了家人之前的互动与交流。
奶油色的甜美与白色的纯洁交融,再搭配粉绿的墙面点缀,温暖细腻。开放式规划厨房与餐厅连为一体,并将现代化电器植入空间,使之一度成为年轻人的主流配备。
给门洞加点弧度吧,柔美悠闲又带有一点浪漫的情怀,再加上床头氛围灯的修饰,大大丰富了空间的形态,真让人无法拒绝。空间改造上变更了主卧入口,从衣帽间入,把过道的部分面积纳入卧室,不仅扩大了主卧的空间,也大大改善了过道狭长的弊端。
充满探索氛围的儿童房,趣味、幻想,让孩子在轻松愉悦且带有憧憬的环境中期盼成长。
不知从何时起,灯饰已不再仅仅是一个照明的工具,人们更需要它为家居生活营造一种氛围,或温馨,或浪漫,或宁静,或充满情调……
▲ 原始结构图 /Original structure drawing
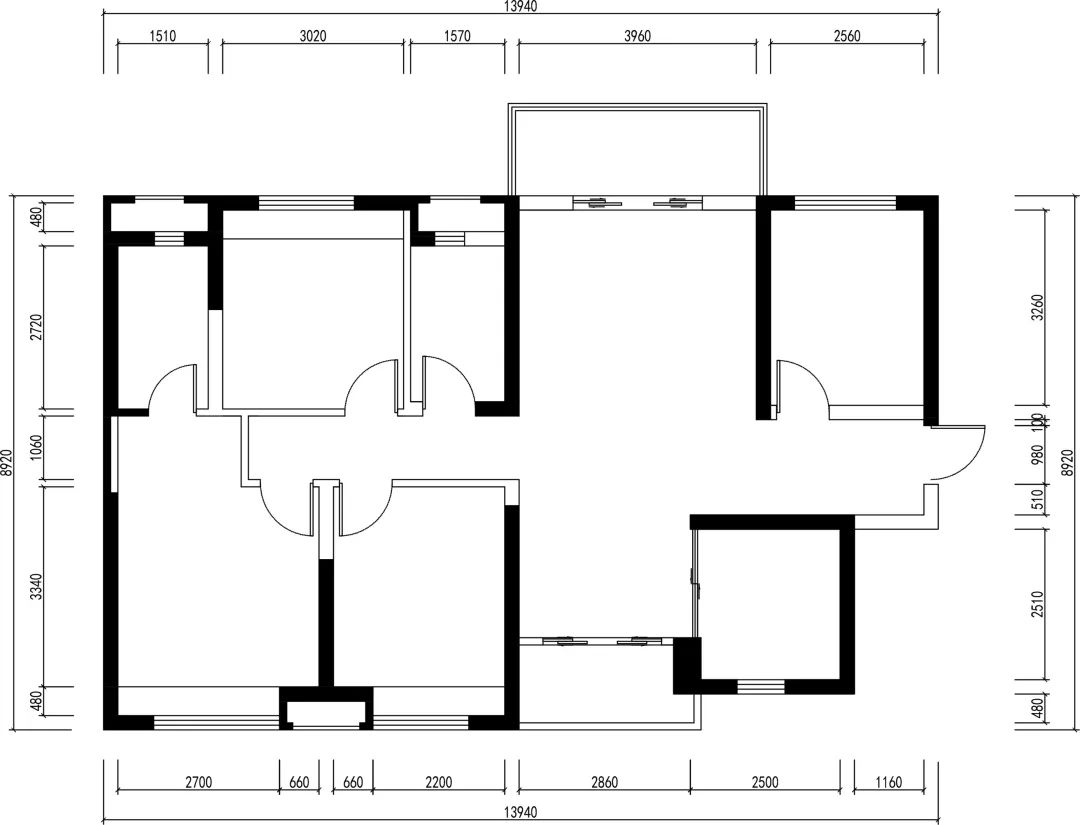
1、户型方正,阳台景观视野开阔,搭配落地窗能更好展现优势。
2、餐厅厨房面积较小,合适做成开放式厨房,增加通透感。
3、主卧空间不足以容纳大衣柜,故把其中一个房间改装成衣帽间来增加收纳面积。
▲平面布置图/Floor plan
项目名称 / 小竹笋的 sweet home
项目地址 / 桂林市秀峰区万象府
项目类型 / 居住空间
项目面积 / 135㎡
设计单位 / 斑马設計事务所
拍摄单位 / 潘智仁摄影工作室
主笔设计 / 农滨瑜
设计师简介 /About designer
农滨瑜 斑马设计事务所
设计理念:构建本质与情感让生活回归生活
所获荣誉:
- 荣获中国(桂林)设计杰出青年
- 《无忧产后修复中心》作品荣获第十届 IDOL 锋范奖商业零售空间优秀奖
- 《斑马设计事务所》荣获第四届中国设计【新桂系】设计大赛商业空间组银奖
- 《Hi!Beauty!饰品店》荣获第五届中国设计【新桂系】设计大赛陈设设计组金奖
关于我们 /About us
联合创始人:韦建(右)、肖伟(中)、农滨瑜(左)
公司简介 /Company profile
斑马设计事务所,成立于 2017 年。组建以来,我们一直秉承着“以原创设计为驱动力,打造更具有价值的先锋设计”为设计理念,且与国际设计潮流接轨,不断探索未来设计的可能性。
斑马设计事务所是不断力求创新和突破的团队,通过近几年来的运营和所做的案例,已经助力多家企业和商业空间实现更好的商业价值!我们未来将以更全面的设计方式服务于空间所带来的环境、园林、居住及商业项目范畴的所需企划,与人文理念结合,打造具有代表性的设计产品。
Zebra design, founded in 2017. Since its establishment, we have been adhering to the design concept of "creating more valuable pioneer design driven by original design", and in line with the international design trend, and constantly explore the possibility of future design. Zebra design firm is constantly striving for innovation and breakthrough team, through the last few years of operation and do the case, has helped a number of enterprises and commercial space to achieve better commercial value! In the future, we will use a more comprehensive design approach to serve the needs of the environment, landscape, residential and commercial projects brought by the space, and combine with the humanistic philosophy to create representative design products.
所获荣誉/Received the honor
2020 年度第十一届 IDOL 锋范奖八个作品入围获奖
2019 年度金堂奖(商业空间)杰出作品
2019 年度金堂奖(餐饮空间)杰出作品
2019 年度艾特奖(餐饮空间)优秀作品
2019 年度中国设计【新桂系】设计大奖赛商业空间组金奖
2019 年度中国设计【新桂系】设计大奖赛商业空间组银奖
2019 年度中国设计【新桂系】设计大奖赛商业空间组铜奖
2019 年度中国设计【新桂系】设计大奖赛软装设计组金奖
2019 年度中国设计【新桂系】设计大奖赛软装设计组铜奖
2019 年度中国设计【新桂系】设计大奖赛家居空间组银奖
2018 年度金堂奖(办公空间)优秀作品
2018 年度中国设计【新桂系】设计大奖赛办公空间组银奖
2018 年度中国设计【新桂系】设计大奖赛酒店空间组银奖
2018 年度广西第九届 IDOL 锋范奖办公实景类铜奖
13517833304 肖先生
18977323007 农女士
地址:桂林市秀峰区红岭路 20 号 17 栋(原空压机厂内)
客服
消息
收藏
下载
最近
































