查看完整案例


收藏

下载
桂林青禾美邦家居美学体验中心
集会所、会议中心、家居体验馆、东方馆、设计师沙龙区、VIP 会议区、装饰材料应用中心、进口家具馆于一体,集中展示了当今最新的家居品牌家具及饰品陈设。
设计运用了结构改造的手法,通过现代简约的方式从西到中风格混搭,并以现代设计师的眼光,为家居市场做了全面的呈现和引导,为市民及设计师提供了一个集中休闲的交流空间。
▲门厅过度空间/Lobby areas
近 200㎡奢华阔绰门厅,天花与地面以乳白色为主,搭配两边深色木饰面,赋予了它强烈的视觉深度
以下内容请横屏观赏
▲接待大厅/Reception hall
通过门厅,进入接待大堂。东方美学与西方音乐艺术交汇,彼此尊重,互相映衬,诠释了海纳百川的独特设计理念。
▲过道/Hallway
通过两边灯光的线条勾勒,及搭配点光源设计,带来一种恰到好处的平衡感及方向视觉,为空间氛围增添了层次感和立体度
▲进口馆/Import pavilion
▲东方馆入口/Oriental pavilion
▲轻奢馆 /Luxurious pavilion
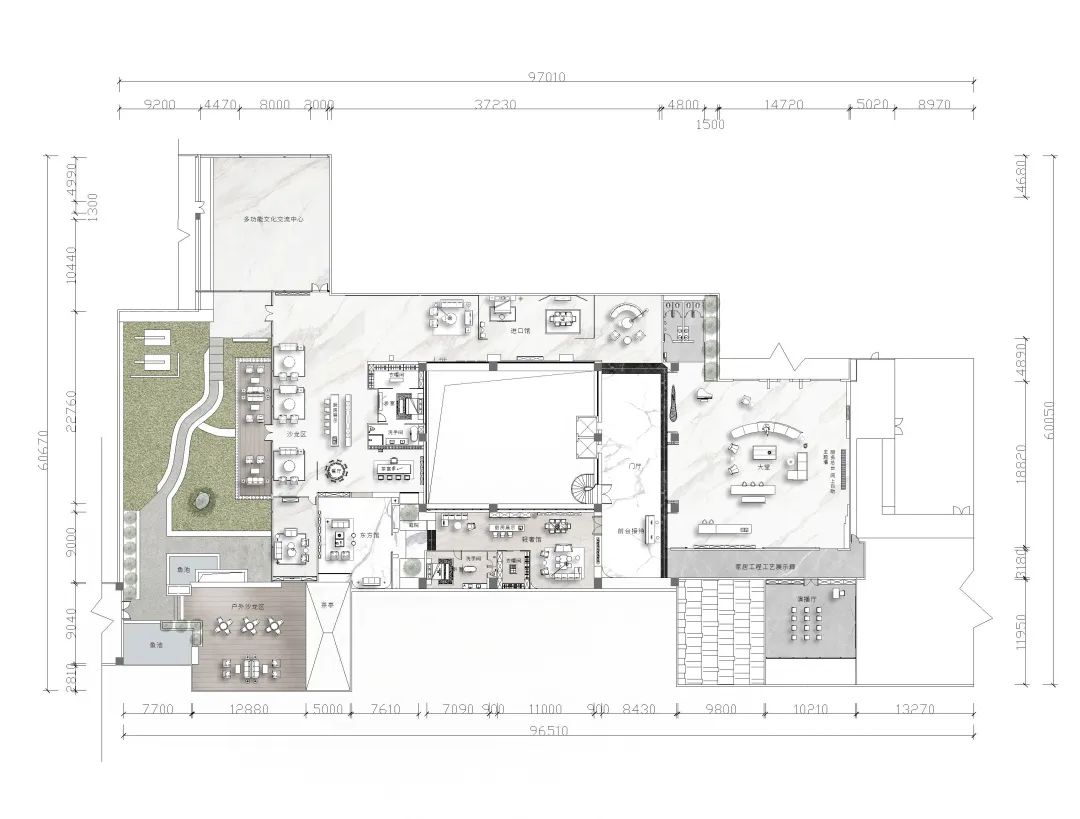
▲平面布置图/Floor plan
此项目的建立旨在为桂林市民及业内设计师提供一个全方位解决家居设计及选购家居建材和家具用品于一体的家居美学体验中心。是引导采购及家居用品潮流风向的一个展示交流平台。
项目名称 /桂林青禾美邦家居美学体验中心
项目地址 /秀峰区翠竹路青禾美邦家居建材馆 5 层
项目类型 /商业空间
项目面积 /2000㎡
设计单位 /观止廊室内设计有限公司、斑马設計事务所
主设计师 /韦建
设计时间 /2020 年 4 月
竣工时间 /2020 年 7 月
所用建材及家居品牌
美克 ART/TOTO 洁具/博洛尼家居整体订制
A 家家居/东鹏陶瓷/伊丽莎白瓷砖 / 欧普照明
德国菲玛艺术涂料/德国玛堡软装
设计师简介 /About designer
韦 建
香港远大 观止廊室内设计有限公司 设计总监
斑马设计事务所 合伙人
中国设计 新桂系 创始人
中国建筑学会室内设计分会会员
国家注册职业设计师
深圳室内设计师协会会员
所获荣誉:
2007 中国室内最具创意奖
2008 亚太室内设计双年奖
2008 广州金羊奖中国十大室内设计师奖
2009 亚太中国风样板间奖
2009 中国室内设计西南区域住宅样板间铜奖
2009--2014 广州设计周金羊奖
2015 深圳设计周艾特奖
2014--2016 广州设计周金堂奖
2020 中国优秀古建筑保护--老宅新生奖
部分作品:
北京 GBD 北花园艺术特区一期
北京万科城市花园
湖南永州柳子大酒店
桂林东江园林高尔夫练习场
虞山集雅园博物馆
上岛咖啡威尼士 SPA 桑拿中心
南宁绿都 GO 时尚购物中心
南宁绿都国际酒店
创酷城市艺术酒店
柳州兆安地产现代城酒店
柳州天龙大酒店
漓水人家景区
桂林 26 度酒店
阳朔芭提雅酒店
阳朔云舞度假酒店
阳朔泊艾养生酒店
龙胜云智慧温泉酒店
桂林国税局
桂林工商银行
桂林日报社传媒中心大楼
多年来韦建先生带领他的团队致力于研究和服务百数个酒店及民宿项目,在业界获得一致好评,多家民宿也因此迅速成为网红店。
关于我们 /About us
联合创始人:韦建(右)、肖伟(中)、农滨瑜(左)
公司简介 /Company profile
斑马设计事务所,成立于 2017 年。组建以来,我们一直秉承着“以原创设计为驱动力,打造更具有价值的先锋设计”为设计理念,且与国际设计潮流接轨,不断的探索未来设计的可能性。
斑马设计事务所是不断力求创新和突破的团队,通过近几年来的运营和所做的案例,已经助力多家企业和商业空间实现更好的商业价值!我们未来将以更全面的设计方式服务于空间所带来的环境、园林、居住及商业项目范畴的所需企划,与人文理念结合,打造具有代表性的设计产品。
Zebra design, founded in 2017. Since its establishment, we have been adhering to the design concept of "creating more valuable pioneer design driven by original design", and in line with the international design trend, and constantly explore the possibility of future design. Zebra design firm is constantly striving for innovation and breakthrough team, through the last few years of operation and do the case, has helped a number of enterprises and commercial space to achieve better commercial value! In the future, we will use a more comprehensive design approach to serve the needs of the environment, landscape, residential and commercial projects brought by the space, and combine with the humanistic philosophy to create representative design products.
所获荣誉/Received the honor
2020 年度第十一届 IDOL 锋范奖 八个作品入围获奖
2019 年度金堂奖(商业空间)杰出作品
2019 年度金堂奖(餐饮空间)杰出作品
2019 年度艾特奖(餐饮空间)优秀作品
2019 年度中国设计【新桂系】设计大奖赛 商业空间组 金奖
2019 年度中国设计【新桂系】设计大奖赛 商业空间组 银奖
2019 年度中国设计【新桂系】设计大奖赛 商业空间组 铜奖
2019 年度中国设计【新桂系】设计大奖赛 软装设计组 金奖
2019 年度中国设计【新桂系】设计大奖赛 软装设计组 铜奖
2019 年度中国设计【新桂系】设计大奖赛 家居空间组 银奖
2018 年度金堂奖(办公空间)优秀作品
2018 年度中国设计【新桂系】设计大奖赛 办公空间组 银奖
2018 年度中国设计【新桂系】设计大奖赛 酒店空间组 银奖
2018 年度广西第九届 IDOL 锋范奖 办公实景类铜奖
13517833304 肖先生
18977323007 农女士
地址:桂林市秀峰区红岭路 20 号 17 栋(原空压机厂内)
客服
消息
收藏
下载
最近

























