查看完整案例


收藏

下载
美妙的事物从来没有绝对,包容与和谐才是艺术的本质,就如同莫奈的作画手法,光、影与色彩的分布、重叠、融混,让画作在洒脱中掺着温柔,自由的状态中又能体会到梦幻感。我们以莫奈画作为灵感,运用光与色的结合,为居室挥洒舒缓与治愈!
//Project information 项目信息
项目地址丨Location:壹号半岛
项目面积丨Square meters:160㎡
户型丨House type:四室两厅
风格丨style:现代风格
设计团队丨Design:麟戈设计
主案设计师丨designer:王盈盈
//ABOUT THE OWNER 关于屋主
本案家庭成员为“2+2”模式构成,温柔大方的女主人,热爱生活的男主人以及他们一对可爱的儿女。男主人喜爱摄影,有自己独特的艺术审美,对家的设计极为重视。设计原稿方案是中央美术学院执笔设计,来回修改了十几稿才确定设计稿。我们团队接手合作之初,屋主只有一个诉求,就是不希望我们改动设计方案,尽快施工。但是,经过我们一次次与男主人接触,了解到他不同的想法结合我们自身的专业,最终还是对之前的设计稿做出了调整。
男主人喜欢房屋充满色彩,于是我们把色彩放进了他的家里。色彩是一种情感语言,没有不好的色彩,只有不好的搭配,更没有所谓的红配绿丑的哭的说法,不过在于用色的比例和饱和度,而用色环境一定要干净。设计师盈盈恰是一个喜欢色彩的设计师,她说:色彩总能给我们带来生活能量,绚丽而张扬充满着自信,我们利⽤我们对⾊彩的视觉感受,来创造富有个人特点,层次、秩序与趣味的环境,当我们走进这个家里一看就知道是谁的房子,一看就有主人的味道。
//Foor Plan 户型平面图
原始平面图▲
改造后平面图▲
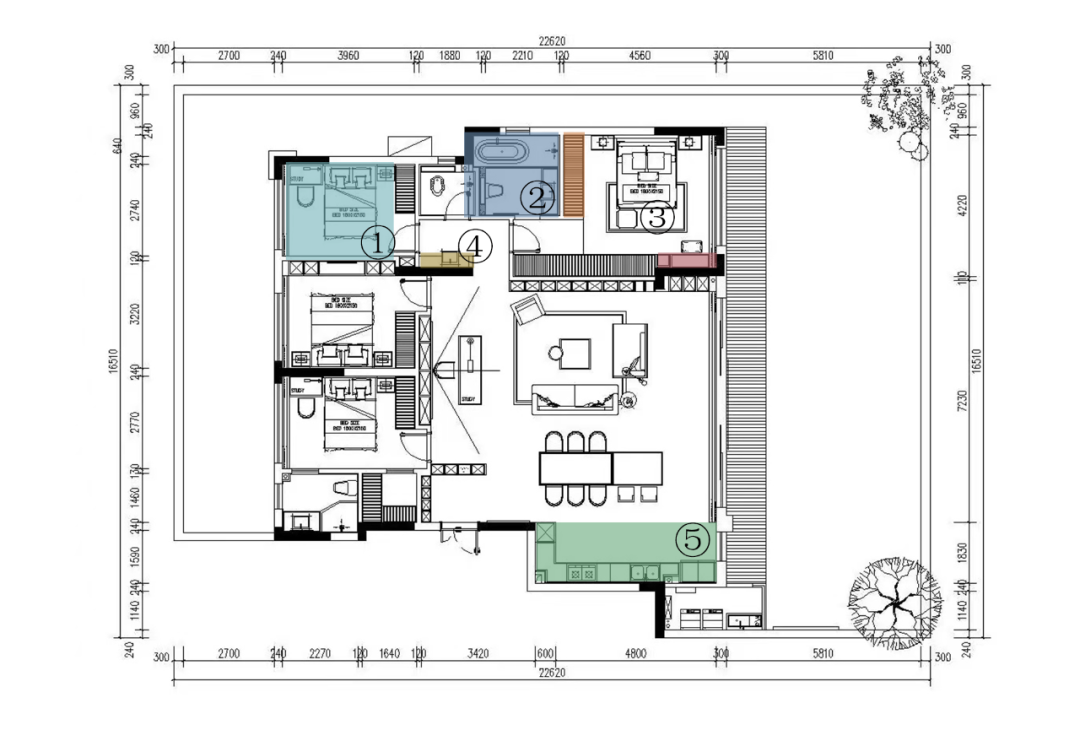
//Flat upgrade 平面改造
①次卧:为了让孩子有独立的空间完成写作,我们改变原有床的方向,拓宽使用空间并增设书桌以及方头柜储物空间。
②主卫:在原有设计中,屋主需站于浴缸内洗澡,为了规避使用的不方便,我们增加干湿分区,并增加花洒、独立的镜柜,让功能更加完善、合理。
③主卧:为满足屋主收纳的需求,我们增设大量的储物空间,同时将原本背光的梳妆台改到窗户边,让屋主使用更加舒心。
④过道:最大限度地利用过道空间,增设隐藏式及半隐藏式储物柜,便于屋主储藏雨伞、口罩、快递等物品。
⑤厨房:根据屋主习惯调整功能布局,将原本封闭的空间改为开放式厨房,让烹饪、用餐、休闲放松的空间更为敞阔。
//STYLE POSITIONING 风格定位
简单的,便是最接近事物本质的,简单的事物,带给我们的是灵魂的充盈。家的格调或许也是如此,极简风格之所以在当下大行其道,在于它能用最精简的设计,构筑出最有张力的空间。
//COLOR ANALYSIS 色彩分析
简约大气的黑白灰为基调,配以雾霾蓝和抹茶色,呈现出递进式铺展,营造出丰富的层次,香槟金作为点缀,提升空间的品质感。
//项目背景
生活如同艺术,应容纳千百种可能!我们依据空间的特性、居者的喜好,以简约理念为源点,师法莫奈作画精髓,取光与色的生动效果,赋予家更多流动的、温暖的美。简约大气的黑白灰配以雾霾蓝和抹茶色,呈现出递进式铺展,营造出丰富的层次,同时多角度引入自然光源以及精细的灯光布局,将光、色艺术进行升华,塑造温润而柔和的生活空间。
#
Living Room 客餐厅---印象色彩
斑斓与质感交织的艺术
客厅入口改造前
客厅入口改造后
▲客厅入口以黑白灰为基调,稳重但不沉重,演绎业主品味非凡的生活品质。为了生活的便捷,设计师特增加储物柜,开放式与半开放式设计的结合,让包包、钥匙、快递等生活物品有收有藏,且让装饰、收纳兼而得之。
客厅改造前
客厅效果图
▲空间的美感在于色彩的交错,光源的点缀以及材质的交融。设计师以“视觉混合”的笔触绘制空间的色彩和氛围,深浅、冷暖色交汇的视觉下,客厅犹如时尚伸展台,拥有各式的艺术发挥,让人仿佛跌入莫奈画作的异度空间。那缭绕的光晕,微妙的家具质感,延伸感极强的布局,扩大视觉感官的同时,也让生活情景多样化。
深色地面之上,铺设材质极为柔软的皮质与布艺沙发,素雅不失高贵,优雅不失温情。时尚的摆饰、艳丽的墙饰以及一整面深灰色书架墙,创造了空间的艺术性,在光的变幻中融合成整体的空间感觉,并呈现活力、沉稳、舒缓等不同氛围感受。
在莫奈眼中,通过阳光与色彩的补给,一切才看起来更为生动。超宽度落地窗,打破固有的内外区隔,营造能与自然交融的空间,引入自然光,让整个室内充满了阳光的气息。据屋主习惯调整功能布局,将原本封闭的空间改为开放式厨房,使得厨房与客厅融为一体,让空间价值实现更大化,在不同分区的顺畅中流转,自然的气韵自由穿梭,释放美感与层次。
每当欣赏自然光跳动在空间中,游走在心灵之上时,才会懂得,所谓诗意的栖居其实就是内心的平静。厨房与吧台设计释放出自然的景致,翠绿色纹理石材墙面与翠绿沙发相映,如同莫奈油画,乍看似池塘中一片片睡莲。岩板茶几、条纹地毯、沙发在空间之中糅杂成景,传达温润、温暖的空间感受。
Master Bedroom 主卧---馨光漫旅
淡雅沉稳的气质
主卧改造前
主卧效果图
卧室选用沉静的色调,注重功能和空间组织,崇尚大气低奢的构成工艺,造型简洁,不同层次的灰色、白色相互搭配,点缀绿调缓解视觉疲劳,营造出绅士雅致氛围。贴心增加储物空间让屋主更好的收纳物品,同时将原本背光的梳妆台改到窗户边,让屋主使用更加舒心。通透感与自然感交融的整体布局,浅色系的运用从地板延伸至天花板,再加入线性灯带,带来高级而优雅的艺术空间感。
大面宽窗台与室外景观进行了巧妙的结合,让空间变得更为个性化,窗边嵌入线性吊灯,让空间变得轻盈而富质感。低调内敛的颜色,给人一种平静柔和的舒适感,演绎了对现代简约的极致追求,含蓄又不乏变化的肌理,淡雅中不乏沉稳的气质,自然间又映射出品质与格调,给人以舒适放松的视觉感受。
我们改变原有床的方向,预留出多的书写空间,让孩子有独立的空间完成写作,且有自己的方头柜储物空间。绿色背景墙与橙色座椅、红色复古床头柜摆饰,相互衬托出一种静谧而又随性的家居生活,使得整个空间高贵典雅,质感满分,更能让人眼球一亮。
卫浴空间增加干湿分区,增加花洒,屋主沐浴不用再站在浴缸里,一改原本不方便洗浴功能。独立的镜柜,让功能更加完善。卫浴空间大胆运用石纹墙体,通过光线的渲染和黑、白色彩的搭配,营造出独具艺术感的空间视觉。
Children”s Bedroom 儿童房---童趣弥漫
美学与光学的熏陶
原生木色床体、纯净羽白窗帘、柔和云粉地毯等“轻”色调家具设置儿童空间,打造舒适、自然、而不失雅致的空间氛围,让设计回归生活的本质;再者,嵌入大胆、活力且极具自然气息的壁画,形成强烈的视觉对比,悄然宣誓着活泼、自由的个性。
阳光是儿童房的主角之一,大面积开窗设计及室外绿植的种植,有效调节光线、创造柔和的光影表情,当阳光洒落于室内,孩子在光影的嬉戏中,一切都显得生机勃勃。秋千的设计,让房间不仅是睡觉休息的地方,而是一个小小的儿童乐园,更是自己随心所欲的方圆天地。
# Secret Garden 秘密花园
旖旎梦境满庭绿意
莫奈印象是自然之美的永恒见证,记录着空间恍惚间带给我们的惊鸿一瞥。在庭院的设计上,师法印象派画家莫奈笔触,以治愈绿为主色调,融入暖色调户外家具,再藉由艺术线条围边,使得空间变成一幅灵动山水画,巧妙搭配茶具、花束、盆景等元素,捕捉庭院静置之美,伴随窗外夏蝉悠扬,表现对大自然的颂赞。
庭院另一隅,藤椅、木桌、木地板,仿佛天然的具有治愈系因子,为整体家居增添一份神秘和谐。禅意盆景独特结构,折射出水波状光氛,极大限度丰富了感官及心灵的体验,静坐于此,居者只需要用自己喜欢的任何姿态在空间中存在着,不刻意寻求什么,只需听一听被嘈杂世界掩盖已久的心跳声。
师法莫奈,为居者营造一个充满艺术氛围的生活空间,让光和色打破既定的规则,更好的融入居住空间,从光与色的相互关系中发现前人从未发现的艺术现象,给人一种轻快、自然的感觉,给整个空间增添艺术趣味,彰显主人对质感与审美的理想追求。
·
·
座机:023-67036763
手机:15823316607
地址:重庆市渝北区湖彩路 116 号约克郡汀兰 3 栋 16 层
e n d
客服
消息
收藏
下载
最近

























