查看完整案例


收藏

下载
大隐居朝市,小隐入丘樊。丘樊终究过于冷凄,朝市又未免过于喧嚣。而半隐,不离市不入丘,刻画日常与自然的平衡,让时间如诗,赋予生活雅致细腻,一切皆恰!
//PROJECTINFOMATION 项目信息
项目地址丨Location:重庆金科天宸
项目面积丨Square meters:360㎡
户型丨House type:别墅
风格丨style:新中式风格
设计团队丨Design:麟戈设计
主案设计师丨designer:叶萱
执行设计师丨Executive designer:罗雅维
//ABOUT THE OWNER 关于屋主
本案居住的是幸福的三口之家,屋主是年逾不惑的企业家,穿着朴素,待人和善,喜欢东方美学,尤其喜欢实木家具,屋主希望自己的家可以在简洁中表达宁谥的气氛和绵延亘久的诗意。主案设计师深度理解和洞察屋主需求,用最简单的基调让新中式风格一览无遗,融入自然野趣元素,塑造宁静雅致氛围,让屋主一家在城市的喧闹嘈杂中,享受独属的“自然化”场景,寄托着归心的美好。
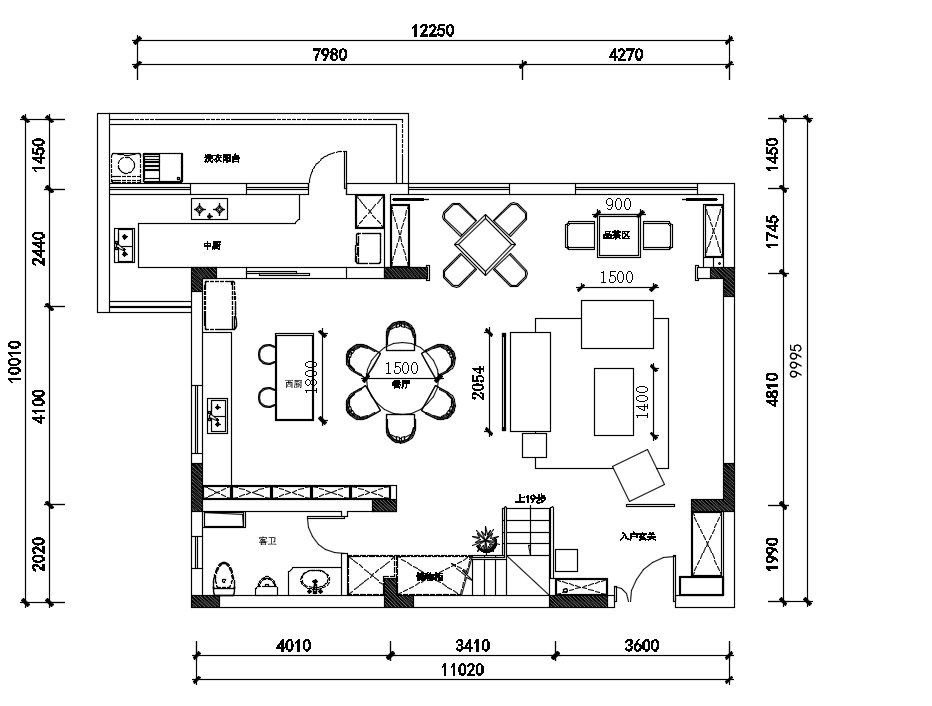
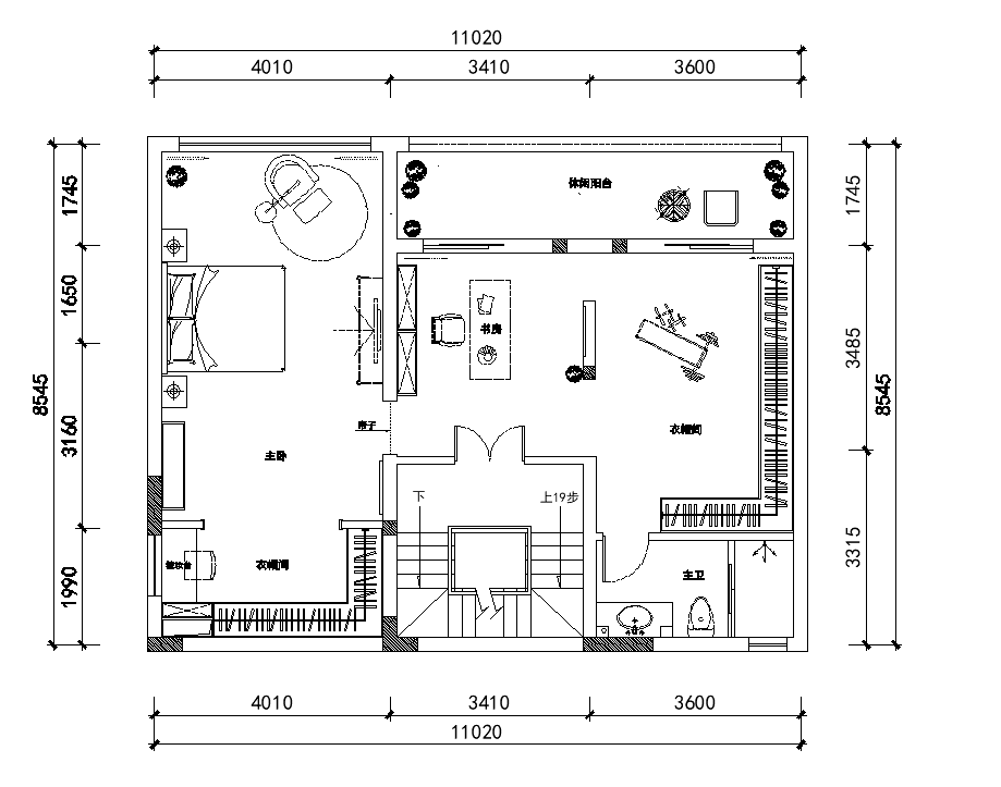
//Foor Plan 户型平面图
一楼平面图
二楼平面图
三楼平面图
space highlights 空间亮点
1、考虑避免穿堂风,我们在入户处设立实木屏风,除了满足屋主日常生活需求及审美需求之外,更与中国人含蓄婉约的心理不谋而合。
2、由于室内储存空间充足,所以我们将楼梯间的储藏柜撤离,并嵌入植物小吊灯,打造微景观视觉,增加空间的趣味性。
3、屋主不喜欢沙发后腾空的状态,希望能设立收纳柜代替墙体,但考虑到空间的通透性及视觉的延展性,我们最终置入丝绸屏风,形成半遮半透的效果。
4、儿子房的卧室和衣帽间完全打通,为避免空间看起来过于空阔,同时也为了增加私密性,我们设立了山纹屏风,优化视觉体验,同时也能遮挡插座盒。
5、书房中间位置有柱子,未考虑空间的美观性与功能的体块感,所以我们将柱子加出一面墙,将原有的空间弊端直接弱化,也体现出一往无前,回旋往返的意境。
//STYLE POSITIONING 风格定位
新中式风格,从东方美学的居住本源出发,抛下传统、刻板的形式“美”标签,采用简约纯粹的线条语言,去塑造优雅的人居空间,一方新韵,一寸清雅,还原生活的本真,镌写“诗风半隐,怀雅而居”的生活愿景蓝图。
//COLOR ANALYSIS 色彩分析
整个空间围绕舒适和高雅的中国风着色,在浅淡的素白背景之下,木红色、鱼尾灰、草绿色、金棕色等色调点缀,将空间细致的轮廓逐渐显现,昭示着一种宁静闲适的半隐时光。
//PROJECT BACKGROUND 项目背景
我们认为“设计不能是单一的复刻,而是需要在理性帷幄中凝练人文的蕴涵。”所以,设计师以睿智精确的创造精神和冲破刻板印象的力量,采撷现代肌理,塑造东方礼序,成功地实现了现代中式的半隐意境。
01 / 公共空间
以诗入境,不失芳华
//一楼客厅
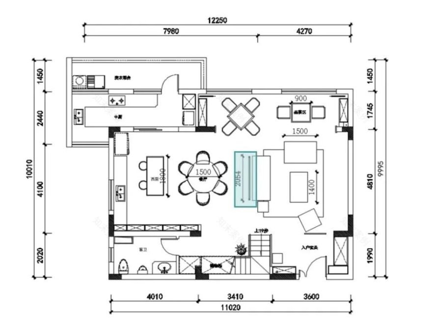
白居易诗言“偶得幽闲境,遂忘尘俗心”,若生活中有一处景观也亦然,润物细无声的悠闲境,身处其中,人生的韵律与节奏充满诗意,何其惬意!在客厅的场域里,设计师秉持“承袭人文之间,创新意想之余”理念,以古典东方美学为依托,将生活方式、文化传承融于空间,摹刻出城市精英心驰神往的半隐生活场景,让屋主在诗意空间所带来的感动和情绪中感受幸福。
推门而入的刹那,客厅辽阔高远的景象,让人抛却烦恼诸事,也寓意着光照福地。一幅远山黛影的自然纹理屏风,彰显着浓厚的东方人文气息。整个客厅空间用布艺、皮革、实木等不同材质拼凑重组而成,看似复杂的线条与材质将独有的美学语言,却形成空间秩序与寂静,荡涤人心。
古韵悠扬的抱枕、庄重的器物、艺术品般的木椅、镂空屏风潜藏了无尽的诗意,同时,将高雅的素白贯穿整个空间,仿若空灵的笔触,渐渐渲染开纯粹、宁和的空间氛围。透窗而过的浓烈阳光带来视觉的享受,让人在自然的光线中,忙碌、疲惫悄然卸下。
//一楼餐厅
在无所拘束的畅然里,品人间烟火,那才是柴米油盐酱醋茶的幸福日常。餐厅利用山水之形的结构之美,巧妙地将中式韵味和现代感重新组合,起伏有序的艺术灯具,柔和了层次感,弧形实木座椅如层峦叠嶂,赋予空间低调而独特的内涵。
巧妙点缀盛放的绿植,将空间旋律舒展,落地窗倾泻一片光亮,让空间内极致的净承接着曼妙。厨房与餐厅之间呈开放之姿,遥遥相望,巧妙的功能过渡将人引入到另一番情境,展现艺术与生活的边界。厨房全实木收纳柜,素雅内敛,具有不错的实用性的同时,无声的对话东方美学精神。
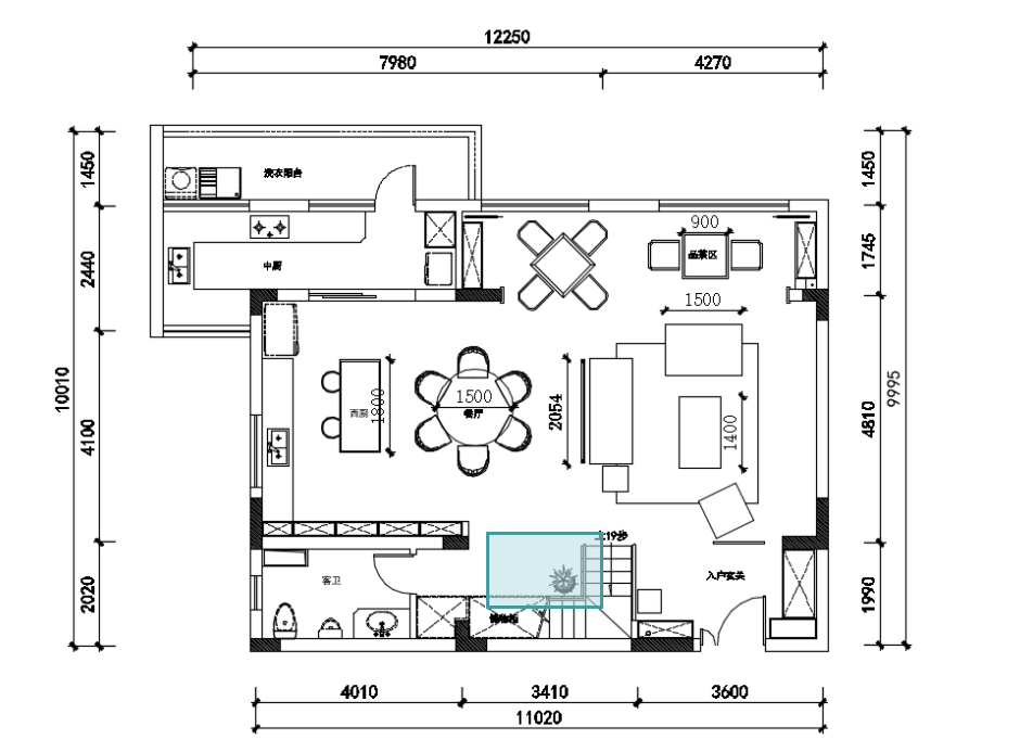
//一楼楼梯
(楼梯角施工前)
(楼梯施工后)
在生活日常与诗意雅致间,我们选取一楼楼梯空间,构建一方心悦自然的微景观胜景。我们以清新的湖蓝色为背景,嵌入自然的山,茂盛的树,极简的等,用景观手法,重现中国园林之美与景观结构,重塑东方传统人居文化。
02/ 寝居空间
空盈纯粹,心境宁远
//二楼儿子房
(儿子房施工前)儿子房雅奢兼备,入室即见镂空山景屏风,非常巧妙地创造了居室的私密性,同时为生活注入一丝宁静与灵韵。室内不同材质丰富细节,随处可见实木家具,在一室光影的映衬下,娓娓地述说着东方故事。柔雅的配色流淌出涓涓禅意,在无声中渲染雅致格调。
(儿子房施工后)
在古韵悠然的空间基调中,悬挂一副金色创意画作,使视觉体验更为灵动,呈现出富有品位的空间基调。衣帽间与卧室区域相连,使得空间更显敞阔,入室处添设实木躺椅,风格淡雅自然,呈现出儒雅、素静之美,映射出大宅该有的气度与韵味。
//二楼次卧
(次卧施工后)灵动而不失沉稳,优雅且富含生趣。次卧以鱼尾灰及白色为背景色调,同时通过简单朴素的风格与佛像物件,来拉近人与空间的距离。皮质软包给人温馨沉稳的感受,点缀的国风画作则带来优雅的灵动感,两种元素相互中和,如同山水相融,满是浓浓的东方格调。
03/ 人文空间
恬淡中和,翰墨飘香
//三楼主卧
(主卧施工后)直观的艺术语言为载体,让室内的每一个细节,都能看到国风的影子。金属材质灯具的冷静坚毅,布艺、实木的细腻柔美,冷暖相融、动静兼具,自然的动感凝聚在一屋之间。背景墙的花草纹理,腾飞的仙鹤、浅浅的水墨意境,创造悠然于世俗之外的惬意,令人身心放松。
(主卧施工后)在恬淡虚无的色彩韵律中,展示自然与生活的内在节奏,实木桌台与创意盆景,散发出古朴气息,温润端雅,蝴蝶造型灯饰,让空间更显轻盈,让屋主感受归家便是跳脱出纷扰,在时间维序中得到最纯粹、归真的精神圣地。
//三楼书房
古往今来,但凡功成名就之人,都有他自己的独特品味,一本书、一杯茶、一段故事......何其珍贵、何其雅致。在书房的设计上,我们以现代艺术诠释东方神韵,全实木家具运用,营造出一种尊贵沉稳又不失风雅的生活气息。
(书房施工后)
巧妙嵌入实木置物架、写意国画及禅意盆景,自然的空间表达着高雅与追求,一种芬芳袭入,美好的景致和谐随意倾诉。室内空间以“雅”与“净”为整体风格,不用过分的雕琢与修饰,也无需太多华丽与色彩,用纯粹的设计带来感官的震撼,在恬静书房,享受每一刻时光,领略不一样的知识海洋。
//三楼楼梯间
(楼梯角施工前)
(楼梯角施工后)
“花正开时月正明,花如罗绮月如银。溶溶月里花千朵,灿灿花前月一轮。”二楼楼梯间以框景手法,创造圆月景观,为生活注入一丝宁静与灵韵。在光影的照映下,让人身心得自在之欢畅,幽情远樊笼之束缚。
古老的东方美学,经过千百年的锤炼才酝酿出独特的美学艺术,时代在变,人的审美也在变,我们深刻解读屋主的审美和生活需求,用现代手法打造富有传统韵味的新中式艺术空间,让屋主实现不离市不入丘的诗意半隐生活!
·
·
麟戈空间设计
座机:023-67036763
手机:15823316607
地址:重庆市渝北区湖彩路 116 号约克郡汀兰 3 栋 16 层
e n d
客服
消息
收藏
下载
最近












































