查看完整案例


收藏

下载
庄子说:“朴素而天下莫能与之争美”。诚然,大道至简,返璞归真,本来就是生活的最好存在,应该有的样子。也许千帆竞发、物换星移,但我们始终抱朴守拙、崇尚本真;当你成功卓越、掌声如潮的时候,也许更应该不忘初心、砥砺前行。云帆高挂是理想,船坚舵稳能远航。一套好的房屋整装设计,能给你提供舒适的生活空间,同时也是文化的载体、生活的学校、精神的家园。
//PROJECTINFOMATION 项目信息
项目地址丨Location:东原湖山樾
项目面积丨Square meters:530㎡
户型丨House type:别墅
风格丨style:现代简约
设计团队丨Design:麟戈设计
主案设计师丨designer:叶萱
//ABOUT THE OWNER 关于屋主
此案屋主是一个 90 后企业家,在设计师与屋主的交谈中,能明显感受到屋主对于简约、自然、朴素化生活的向往,朴素,才应当是一个人的灵魂底色,于是我们在设计中,更多考虑了屋主本身的独特气质与诉求,同时遵循“空间是对生活的构建,是对功能,情怀的认知,所有的结构都是美学的一部分,大美无形,不被定义的才是风格”的设计理念,为屋主量身定做专属他的融简约、自然、品质于一体的家庭生活空间。
//Foor Plan 户型平面图
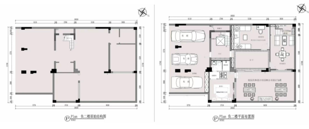
负二楼
负一楼
一楼
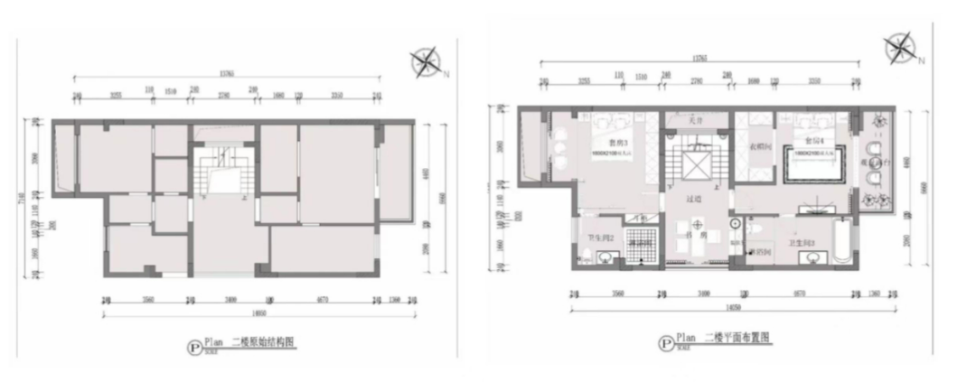
二楼
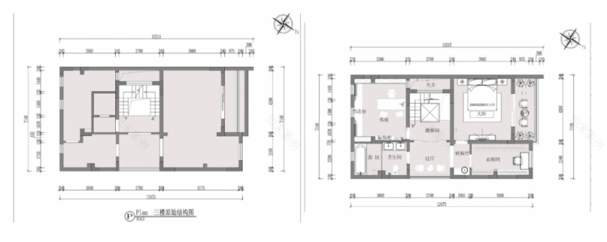
三楼
//Spacefunction plan 空间功能规划
本案原始户型为叠拼别墅,室内建筑面积达到 530㎡,结构为地下两层加地面三层空间,本次空间设计细节主要包括:
1. 负二楼设置了套房、影音厅、酒窖、多功能厅,茶余饭后或者久违的休息日,还可以和家人朋友看一场温馨的家庭电影。
2. 负一楼为多功能区,设置了中餐厅、西餐厅、老人房等,为屋主生活更添乐趣。
3. 一楼设置了客厅、次卧等,重点为客厅区域的空间处理和动线布局。
4. 二楼与三楼设置了儿童房、独立的书房及主卧,同时设立了独立的男女主人的衣帽间,从设计上改变生活,让设计来完善人的生活方式。
5. 重新梳理整个空间的动线、空间中使用的所有材质,同时在软装上偏现代简约,以质朴的原木风为主,回归生活最初的是纯粹。
//STYLE POSITIONING 风格定位
整体空间以现代简约风格的设计基调,简洁素雅、自然相融的空间设计,营造出一种朴素、本真的居住氛围感,让生活更加惬意、静极、雅极。
//COLOR ANALYSIS 色彩分析
屋主喜爱简约、自然、朴素化的生活模式,所以我们坚持“以人为本”的理念,以质朴的原木风为空间奠定了清新自然,朴素文雅的基调,点缀优雅的灰色、自然的木色与更具质感的纯洁白,进一步提升空间的温度,同时丰富了空间的层次,偶嵌曜黑的装点,明确了空间的棱角,为空间增添了一份硬朗,也更显时尚。
//PROJECT BACKGROUND 项目背景
家是安身之所,每一寸空间都值得用心设计。我们以屋主所向往的简、质、真生活为设计灵感,将极简主义与自然美学相融合,没有华丽的装饰与堆叠,将最纯粹的自我和情感释放其中,让屋主在回归自然的同时,也不负对生活的热忱。
清隽气质·澄净意趣
Mood in a simple space
&
一楼空间【楼梯间】
(楼梯间完工前现场图)
(楼梯间完工后现场图)
设计师在楼梯间空间设计上秉持“减法”的原则,简约清爽的木饰面奠定空间基调,赋居空间予 SPA 的情绪,让屋主进入家里,放下心绪,放空思绪,身心轻盈。
& 一楼空间【鞋帽间】
(鞋帽间完工前现场图)
(鞋帽间完工后现场图)
鞋帽间尺度宽阔,巧妙利用木质壁柜和艺术墙画来装饰空间,不仅满足收纳机能,更兼顾心灵的升华,创造仪式感归家体验,使得空间柔和富有韵味。
& 一楼空间【客厅】
(客厅完工前现场图)
(客厅完工后现场图)
客厅作为主要休息区,质朴的原木风色系调为基底,天花板用黑色的线条收边,使得整个空间看上去高端又大气,又不失清隽气质。大面积落地窗,使得整个客厅空间与外面的风景形成一体,让整个视野更加开阔、明亮。
(客厅完工后现场图)
黑色与奶咖色品质沙发拼接,搭配木色的墙面,点缀条纹地毯,呈现和谐统一的空间氛围,彰显个性生活态度。玻璃圆形茶几及曜黑色电视墙,为客厅添了道独特的景色,在素朴之上提升简奢感。
& 一楼空间【次卧】
(次卧完工前现场图)
(次卧完工后现场图)
次卧的设计力求简洁、干净,以自然木质的材料作为空间主轴,在理性的线条结构之下,融入自然肌理。采光是卧室的另一重要要素,双窗设计让室内采光极佳,也能眺望整个城市远景。
博观雅致·格调谦和
Modest space style
& 二楼空间【次卧】
二楼次卧的收纳功能更为显著,设计师以简单的材料凸显细节,以低调细腻木色,中和空间原木色及白色基调的温度,干净的纱帘,透过明亮的日光,通通将平凡的美感投射于简朴干净的环境中,让人倍感清爽自由。& 二楼空间【儿童房】
(儿童房完工前现场图)
(儿童房完工后现场图)
儿童房运用不同肌理材质丰富空间的层次感,同时融入光源自然元素,让孩子在步入空间时感受到艺术与自然品质的和谐共存。空间的铺叙看似平淡素雅,却将生活的所有降回本质,映射出孩子日常的充实和情感的丰富。
& 三楼空间【主卧】
(主卧完工前现场图)
主卧承续木质和原木风基调,创造细腻的情境,简洁大床与背景干练的线条上下呼应,线与面的和谐共生,给素雅的空间增添一份现代韵律感。选用格纹元素寝具,展现出视觉的节奏感,让舒缓平和的气质随风氤氲。
&
三楼空间【书房】
(书房完工后现场图)
自由生长的绿植肆意伸展,加之创意花瓶美陈,配合室内的大面积的木质材料家具,描摹出“小森林”式的清雅闲适;让有限的空间,开辟无限的可能,品茶、下棋、阅书、静心,在这方天地,只需享受生活,静静的做自己便好。
淘尽铅华·大美朴素
minimalist art style
& 负一楼空间【老人房】
(老人房完工前现场图)
(老人房完工后现场图)
深色软包弥补空间空白,一整面木质墙体,素雅之上再添一抹简奢。当长辈坐卧其中,即便屋舍不言不语,也能使人感受到空间与自然的对话。灯光与光影的互动,让整个空间充满韵味,更引人深思与自然交互延展的联结意义。
& 负一楼空间【西餐厅】
(西餐厅完工前现场图)
(西餐厅完工后现场图)
西餐厅设置木质藏酒柜,明暗错落的灯光效果在反复叠加下得到强化,为空间注入氛围感与故事性。长式餐桌、木质靠椅,呈现自然主义的质朴亲和,整个空间没有繁杂的造型,一些简单的酒具在空间里邂逅无上生活。
& 负一楼空间【中餐厅】
(中餐厅完工后现场图)
中餐厅大面积的木色及留白,一墙大理石自然纹理如泉瀑泻而下,于素朴中娓娓自然的欣喜与活力。圆桌及花艺颇具野趣,不免有“久在樊笼里,复得返自然”之兴叹。于此迎着日光,一家人一起品尝一道道暖心料理,让烟火味溢满整个空间。
& 负二楼空间【客卧】
(客卧完工前现场图)
(客卧完工后现场图)
客卧复古感软包的柔软及包裹性,毫不费力地包容客人的疲惫感。以白色天花板、原木风背景墙与浅灰窗帘来温柔调和,使得卧室环境氛围轻松活泼不沉闷,创造出赋有自然气息却又饱含现代肌理的清雅风格。
我们以一种平和的姿态,为空间简、质、真的格调气场,抛开一切虚而不实的装饰,保留最本真的空间属性,让屋主洗尽铅华之后,遇见生活的本真,在回归自然的同时,也不负对生活的热忱。
·
·
麟戈空间设计
座机:023-67036763
手机:15823316607
地址:重庆市渝北区湖彩路 116 号约克郡汀兰 3 栋 16 层
e n d
客服
消息
收藏
下载
最近














































