查看完整案例


收藏

下载
当我们称赞一把椅子或是一幢房子美时,我们其实是在说,我们喜欢这把椅子或这幢房子向我们暗示出来的那种生活方式。——阿兰·德波顿//PROJECT INFORMATION 项目信息项目地址丨Location:重庆来福士项目面积丨Square meters:350㎡户型丨House type:四室两厅风格丨Style:法式轻奢设计团队丨Design:麟戈设计主案设计师丨Designer:王盈盈//ABOUTTHEOWNER 关于屋主这是一个温暖有爱的大家庭,屋主性格风趣、豪爽,喜欢饮茶品酒。男女主人通常会和他们儿子,可爱的孙子、孙女,闲暇时眺望江景,随境而安。对于房子,他们不追求过多繁杂的装饰,更多在于能记录生活的细腻,能装载幸福的点滴。设计师盈盈对场地进行艺术化重构,将原本狭长封闭的储蓄间,设计为开放的鞋帽间,视觉上增大了入户的空间尺度感,但这个重构让开放式的鞋柜在侧墙形成了一个 90 度阳角,设计师以阳角为基础,覆盖一层弧形的造型墙,丰富了墙面的色彩空间层次,将痛点变为亮点,演绎现代美学多样性。//FLOOR PLAN 户型平面图
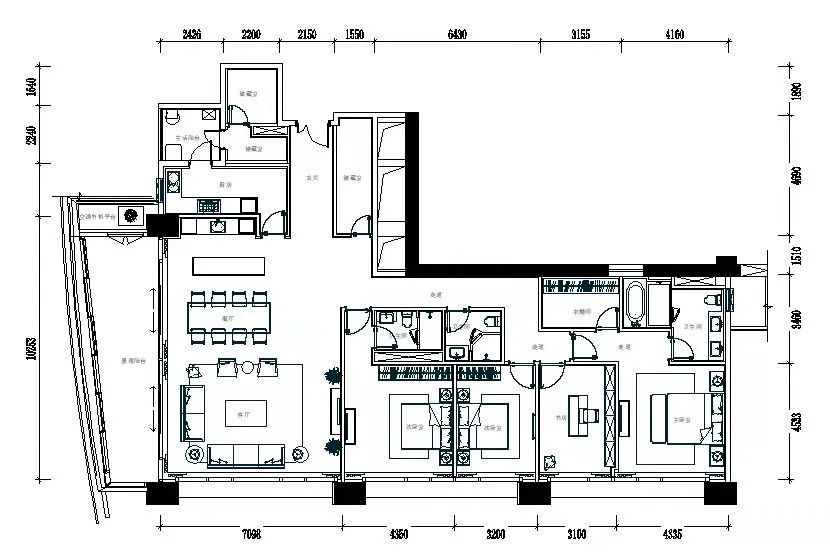
原始平面图
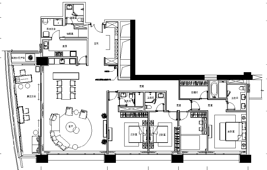
平面布置图▲
素有“一半市井,一半摩登”的重庆,承载着山城的动与静,古有巴蜀,亦是文化的融汇之地,自然与人文的脉络,不断演进,保存了自古至今的精致温和。其兼容、乐观、宁静的基因,几经沉淀,在当代中西方文化的浸润之下,如同将涓涓细流般的认同感汇入文化自信的源流之中,形成独特的重庆生活美学,多元的潮流文化在此处碰撞,并给设计师带来创作新趣。
//DESIGN PROPOSITION 设计主张
本案位于核心生活圈,坐拥优质的城市界面和山水文脉,恰是这座城市一面繁华、一面静谧的临界点。在这里,设计师基于对现代生活的再创造,以重庆精神“扬帆远航”为寓意,利用家居空间和装修材料,以独创性、个性化思想营造出一个生态、艺术、美学相结合的人居空间。
//STYLE POSITIONING 风格定位
【法式轻奢】
利用家居空间和装修材料,以独创性、个性化思想为指导而打造出来的独具个性的家居环境。
//COLOR ANALYSIS 色彩分析
色调上温和干净,黄色的适量点缀使得空间形与色的关系持续、和谐、完整,一种更纯粹的设计和生活方式被唤醒。
#SHOES AND HATS ROOM 鞋帽间
改造前▲
艺术为空间注入灵魂,在于人在空间静态中感受它的温度。在玄关处,设计师对空间进行解构重组,使原本紧凑的布局变得时尚有趣。精心挑选的小提琴,以水晶质感尽物态之美的同时,也是梦想和自由的化身。
#LIVING ROOM 客厅
改造前▲
布局上突出了轴线的对称,恢宏的气势和豪华舒适的居住空间,空间高贵典雅,细节处理上运用了雕花、线条,制作工艺精细考究。法式风格点缀在自然中,艺术墙布、大理石、玫瑰金不锈钢的运用使色彩与内在产生了联系,设计师追求的不是简简单单的协调而是冲突之美。
在设计上讲求心灵的自然回归感,给人一种扑面而来的浓郁气息,开放式的空间结构、随处可见雕刻精细的家具…所有的一切从整体上营造出一种浪漫之气,在任何一个角落,都能体会到主人悠然自得的生活和阳光般明媚的心情。
艺术品是空间的眼,交错布局的摆件还原东西美学元素,以差异化重构人文精神,超越想象的极限,衍生出极具国际化的格调,成就山城人居的精致与美好。
#DINNING ROOM 餐厅
改造前
一半是归素底色,一半是隐逸奢华。烟火气的加入,完成了对精致浪漫生活的完整讲述,空间延续了完全开放与划区而定的起承转合,急促与舒缓,平铺与直叙,集空间气韵调节人对空间的感受,余烟氤氲,把酒当歌。
不同的功能区创造不同的对话语境,设计与音律在空间悄然转化,“精神”、“场景”与“时空”从此定格,大理石餐桌、皮质座椅的搭配弹奏人们最原始的心灵感受,纯白主色调的设计仿佛象征自由的灵魂与内心的向往,情绪的激荡在此空间被娓娓道来。
#NOUN 走廊
改造前
效果图
走廊通过不同光泽处理的饰面进行对比来柔化空间,置身宁谧华丽的偌大空间之中,其间不同的组合方式、不一的形状色泽,浓缩了重庆古城千百年的文化厚度。人游走在这方虚实相间的艺境中,从现实转入泛着旧时味道的空间,如梦如幻。
#MASTER BEDROOM 餐厅
改造前▲
效果图▲
灰色与白作为卧室的主色调,纯净中潜藏无限生机,正是法式美学强调的浪漫意境。木材质与不锈钢水波纹碰撞对话,轻重冷暖之间,悉心提炼别具一格的别样底蕴。
横平竖直的线条既融合了中国传统文化的韵味,又与法式风格相融,水晶灯饰的浪漫点缀,让人不禁沉浸其中,细细品味,激发出城市肌理与空间的联想。
#SON’S ROOM 儿子房
改造前▲
儿子房延续了整体空间的优雅质感,运用沉静简美、简洁有力的设计语言创造出一个独具厚度的舒适空间。以冷静的灰色为主色调,精致的线条与浪漫的雕花点缀,呈现一种直撩心底的优雅魔力。光线透过窗户充分融入室内,内敛兼不失稳重。
#SECONDBEDROOM 次卧
改造前▲
次卧的设计以典雅灰白为主基调,部品选择皆以质感上乘、创意满分的家具软饰为主,兼有山水意象的诗学涵义,素雅沉浸的空间氛围,开阔通透的空间设计,令思绪得以在其中自由徜徉。
#SANCTUM 书房
改造前▲
书房空间中,设计更多的是以人性化角度来作为设计的出发点,营造轻松、舒适的工作氛围,收纳与休闲空间被最大限度的挖据。
大景观落地窗,180°视界体验,从书房可以俯瞰城市景观,园景尽收眼底,远眺青山夕阳美景,视野极佳。
空间不仅承载着功能意义,也是传达艺术美学与生活方式的所在。正如林清玄所说:“真正的生活品质,是回到自我,清楚地衡量自己,而后追求最好的事物与生活。”构筑独属于居住者优雅的精神世界,在光阴里诠释岁月静好。
·
·
座机:023-67036763
手机:15823316607
地址:重庆市渝北区湖彩路 116 号约克郡汀兰 3 栋 16 层
e n d
客服
消息
收藏
下载
最近




































