查看完整案例


收藏

下载
居住空间是生活的容器
它,不一定是堂皇富丽的
也不应该是随意将就的,而是人生的趣味所在
是在契合自己的纬度里,追求内心细微的精神需求
美妙的事物从来没有绝对,包容与和谐才是艺术的本质
//PROJECTINFOMATION 项目信息
项目地址丨Location:恒大世纪城
项目面积丨Square meters:260㎡
项目类型丨Project type:七室两厅
户型丨House type:顶跃清水全案
风格丨style:现代轻奢混搭
设计团队丨Design:麟戈设计
主案设计师丨designer:叶萱
//ABOUTTHTOWNER 关于屋主
这个空间是契合屋主的气质和诉求而诞生的,我们与屋主的第一次见面就留下了深刻的印象。她是一个温婉且热情的女性,初见时身着一袭绿裙,一举一动都透露出从容、优雅的气质。在我们与屋主交谈中得知,她喜欢绿色元素及暖光色调,所以主卧的设计融入绿色元素,同时选用暖色调灯光,使得空间富有生机的同时又极具温馨感。
屋主喜欢家人相聚的氛围、喜欢交友、喜欢喝茶和打太极,我们将整体空间进行重新规划,既让空间有连接,又能增加空间内人与人之间的互动感。得空之时,屋主可与家人、友人相聚,喝茶、打太极,屋内欢声笑语,屋外阳光蝉鸣,一切都那么美好......
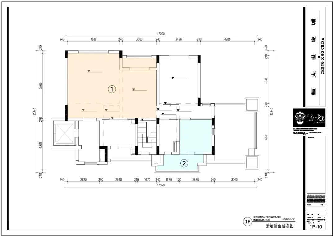
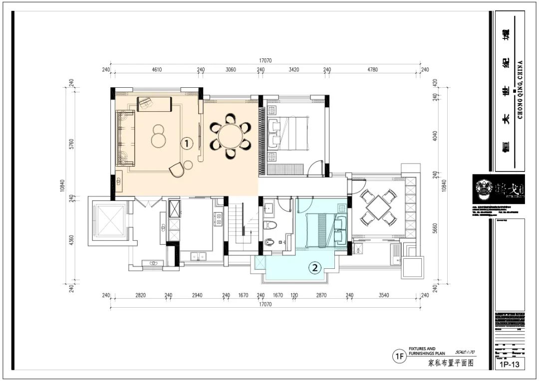
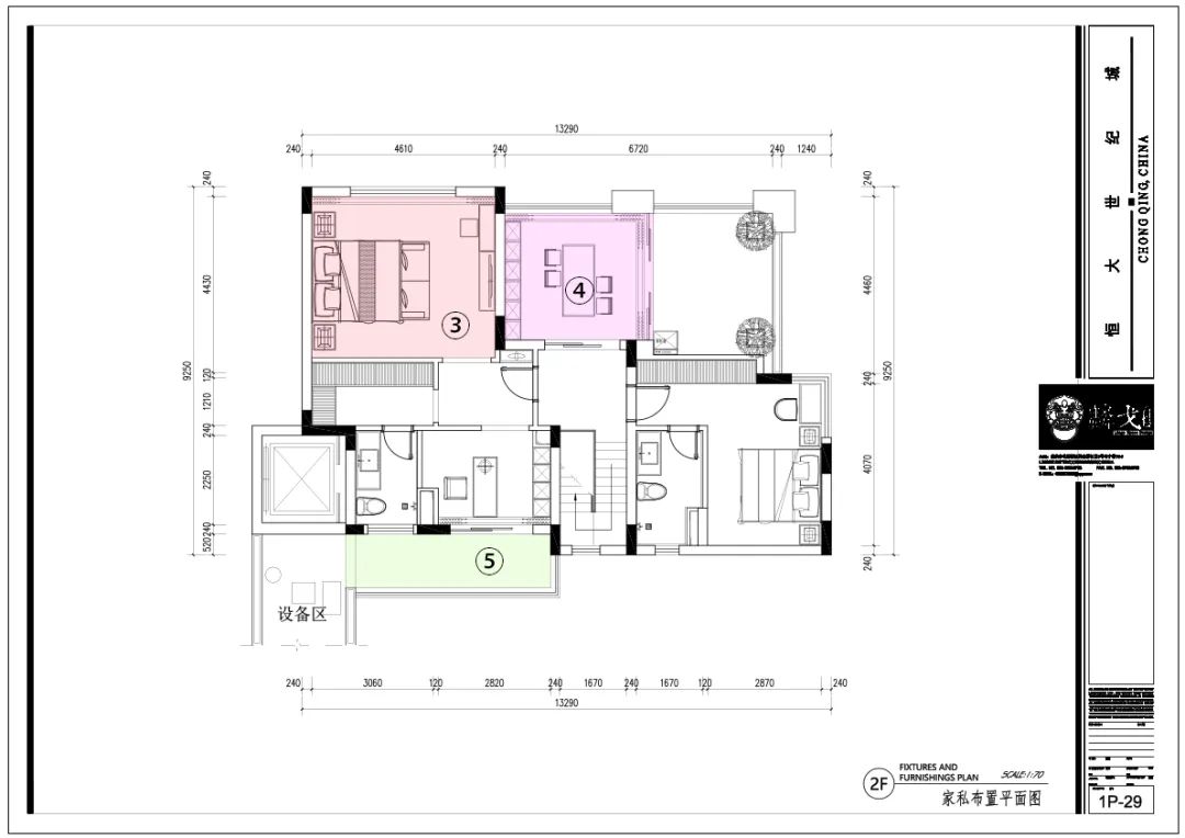
//FOORPLAN 户型平面图
一楼原始图▲
一楼平面图▲
二楼原始图▲
二楼平面图▲
//FLAT UPGRADE 平面改造
一、客餐厅:
1. 拆除不必要的露台挡墙,使整体空间扩大,户型更方正,完整。
2. 采用钢架电视墙,垂直于上方大梁,隐藏梁位的同时自带分区功能。
3. 客餐厅视觉未完全阻断,保持户型的通透感。
二、次卧:
一楼小卧室打通室外露台扩大使用空间,现场感受宽敞舒适。
三、主卧:
现浇二楼挑高为主卧,户型方正大气。
四、书房:
向外现浇部分过道设备区露台,使户型整体感更强,动线更方便适用。
五、茶室:
二楼大露台一分为二,搭建玻璃顶,为客户再添一功能区。
//STYLE POSITIONING 风格定位
充分考虑居者的喜好及审美,以现代轻奢混搭风格设计空间,摒弃了传统意义上的奢华,简化装饰,同时又给人时尚前卫、气质优雅且不失温馨舒适的感觉。
//COLOR ANALYSIS 色彩分析
整体空间以浅色为基底,铺设居者喜爱的典雅绿,丰富空间的层次感及视觉的跳动感,同时,点缀明亮黄、摩登橙色,将空间塑造成动感、摩登、禅意为一体的艺术视觉体验。
//PROJECT BACKGROUND 项目背景
透过以人为本的思考,我们尝试构建一个让居者心灵栖息的场所,将其喜好、生活习惯以及阅历沉淀所带来的新环境结合为一体,在传统、现代之间,缔造一个简华有度,亦奢亦雅的居所。以精致、随性、生机、典雅、艺术为空间精神,激发生活的诗意,挖掘心境无边无际的自由,让雅与奢共鸣,撩拨居者的生活时光。
精致×随性同频共鸣
一楼会客空间 / Living Room
客厅施工前
一楼客餐厅效果图
▲生活美学不是一味地追求“奢华”,而是从生活和细节中,去堆砌美学载体,营造出属于主人独有的空间气质。
为了给予居者更舒适的居住体验,于是在原本平面布局中,毅然打破架构、重组新生,将会客厅空间不必要的露台挡墙完全拆除,设立宽敞的落地窗吸纳室外自然之景,同时,建立出自玄关而入,即可四方而游的自由动线,让归家更有仪式感,彰显大宅气象。
一楼客餐厅设计了悬空电视墙,运用石材悬空手法处理,视觉通透。大横厅空间,沙发靠墙,电视墙的设计即起到了隔断的作用,又保证了视觉的通透。贯穿客厅与餐厅区,塑造出一个简约大方又有特色美妙的家居空间。
设计师在空间的使用率与空间的美感间细细斟酌考量,隐藏梁位的同时自带分区功能,让空间保持奢阔又不失审美高级感。随性摆放的简约沙发、边几与自然形成纹理的墙面相呼应,优雅或张扬、时尚或复古,仿佛拥有自己的故事,让屋主回家,变成了一种乐趣。
从极简、雅奢的氛围出发,选取简单、质感的美陈元素装饰空间,绿色调现代画与精致透亮的金属垂型吊灯,构筑一幅生机盎然的悠扬姿态。植入极具张力的绿色盆景与简单的置物台,让闲适之感与艺术之味交织共存。
空间×肌理个性演绎
一楼就餐空间 / First Floor Dining Room
餐厅施工前▲
开放式空间极大地包容了空间的连接性,以浅色为主调,点缀摩登金属色,简洁雅致的用餐环境,更显优雅而奢华。生动且绵延的山脊纹理隔断墙,将视线带领至落地窗处,自然和熙的光源将室内充盈,完美呈现了竖厅的视线长度优势。
大理石圆餐桌沉稳且温和的色系与金属基座碰撞,配合环形串珠吊灯,构成的柔美线条、极具质感肌理的材质,流水般的光线蔓延四处,静静叙说关于艺术的种种设想,更为生活增添了一份柔和及温度,于此品味每一天的甘美,才是对岁月戏剧的最佳回眸。
色调×材质艺术沉淀
一楼寝眠空间 /First Floor Bedroom Space
一楼老人房▲
老人房的空间呈现,设计师进行形式、比例、材质、颜色和条纹的平衡控制,注重对称的设计美感,橙色软包与条纹寝具复古的情调,令空间萦绕着艺术和往昔岁月的气息,同时又形成一种外扩之张力,盛世如浪奔涌。
一楼次卧▲
新的美梦,将从吊灯的温馨中缓缓下落,融入浅调原色的寝具内,一切都这么美好。一楼次卧打通室外露台扩大使用空间,白色纱帘中丰蕴着安神的魔力,打造出沉浸式的纯净体验,让每次早起都和光共遇。
静心×自得玩物之奢
二楼书房空间 / Second Floor StudySpace
二楼书房效果图
二楼书房▲
与自然共生,将是追溯空间艺术道路上永恒的课题。原有二楼大露台一分为二,为客户塑造一个散发出传统韵味同时又流露出现代精致感的休闲茶室。
茶室以木色和浅色调为主,嵌入禅意景观、简约茶台及博古架,加之室外自然景观的引入,让人仿佛有一种使心情归于宁静的魔力。
光叙×
赋自然于居室
二楼寝眠空间 / Second Floor Bedroom Space
二楼主卧效果图▲
二楼主卧▲
永恒的色彩,带来无尽的空间和思考,而色彩与材质之间的平衡,更演绎空间奢华的格调。现浇二楼挑高为主卧,以居者喜欢的复古绿为空间的灵魂,与空间浅底色有冲突对比,亦有和谐优雅之美;同时在寝具材质、挂画肌理、窗纱色泽上的艺术效果结合光影意境,调动居者对于美好生活丰富而立体的感知。
二楼次卧▲
休憩空间除了营造必备的安恬静雅的氛围外,也一定要有精巧的单品点缀。
二楼次卧空间中,设计师选择了精致的壁灯作为空间装饰元素,可谓一举多得。精致、复古,带有金属光泽,自然而然为空间赋予了满满的高级感,营造出趣味横生的生活意趣。
禅意×自然柔和相融
二楼休闲空间 / Second Floor Relaxation area
二楼茶室效果图▲
二楼茶室▲
无事且从闲处乐,有书时向静中观。书房,是一个人气质养成的地方,需要宁静、沉稳的感觉,所以书室空间大面积铺设木质材质,精心设立简约木质书架台案、艺术的桌面雅件,同时大面积落地窗打破空间的拘谨,用风与光唤醒富于趣味和变化的阅读空间。
以温柔见高贵,以简约见时尚,以隐奢见个性,以绿色见生机......我们透过以人为本的思考,以精致、随性、生机、典雅、艺术为空间精神,为居者定制一处雅与奢共鸣的惬意居所。不张扬,不矫饰,总是在不经意的细节里,撩动着人心、惊艳了岁月、也温柔了时光。
·
·
麟戈空间设计
座机:023-67036763
手机:15823316607
地址:重庆市渝北区湖彩路 116 号约克郡汀兰 3 栋 16 层
e n d
客服
消息
收藏
下载
最近































