查看完整案例


收藏

下载
最好的建筑是这样的,我们身在其中,却不知道自然在哪里终了,艺术在哪里开始。——林语堂
空间所表达的意义,不仅仅是安顿身心的栖居之所,还是让我们寻找到自我本真情感与精神认同的场域。在此,我们能与生活开启一场升华情感,聚焦心灵的深层次巡礼,品味艺术价值。
本案地处重庆核心地段之一,设计师融合了法式精神以及现代人的生活方式,经过大量的空间改造,用法式美学赋予生活更多仪式感,缔造一个安置心灵的艺术居所。
//PROJECT INFORMATION 项目信息
项目地址丨Location:重庆照母山
项目面积丨Square meters:180㎡
户型丨House type:四室两厅
风格丨Style:现代法式
设计团队丨Design:麟戈设计
主案设计师丨Designer:王盈盈
//ABOUTTHEOWNER 关于屋主
该案位于金州大道香港置地壹号半岛,家庭成员构成“2+2”模式,即一对夫妻,一对可爱的儿女。
夫妻二人男主外,女主内,在生活上两人都追求品质生活,因此对家装设计细节把控严谨。
女主人是个爱美的女士,喜欢跳舞,喜欢一切关于乖的东西,对事物有着“喜欢的东西都不犹豫,只要犹豫就是不喜欢”的个性态度。再找到我们之前,她已经接触过很多设计师,“我喜欢美式,但看了很多设计方案,那些并不是我喜欢的美式”她这样和我们说。直到她遇到我们,设计师盈盈用敏锐的视角,给出专业的建议,最终把此方案定为现代法式。她看到的时候尖叫的说“这就是我想要的!”。风格及空间改造上,身为设计师盈盈将会全力满足一家人的生活畅想。
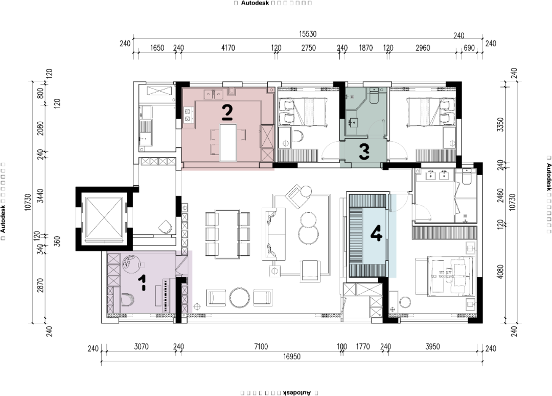
//FLOOR PLAN 户型平面图
原始平面图▲
改造后平面图▲
//FLATMAKEOVER 平面改造
设计师通过结构改动和空间的相互串联,挖掘空间布局的灵活性,注重调动各区域的关联度,在无形的分割中得以放大与扩容。
设计师给予了每个空间更大的尺度关系,将厨房打掉多余墙体,增大客餐厅空间感,餐厅墙体利用展示柜与柜门融为一体,形成隐形门,让其体验感受得以更加舒展与放松,使其拥有独特的个性和魅力。
另外,在满足功能需要的前提下,将空间、人及物进行合理精致的组合,卧室打掉多余的墙体,增大衣帽间的空间感,用最洗练的笔触,描绘出最丰富动人的空间效果。公共卫生间区分儿子房与女儿房,与卧室紧密链接,最大化满足居者对功能和精神方面的需求。
//STYLE POSITIONING 风格定位
【现代法式】
利用家居空间和装修材料,以独创性、个性化思想为指导而打造出来的独具个性的家居环境。
//COLOR ANALYSIS 色彩分析
色彩递进式铺展,简约大气的大地色为基调,细节处以雾霾蓝、裸粉色与香槟金交织,回荡着浓郁的法式风情,带人领略繁华都市带来的新鲜时尚和自然之感。
#LIVING ROOM 客厅
改造前▲
效果图▲
家的丰富,生活的尺度,都离不开对空间结构与比例的考量,设计师拆除必要之外的余赘之物,展现一处「进」「退」有度的场所。
客厅空间中引入法式优雅的美学意涵,色彩层次与艺术韵律相互映衬,糅合大地色调的清雅与金黄调的富丽,以华美、精致的形态散发着艺术美感。
雾霾蓝系丝绒触感的现代沙发,搭配法式纯白复古单人椅与唯美浪漫的吊灯,柔和的光泽、细腻的手感,呈现出一种直撩心底的优雅魔力,给归家者带来惬意舒适、优雅矜贵的生活气息。
#DINNING ROOM 餐厅
打破空间界限,客餐厅一体化设计有着纵深视觉吸引力,空间内功能饰物所排布的格局营造出社交宴客融洽怡然的氛围,写意出简繁相谐的美学力度,细腻圆融的空间气质凝练于此。
艺术是生活的再现、是情感的表现。典雅灯饰与餐椅的风格形成呼应,品味卓然的大理石餐桌、流畅精致的线性灯饰,充盈了细节上的独到之处,共同演绎现代美学生活的雅奢氛围。
#KITCHEN 厨房
厨房设计运用差异性划分出厨房与客厅的功能性,选用高级灰作为空间主色,岛台和橱柜选择了乳白色的大理石,运用不同的材质做了融合,丰富空间层次。在软装陈设配合下,细腻情景的介入,映射出居者的日常情感,使功能与美学得到一个相互的平衡。
#MASTER BEDROOM 主卧
效果图▲
进入主卧,设计师将优雅格调以温润素雅的主色诉诸于人的知觉,灰色床头,纯白单椅点缀,营造诗意化的布局效果,用一种音乐艺术与空间设计共感、交响的呼应关系衬托出休憩空间的舒适氛围,提供一个新颖的审美视野,升华了生活意趣的体验深度。
卫生间是居者生活仪式感的重要一环,设计上突出时尚、大方的气质氛围,黑白灰经典的调搭配建立的优雅美学秩序。
座机:023-67036763
手机:15823316607
地址:重庆市渝北区湖彩路 116 号约克郡汀兰 3 栋 16 层
e n d
客服
消息
收藏
下载
最近



























