查看完整案例


收藏

下载
从前,在诗里找生活
如今,把生活过成诗
步伐前进,眼眸向后
在生活中不断徘徊
终于明白
安安静静
简简单单
才是生活的真意
把生活过成诗
//项目信息
项目丨Location:重庆·鹅岭峯
建筑面积丨Square meters:350㎡
户型丨House type:四室两厅
风格丨style:现代意式极简
设计团队丨Design:麟戈设计
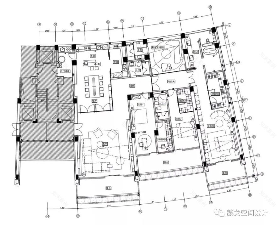
//户型平面图
本案坐落于重庆核心地段,为 350㎡大平层户型。
入户直达客餐区,通透高阔的起居空间,是观者感知“家”的第一步。
南侧全景落地窗与超大景观露台,为客厅和三间卧室提供了绝佳的采光和视野。
直角过廊将公共区域与私人空间分割开来,足够的神秘感牵引出无限探索意趣。
设计主题
【把生活过成诗】
诗酒趁年华,
简单而精致;活在当下,享受美好的时光。
//
设计灵感
简单是高级形式的复杂,越是高级的东西越是简单。
//
风格定位:【现代意式极简】
简约而不简单,低调、舒适与雅致;生活的研究者,从整体到局部的极致追求。
//
色彩分析
简约大气的黑灰白为主色调;自然高贵的绿从细部铺展,层层递进渲染空间情绪;香槟金作为点缀,提升居家品质感;打造温馨、自然、舒适的家。
客厅
·
时光裂缝
LIVING ROOM
客厅空间对质感有着执着追求,将“简”发挥到极致。以黑灰白作为空间底色,引入动人的光影调剂空间氛围;以软装陈设引导起居品质,将艺术感注入到当代居所之中。横平竖直的场域内,盛放着一个轻盈优雅又极具生活温度的意式极简空间。
内嵌于背景墙的书架与壁柜,将繁杂生活收纳一空。皮革沙发、潘多拉石材茶几、墨绿单椅、水墨纹地毯,不同风格的陈设单品于相宜色度与精致质感间完美融合。“La Donna”手扶椅圆润动感的造型,传达出愉悦与舒适的艺术人居体验。
“万物皆有裂痕,那是光进来的地方。”
——莱昂纳德·科恩
自然而灵动的阳光,透过洁白纱窗的缝隙,与内部原有光影层叠相交,安静、暖洋洋的氛围散漫开来。仿佛时光轴就此凝固,只有素然与美好的治愈感缓缓流动。
餐厅
· 艺术共鸣
DININD ROOM
餐桌吸纳了意式极简特点,大理石桌面简洁的轮廓与金属立柱桌腿形成材质碰撞,雕塑般的设计与客厅茶几产生艺术共鸣。雾霾蓝皮质餐椅穿插其间,以知性的视觉反差,为就餐注入可体验、可感知的生活质感。
丰富的材质,细腻的肌理,精致的装饰。极致细节彰显的是我们对生活的热爱。
过廊
· 秩序美感
CORRIDOR
过廊利落的线条与平衡的色彩互为表里,营造出舒适的空间视觉,给日常带来有秩序的质感保证。艺术雕像、壁画与灯光系统的协奏,将人的视线引导至私人空间的探索之中。
书房
· 沉浸体验
STUDY ROOM
灯光不动声色拨弄视觉焦点,深木色调则为空间氛围的营造预留足够想象力。
将身体陷入柔软宽大的沙发,放任身体沉浸至墨绿色的海洋中,享受安静的冥想时空。
卧室
·优雅栖居
BEDROOM
设计不仅承担美和功能性,更需要回应居者的精神需求。卧室空间作为告别都市喧嚣和寻求灵魂治愈的场所,舒适度和温度的氛围表达至关重要。
主卧铺设以沉稳的暖灰色调,落地窗提升空间亮度和通透度。天青蓝、橄榄绿、黑与金的色彩点缀,丰富视觉美感。家居陈设简约流畅的外形,优雅阐述现代空间的意式风情。
次卧延续主卧基调,温馨简约的风格,艺术感十足的装饰壁画,皮革床靠搭配质感床品,金属与玻璃融合为蝴蝶吊灯。夜幕四合时,开一瓶香氛,精致生活的氛围感由此点亮。
绿色以客厅为起点,跳跃于空间的细部,营造出层层递进的感官体验;香槟金点缀于每一只独具特色的灯饰之间,无声增添居家品质感;陈设与装饰赋予空间“和而不同”的浓郁艺术感。漫步于简与雅之间,诠释诗意栖居真谛。
一个人只拥有此生此世是不够的,他还应该拥有诗意的世界。“生活给予我们的正是将寻常日子过出诗意的能力。内敛的色彩,洗练的线条,素雅简淡的空间,再烹一壶清茶,在这里安静的慢煮生活,得到一种味觉飨宴之外的欢愉和满足。
·
·
座机:023-67036763
手机:15823316607
地址:重庆市渝北区湖彩路 116 号约克郡汀兰 3 栋 16 层
e n d
客服
消息
收藏
下载
最近










































