查看完整案例


收藏

下载
设计灵感
盛年不重来,一日难在再晨,及时当勉励,岁月不待人。
设计主题
【
时 光
】
想和你虚度时光,等星辰初见,等花开半朵,等酒至微醺。
设计色彩
主色大地色
:使用朴素无华的浅驼色彩,营造出一种华丽感的搭配。
过渡色炭黑
:温柔的浅驼色与其形成的明暗对比,形成了明亮与灰暗,轻松与沉重的对比。
过渡色熟褐
:冷静,沉稳是深咖色的具象代表词。
点缀爱马仕橙
:橙色的点缀使得空间的明亮感和鲜润感都有了跳跃的感觉,使得空间充满鲜活时尚前卫元素。
/
0 1
玄关
入户玄关给人以狭长敞亮的视感,浅驼主色调奠定空间冷静、沉稳的基调。装饰壁画中橙色的点缀是点睛之笔,遥相呼应间令空间的明亮感和鲜润感更具跳跃性。
/
0 2
餐厅
步入公共区域,目光所及豁然开朗。雅奢气场借由一组精致夺目的金属装饰向整居弥散开来。
餐厅的陈设少而精致,功能至上,却丝毫不掩其奢华贵气。金属与大理石材质的碰撞,曲与直线条的交融、浅驼与黑金色彩的对比,看似简单的设计蕴藏丰富的情感与细节,轻奢于形,优雅于里。
/
0 3
客厅
基于空间资源的分配,室内的客厅面积略小,因此我们利用开放式布局、大面积落地窗以及精彩的软装搭配,调和出整套户型最为可贵的光泽度和空间亮度。
光影的介入,令空间线条更加深邃迷人。敞亮的落地窗,是轻奢主义和现代风格的优雅相遇。浅驼、深咖、黑与爱马仕橙的碰撞交融,创造了一位雅致富有格调的空间绅士。
得益于本案恰到好处的层高与视野,我们的目光越过精心设计的室内空间,越过优雅不凡的静谧生活,便能与重庆来福士巍峨流畅的建筑体量对视,感受刚与柔的冲突之美。
/
0 4
阳台
阳台与客厅以一整面玻璃门分隔,空间边界感消弭于无形,视觉上更显明亮宽阔。
阳台的设计简约质朴,桌椅陈设暗示了空间的精致感与舒适度。
倚窗而坐,便可将重庆的山景、江景、城景尽收眼底,感受温暖的阳光透过百叶窗映在脸颊,就这样一个人、一本书,度过美好的一天。
/
0 5
主卧
轻奢介于奢华与简约之间,更多的是引领一种轻松舒适的生活。适当的奢华与精致感融入,是对主人的用心呵护,正如本案的主卧设计。
在整体浅驼色基调下,局部置入了沉稳的深咖色作为过渡,辅以清新舒适的床品、温暖柔和的灯光,空间氛围趋向于使人放缓脚步和平稳心境。
/
0 6
次卧
次卧相对于主卧显得更加温暖简洁,粗犷的金属巧变为精致的细小线条,融入空间的细节之中,这份精致正是对高品质生活的最好表达。
设计洞察场所的功能与美感,穿梭于现代与历史之间,平衡品质追求与真实生活的尺度,以「进」「退」有度的奢华,将另类的精致与典雅酝酿在此。
/
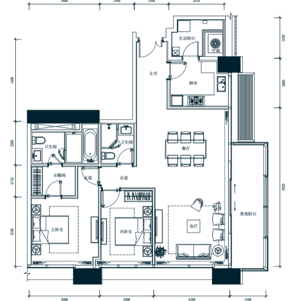
0 7
户型平面图
/
0 8
项目信息
项目名称
|
来福士扬子2号
项目面积
| 161m²
项目类型
| 住宅
项目地点
| 重庆
设计团队
| 麟戈设计
·
·
-
座机:023-67036763
手机:15823316607
地址:重庆市渝北区湖彩路116号约克郡汀兰3栋16层
e n d
客服
消息
收藏
下载
最近



























