查看完整案例


收藏

下载
当现代居所遇上轻奢美学,演绎一场精致舒适的都市生活体验。无论是点、线、面的形式设计,还是调性、功能的配色、应用考虑,都在极致的生活中营造从容、平和的艺术气息,让人尊享极简风格的空间之美。
都市轻奢
//项目信息
项目地址丨Location:重庆·来福士
项目面积丨Square meters:260m²
风格丨Style:现代轻奢
设计团队丨Design:麟戈设计
主案设计师 | Designer:王盈盈
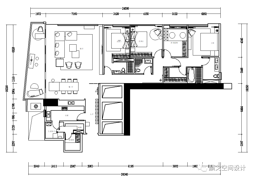
//户型平面图
本案为四室两厅大平层,在重庆 CBD 之中饱览风景,在灿烂阳光下的一扇落地窗前欣赏层林尽染的万物风景。整套户型将光影的效果结合艺术感展现得更加迷人,让居者在空间中汲取精神力量,以获得心灵的安稳,它无需言语、忘却形式、潜藏着宁静。
//项目背景
基于本案所处的地段及室内光线的充沛度,同时结合业主的喜好,打造集温馨、底蕴、奢侈与静结合的艺术美学大平层。整个空间以静谧黑和冰咖啡两种色调为主色调,象牙白杂在其中,呈现出递进式铺展,营造出丰富的层次,且用钴蓝加以点缀,烘托出光影的关系,使空间轻松而时尚,简约而又不简单,增加客户对空间印象。
客厅
LIVING ROOM
改造前▲
一处居所容纳生活的百种可能,推门而入,客厅展示了大平层的旷达尺度,180 度落地窗设计,以窗外景色为基底,居者可于此一边观赏窗外自然美景,一边聊天、品茶或冥想,在这里时间仿佛凝固,好不惬意。
设计不是技艺,是设计师体验之后的感情的传达。室内空间整体色调统一,形态规整,以象牙白为主色调,在大片白色之间以钴蓝和黑色过渡,三者互相对比、衬托,营造一个多层次互动式感知体验的空间,赋予居者更美好的生活愿景。
在纷杂浮躁的尘世里,回归自然或许是寻觅归属感的最佳地方。白色窗帘外嘉陵江景色一览无遗,将室内原本孤立的空间引向室外,一直延伸到江面,扩展成水平的风景线,让室内生活可以重新回到自然、感受自然。
石材的天然花纹、光泽、质感与钢板结合,呈现出不俗的艺术感。定制的人物艺术品摆件,碰撞出不一样的空间气韵,凸显空间的现代时尚艺术感。
客厅圆形吊灯造型,搭配金色线条走边,整体干净利落,为空间勾画出简洁大气的韵味。钴蓝与象牙白沙发,在空间中相遇撞色,大气而不突兀,提升了空间的现代轻奢感。
简约而不简单的设计手法既满足了主人对空间功能和意境的追求。以黑白双色设计的地毯,辅以玻璃材质的茶几,简易、雅致,整个空间透露着一份淡淡的谧静氛围。茶几之上没有过多的装饰,简单的艺术品,在不经意间流露出十足的品质感。
阳台
BALCONY
阳台打造休闲吧台,开阔的自然空间,延展至室外,同时在吧台上方金属材质的吊灯,为简约的空间平添几分精致格调,于此观景、休闲、聊天,给生活带来了情调感,增加家居生活的趣味性,也拓展了阳台的功能性。
餐厅
DINNING ROOM
改造前▲
敞阔的客厅旁侧,是轻轻跳动的美食盛宴,餐厅与厨房相连,增加空间的互动性。岩板餐桌、石材吧台、马鞍皮座椅,不同陈设和家具的碰撞,营造出精致迷人与优雅的氛围,令看似简约摩登的空间,玩味出现代的奢贵。
西厨的整体定制橱柜,顺应下厨活动动线设计了一字型,让生活更为顺畅,搭配简洁而不失品质的餐椅与精致大理石餐桌,恰到好处的材质对比,让整体空间保持统一调性。
金属材质的餐桌吊灯却有着羽毛柔软的飘逸质感,精妙的点睛之笔。以颇为现代的手法铺陈,金属吊灯为空间奠定了高级的色调,新颖的造型与材质在整个空间中体现得淋漓尽致,营造出艺术而轻松的氛围。
温和而柔软的味道停留在时间的背后,变成爱人之间的喃喃细语。在繁忙的都市,这里有业主相互依偎的星辰大海,餐厅墙面巨大的时钟艺术品,让整体空间显得更加端庄华丽。
过道
AISLE
入户过道蓝色球体挂画,与深色的背景墙相融合,增加了空间的戏剧化效果,同时营造尊崇的归家仪式感。
客厅通往卧室的艺术廊,精致的水晶小提琴艺术品,水晶透明视觉融入黑色大背景,提升整个空间韵味的同时,让室内空间具有高品质之感,远观悦目,详览入胜,步步拉近距离,一步一景。
主卧
MASTER BEDROOM
改造前▲
卧室以偏沉静的姿态,迎来送往着居者的黑夜与白天,依据色彩的过度进行细节修饰,灵魂与身体与这里高度契合,舒适放松的生活,唾手可得。
落地窗引入的自然光源,酝酿出与众不同的光感形式,让光得以在空间中肆意流淌,时间缓步前行,让室内室外风景糅合成一派平和的样子。家具兼具柔和的色彩和曲线的姿态,是对现代艺术生活的追寻。
次卧
SECOND BEDROOM
改造前▲
次卧设计以沉稳内敛的白为基础色调,加上典雅的灰色,稳重的黑色,多种色彩碰撞出时尚的轻奢感和时光打磨后的优雅,白色的纱帘接合落地窗更是给整个空间带来自然的诗意。
以阳光的射线移动指引空间的动线轨迹,空间横向与纵向无限延伸,另一次卧空间引入室外大桥景观,让室内的故事感扑面而来,同时,选用深棕色与黑色作为主色调,实现平衡房间的形式感和对称性,结合轻奢元素的使用让整个空间呈现着现代高级质感和轻盈通透感。书房 STUDY
改造前▲
阳光书房是居者灵感与创意迸发的场域,热爱和兴趣在这个空间得到释放。惬意的下午茶时间,沉浸在阅读里,空间与识海贯穿,留下温馨的记忆。
·
·
座机:023-67036763
手机:15823316607
地址:重庆市渝北区湖彩路 116 号约克郡汀兰 3 栋 16 层
e n d
客服
消息
收藏
下载
最近

































