查看完整案例


收藏

下载
不愿困顿于重复的庸常,以艺术为滋养之源,和光影交融共生,唤醒对诗性家园的期待。蓦然惊觉,理想家居的真正模样,正是此心安处,揽景入室,艺境合一。
//项目信息
项目地址丨Location:重庆·来福士
项目面积丨Square meters:四室二厅
户型丨House type:320m²
风格丨Style:现代极简
设计团队丨Design:麟戈设计团队 主案设计师:王盈盈
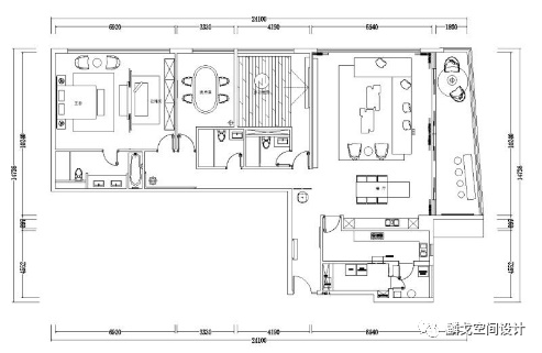
//户型平面图
地处重庆最为繁华的都市地带,客厅面积宽阔且四周均是完美的落地大窗,无障碍衔接户外,得天独厚的开阔视野豁然而至。狭长敞亮的入户玄关需要一处点睛之笔,干净明亮的客厅是整个空间的亮眼之处,以光影刻画建筑细节,塑造空间体态,让家居变得简洁而有温度。
//设计主题
可静谧,可质感,可简约,可精致。黑白灰主色调的意料之外,是浪漫与雅致深度体验的特别要求,一方小天地,却生大风情。//设计灵感
“光,永远是一种把空间戏剧化的重要元素。”——日本建筑大师 安藤忠雄
//风格定位
【现代极简】
优雅的态度,低调、舒适与雅致,生活的研究者,从整体到局部追求极致。
//色彩分析
整体空间以灰白黑色系呈现,让人感觉到一种贴近大地自然的舒服,深色餐桌、素雅布艺、浅色沙发,表达出干练简洁的空间语言。
客厅 LIVING ROOM
室内设计往往因为不恰当的格局配置,让空间原有的优点无法呈现,而极致开阔的视野,正是客厅的“破题之策”。通透而大气的落地窗,揽景入室,天高水阔尽收眼底,漫看云卷云舒。为了让室内心境与户外风景相呼应,客厅大胆采用留白的设计手法,巧妙达成了空间气息的平衡。
改造前▼
改造后▼
作为会客、观景的场所,客厅在承担必要的功能之外,同样暗示了主人的品味与内涵。创意几何茶几、后现代风艺术画、复古工艺摆件相得益彰,无形中提升了空间的审美格调,温和淡雅的艺术气息充盈其中。
餐厅
DINING ROOM
正如勒·柯布西耶所强调的,理想建筑必须与美好生活相关联,而美好生活意味着欢乐、轻松、秩序、和谐以及珍贵的亲情价值。
在餐厅的规划上,岛台巧妙完成了空间的区隔,营造出张弛有度的连接感,家庭成员之间的互动更加频繁,充满了真实、鲜活的人居温度。
改造前▼
改造后
通过对线条、材质、色彩的精研与雕琢,设计师将温情融入餐厅的每个细微之处,以更加人性化的布置,铺陈细腻的空间感受,承载居住者对生活的真诚热爱。
过廊 CORRIDOR
在改造时,如何协调好开放与封闭、完整与流畅的关系,始终是不能回避的问题。出于建筑整体气韵的考量,过廊的实墙被夜明珠玻璃取代,缀以长虹与星球雕塑,独特的色彩表现、空间的光影布局共同丰富了空间的多维度。改造前▼
改造后▼
阳台 BALCONY
每一个有格调的家,都应该有一个看得见风景的阳台。全景式的开阔空间,让人在繁琐的工作和生活中寻找到灵魂的出口,晨看日出,午听风吟,昏赏夕阳,夜观星海……极目远眺,忘情抒怀。
多功能房
MULTI-FUNCTIONAL ROOM
理性不张扬的高级灰与沉稳内敛的咖啡色相辉映,再辅以纯粹的柔和光源,无论是看书、冥想、品茗,在多功能室里都能直抵心灵的安宁与自由。
改造前▼
改造后▼
卧室
BEDROOM
当下时代生活的快节奏,让静谧与沉稳、安宁与平和的情绪需求越来越受到重视。设计师有意将卧室打造成一个恬淡雅致的诗性空间,伴着柔和细腻的光影、空灵写意的壁画入梦,居住者可以获得舒适的感官享受与精神上的超越。
改造前▼
改造后▼
在光影自然流动、艺术圆融浸润之下,建筑有了强大的空间塑造力,户外与室内皆成风景,内心的自然灵性也逐渐苏醒,最终体会到了传神的生命律动。
·
·
座机:023-67036763
手机:15823316607
地址:重庆市渝北区湖彩路 116 号约克郡汀兰 3 栋 16 层
e n d
客服
消息
收藏
下载
最近






































