查看完整案例


收藏

下载
改造的意义大抵在于彰显居者内心最真实的情感,与最热情的精神世界。重构住宅的框架,联结精神与内需的脉络,使住宅成为真正意义上的“家”,容纳多重可能性,并伴随着居者的成长而延伸出未来生活的无限弹性与乐趣。
关于改造
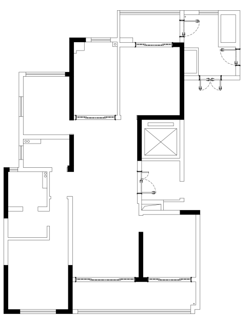
原始平面图
平面优化图
# 将原始厨房、北向客卧与阳台打通,重整餐厨区域功能性与自由度的同时,让亲子间的关联视野展开,释放“家”的安全感;
# 重新梳理南向卧室与内卫的逻辑关系,将套房属性发挥到极致;
# 无阳台化,让起居室采光更佳,空间利用率实现最大化。
客厅
毫无温度的精装墙面不再,取而代之的是大幅的木饰。触摸之间,岁月沉淀而来的质感清晰可见。木色渲染下的公共空间中,自然的脉搏清晰,明朗、温馨、细腻的空间情绪源源不断。木作电视组柜高悬于上,丰盈空间层次。岩板、布艺等元素的嵌入,更是平衡了繁与简的美学张力。
No longer are the cold hardcover walls, replaced by large wood trim. Between the touch, the texture of the years precipitation is clearly visible. In the public space under the wood color rendering, the pulse of nature is clear, and the space emotion of anacreONtic, warm and delicate is endless. The wooden TV set cabinet is hung on the top, with rich spatial layers. The embedding of elements such as rock slab and cloth art balances the aesthetic tension between complexity and simplicity.
餐厅
设计师打破原户型的逻辑与空间关系,以一个北向房间的功能重组与释放,置换出餐厨区域更大的自由度与视觉延伸。敞开式的空间,给予中西厨最大表演舞台的同时,打开了居者间的关联视野,家长与孩子间的安全感得以兼顾,一种“家”的温情悄然上演。
The designer broke the logic and spatial relationship of the original house type, and replaced the greater freedom and visual extension of the kitchen area with the functional reorganization and release of a north facing room.
卧室作为居者的休憩之所,无需华丽冗杂的过度装饰,将居者的品位与情致投射其中,爱有所得便是最佳。
As a resting place for the residents, the bedroom does not need luxuriant and miscellaneous over decoration. It projects the taste and sentiment of the residents, and it is the best to have what you love. / 主 卧 /
主卧以静默内敛的线条魅力,平衡着不同思想意识下的生活形态。线条灯光影绰约,高雅的情致可见一斑,在此寄放关于理想的多重愿景,感悟人文栖居的诗意与美好。
The master’s bedroom balances the life forms under different ideologies with the charm of quiet and restrained lines. The light and shadow of the line lamp are graceful, and the elegant sentiment can be seen. Here, we place multiple visions of the ideal, and feel the poetic and beautiful of human habitation.
/儿童房/
步入儿童房,以奇妙小屋形态呈现的多功能组合床为主线,蓝色背景、小动物装饰、秋千拉环,一种率真的美感和自在随心的奇思妙想在这小小空间绽放,一切都是那么的纯真烂漫……
Walk into the children’s room, take the multi-functional combination bed presented in the form of a wonderful house as the main line, blue background, small animal decoration, swing pull ring, a kind of frank beauty and free and easy fantasy bloom in this small space, everything is so pure and brilliant…
书
房
木饰贴面垂直而下与悬空条形书桌相连,将原有的小窗隐于其中,空间更具整体性的同时,重现原木+纯白的色彩组合,简逸与安闲的质感娓娓道来。
The wooden veneer is vertically connected with the suspended bar desk, hiding the original small window in it. While the space is more integrated, it reproduces the color combination of log+pure white, and the simple and comfortable texture is described in detail.
— 主案设计 王煜寅 Designer WangYuyin
客服
消息
收藏
下载
最近























